|
|
|
| Larry Stein Oklahoma County Assessor (405) 713-1200 - Public Access System |
|
|
|
|
|
|
| Real Property Display - Screen Produced 4/23/2026 12:31:10 PM | ||||
|---|---|---|---|---|
| Account: R038677880 | Type: Residential | Location: |
3430 SPRINGLAKE DR |
|
| Building Name/Occupant: |
|
OKLAHOMA CITY |
||
| Owner Name 1: | SUNRISE HOMES LLC |
Parcel PIN#: |
2685-03-867-7880 |
|
| Owner Name 2: | 1/4 section #: |
2685 |
||
| Owner Name 3: | Parent Acct: |
|
||
| Billing Address: | 16307 SONOMA PARK DR STE 7 | Tax District: |
|
|
| City, State, Zip | EDMOND , OK 73013 | School System: |
Oklahoma City #89 |
|
|
Country: (If noted) |
Land Size: |
0.2259 Acres |
||
|
Land Value: 12,792 |
|
|||
|
Sect 22-T12N-R3W Qtr NE |
MCNABB PARK ADDITION
Block
014
Lot
000
|
|||
| Full Legal Description: MCNABB PARK ADDITION 014 000 PT OF LOTS 8 9 & 10 BEG 21.20FT SWLY FROM NLY/C LOT 8 TH NELY 33.21FT TH ALONG A CURVE TO THE RIGHT 63.01FT TH SELY 123FT SWLY 26.45FT NWLY 123.23FT TO BEG ALSO KNOWN AS LOT F |
| Value History (*The County Treasurer 405-713-1300 posts & collects actual tax amounts. Contact information HERE) | |||||||||||||
|---|---|---|---|---|---|---|---|---|---|---|---|---|---|
| Year | Market Value | Taxable Mkt Value | Gross Assessed | Exemption | Net Assessed | Millage | Est. Tax | Tax Savings | |||||
|
2026 |
140,000 |
87,773 |
9,654 |
0 |
9,654 |
122.90 |
$1,187 |
$706 |
|||||
|
2025 |
133,500 |
83,594 |
9,194 |
0 |
9,194 |
122.90 |
$1,130 |
$675 |
|||||
|
2024 |
119,000 |
79,614 |
8,757 |
0 |
8,757 |
123.89 |
$1,085 |
$537 |
|||||
| Property Account Status/Adjustments/Exemptions | ||
|---|---|---|
| Account # | Exemption Description | Amount |
|
R038677880 |
5% Capped Account |
0 |
| Property Deed Transaction History (Recorded in the County Clerk's Office) | |||||||
|---|---|---|---|---|---|---|---|
| Date | Type | Book | Page | Price | Grantor | Grantee | |
|
11/19/2018 |
|
Sheriff's/Ma |
$50,500 |
GASTON STACY JR & GRACEL |
SUNRISE HOMES LLC |
||
|
11/11/1911 |
|
Historical |
$0 |
|
GASTON STACY JR & GRACEL |
||
| Last Mailed Notice of Value (N.O.V.) Information/History | ||||||||
|---|---|---|---|---|---|---|---|---|
| Year | Date | Market Value | Taxable Market Value | Gross Assessed | Exemption | Net Assessed | ||
|
2026 |
02/23/2026 |
140,000 |
87,773 |
9,654 |
0 |
9,654 |
||
|
2025 |
02/14/2025 |
133,500 |
83,594 |
9,194 |
0 |
9,194 |
||
|
2024 |
02/13/2024 |
119,000 |
79,614 |
8,757 |
0 |
8,757 |
||
| Property Building Permit History | |||||||||||
|---|---|---|---|---|---|---|---|---|---|---|---|
| Issued | Permit # | Provided by | Bldg # | Description | Est Construction Cost | Status | |||||
| No Building Permit records returned. | |||||||||||
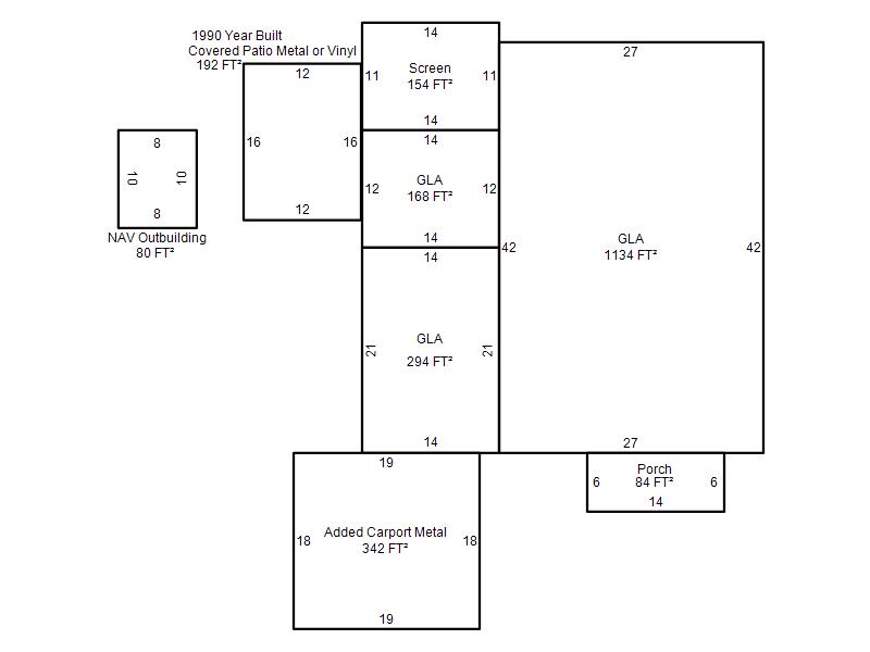
| Click button below to access detailed information and additional property photos: | ||||||
|---|---|---|---|---|---|---|
| Bldg # | Vacant/Improved Land | Bldg Description | Year Built | SqFt | # Stories | |
|
1 |
Improved |
Ranch 1 Story |
1954 |
1,596 |
1 Stories |
|