|
|
|
| Larry Stein Oklahoma County Assessor (405) 713-1200 - Public Access System |
|
|
|
|
|
|
| Real Property Display - Screen Produced 4/26/2026 5:40:06 AM | ||||
|---|---|---|---|---|
| Account: R036697150 | Type: Residential | Location: |
829 NE 28TH ST |
|
| Building Name/Occupant: |
|
OKLAHOMA CITY |
||
| Owner Name 1: | CATO CHRISTOPHER |
Parcel PIN#: |
2686-03-669-7150 |
|
| Owner Name 2: | 1/4 section #: |
2686 |
||
| Owner Name 3: | Parent Acct: |
|
||
| Billing Address: | 5509 KEITH DR | Tax District: |
|
|
| City, State, Zip | OKLAHOMA CITY, OK 73135-2335 | School System: |
Oklahoma City #89 |
|
|
Country: (If noted) |
Land Size: |
0.1492 Acres |
||
|
Land Value: 8,125 |
|
|||
|
Sect 22-T12N-R3W Qtr SE |
ALTA LAWN ADDITION
Block
002
Lot
000
|
|||
| Full Legal Description: ALTA LAWN ADDITION 002 000 LOTS 15 & 16 |
| Value History (*The County Treasurer 405-713-1300 posts & collects actual tax amounts. Contact information HERE) | |||||||||||||
|---|---|---|---|---|---|---|---|---|---|---|---|---|---|
| Year | Market Value | Taxable Mkt Value | Gross Assessed | Exemption | Net Assessed | Millage | Est. Tax | Tax Savings | |||||
|
2026 |
91,000 |
45,602 |
5,015 |
0 |
5,015 |
122.90 |
$616 |
$614 |
|||||
|
2025 |
83,500 |
43,431 |
4,776 |
0 |
4,776 |
122.90 |
$587 |
$542 |
|||||
|
2024 |
78,000 |
41,363 |
4,549 |
0 |
4,549 |
123.89 |
$564 |
$499 |
|||||
| Property Account Status/Adjustments/Exemptions | ||
|---|---|---|
| Account # | Exemption Description | Amount |
|
R036697150 |
5% Capped Account |
0 |
| Property Deed Transaction History (Recorded in the County Clerk's Office) | ||||||||||
|---|---|---|---|---|---|---|---|---|---|---|
| Date | Type | Book | Page | Price | Grantor | Grantee | ||||
|
10/31/2006 |
|
Deeds |
$27,500 |
CONTINENTAL PROPERTY GROUP LLC SMITH WILLIE B |
CATO CHRISTOPHER |
|||||
|
10/31/2005 |
|
Hmstd Off & |
$0 |
SMITH WINOLIA ESTATE OF |
CONTINENTAL PROPERTY GROUP LLC SMITH WILLIE B |
|||||
|
2/1/1982 |
|
Historical |
$0 |
SMITH WILL S & WINOLIA |
SMITH WINOLIA |
|||||
| Last Mailed Notice of Value (N.O.V.) Information/History | ||||||||
|---|---|---|---|---|---|---|---|---|
| Year | Date | Market Value | Taxable Market Value | Gross Assessed | Exemption | Net Assessed | ||
|
2026 |
02/23/2026 |
91,000 |
45,602 |
5,015 |
0 |
5,015 |
||
|
2025 |
02/14/2025 |
83,500 |
43,431 |
4,776 |
0 |
4,776 |
||
|
2024 |
02/13/2024 |
78,000 |
41,363 |
4,549 |
0 |
4,549 |
||
| Property Building Permit History | |||||||||||
|---|---|---|---|---|---|---|---|---|---|---|---|
| Issued | Permit # | Provided by | Bldg # | Description | Est Construction Cost | Status | |||||
| No Building Permit records returned. | |||||||||||
| Click button below to access detailed information and additional property photos: | ||||||
|---|---|---|---|---|---|---|
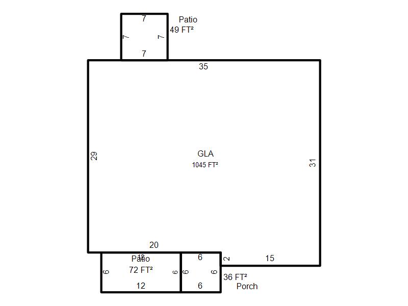
| Bldg # | Vacant/Improved Land | Bldg Description | Year Built | SqFt | # Stories | |
|
1 |
Improved |
Ranch 1 Story |
1930 |
1,045 |
1 Stories |
|