|
|
|
| Larry Stein Oklahoma County Assessor (405) 713-1200 - Public Access System |
|
|
|
|
|
|
| Real Property Display - Screen Produced 4/26/2026 5:40:06 AM | ||||
|---|---|---|---|---|
| Account: R036699350 | Type: Residential | Location: |
845 NE 28TH ST |
|
| Building Name/Occupant: |
|
OKLAHOMA CITY |
||
| Owner Name 1: | STARKS STEPHEN |
Parcel PIN#: |
2686-03-669-9350 |
|
| Owner Name 2: | 1/4 section #: |
2686 |
||
| Owner Name 3: | Parent Acct: |
|
||
| Billing Address: | 708 NE 31ST ST | Tax District: |
|
|
| City, State, Zip | OKLAHOMA CITY, OK 73105 | School System: |
Oklahoma City #89 |
|
|
Country: (If noted) |
Land Size: |
0.1492 Acres |
||
|
Land Value: 8,125 |
|
|||
|
Sect 22-T12N-R3W Qtr SE |
ALTA LAWN ADDITION
Block
002
Lot
000
|
|||
| Full Legal Description: ALTA LAWN ADDITION 002 000 LOTS 23 & 24 |
| Value History (*The County Treasurer 405-713-1300 posts & collects actual tax amounts. Contact information HERE) | |||||||||||||
|---|---|---|---|---|---|---|---|---|---|---|---|---|---|
| Year | Market Value | Taxable Mkt Value | Gross Assessed | Exemption | Net Assessed | Millage | Est. Tax | Tax Savings | |||||
|
2026 |
116,000 |
15,677 |
1,724 |
0 |
1,724 |
122.90 |
$212 |
$1,356 |
|||||
|
2025 |
108,500 |
14,931 |
1,642 |
0 |
1,642 |
122.90 |
$202 |
$1,265 |
|||||
|
2024 |
100,500 |
14,220 |
1,563 |
0 |
1,563 |
123.89 |
$194 |
$1,176 |
|||||
| Property Account Status/Adjustments/Exemptions | ||||||
|---|---|---|---|---|---|---|
| Account # | Exemption Description | Amount | ||||
| No adjustment/exemption records returned. | ||||||
| Property Deed Transaction History (Recorded in the County Clerk's Office) | ||||||||||
|---|---|---|---|---|---|---|---|---|---|---|
| Date | Type | Book | Page | Price | Grantor | Grantee | ||||
|
4/4/2022 |
|
Hmstd Off & |
$0 |
WARE ELNORA |
STARKS STEPHEN |
|||||
|
7/22/2021 |
|
Deeds |
$0 |
WARE ELNORA |
WARE ELNORA |
|||||
|
9/4/2015 |
|
Deeds |
$0 |
WARE ELNORA |
WARE ELNORA |
|||||
| Last Mailed Notice of Value (N.O.V.) Information/History | ||||||||
|---|---|---|---|---|---|---|---|---|
| Year | Date | Market Value | Taxable Market Value | Gross Assessed | Exemption | Net Assessed | ||
|
2026 |
02/23/2026 |
116,000 |
15,677 |
1,724 |
0 |
1,724 |
||
|
2025 |
02/14/2025 |
108,500 |
14,931 |
1,642 |
0 |
1,642 |
||
|
2024 |
02/13/2024 |
100,500 |
14,220 |
1,563 |
0 |
1,563 |
||
| Property Building Permit History | |||||||||||
|---|---|---|---|---|---|---|---|---|---|---|---|
| Issued | Permit # | Provided by | Bldg # | Description | Est Construction Cost | Status | |||||
| No Building Permit records returned. | |||||||||||
| Click button below to access detailed information and additional property photos: | ||||||
|---|---|---|---|---|---|---|
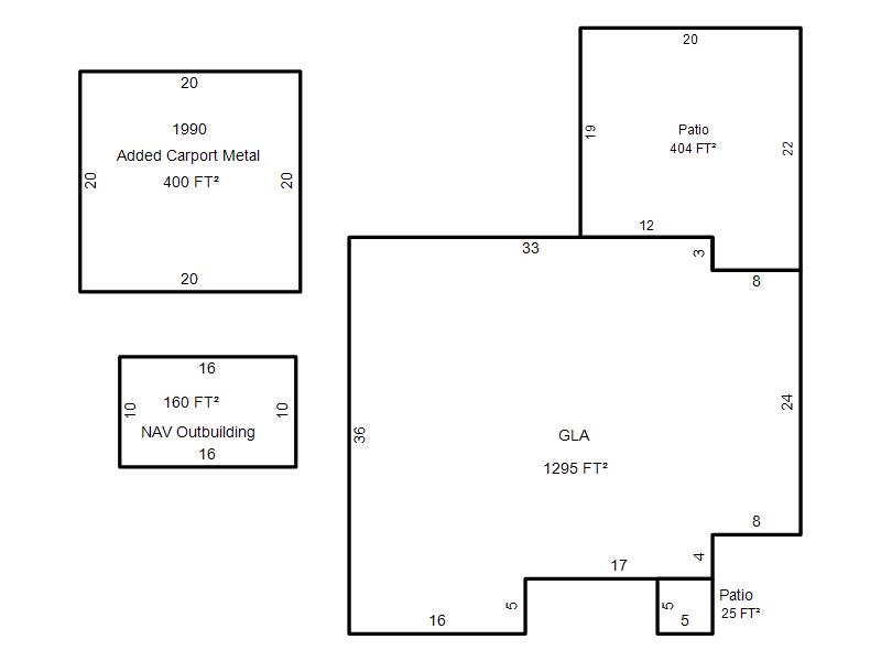
| Bldg # | Vacant/Improved Land | Bldg Description | Year Built | SqFt | # Stories | |
|
1 |
Improved |
Ranch 1 Story |
1929 |
1,295 |
1 Stories |
|