|
|
|
| Larry Stein Oklahoma County Assessor (405) 713-1200 - Public Access System |
|
|
|
|
|
|
| Real Property Display - Screen Produced 2/27/2026 7:04:27 AM | ||||
|---|---|---|---|---|
| Account: R036776400 | Type: Residential | Location: |
845 NE 26TH ST |
|
| Building Name/Occupant: |
|
OKLAHOMA CITY |
||
| Owner Name 1: | WILLIAMS JONES INVESTMENTS LLC |
Parcel PIN#: |
2686-03-677-6400 |
|
| Owner Name 2: | 1/4 section #: |
2686 |
||
| Owner Name 3: | Parent Acct: |
|
||
| Billing Address: | 3320 NORCREST DR | Tax District: |
|
|
| City, State, Zip | OKLAHOMA CITY, OK 73121 | School System: |
Oklahoma City #89 |
|
|
Country: (If noted) |
Land Size: |
0.1550 Acres |
||
|
Land Value: 12,150 |
|
|||
|
Sect 22-T12N-R3W Qtr SE |
NEFFS CAPITOL ADD
Block
004
Lot
000
|
|||
| Full Legal Description: NEFFS CAPITOL ADD 004 000 LOTS 47 & 48 |
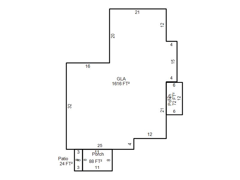
| Photo & Sketch (if available) | Comp Sales (ordered by relevancy) |
|
||||||||||||||||||
|
||||||||||||||||||||
| Value History (*The County Treasurer 405-713-1300 posts & collects actual tax amounts. Contact information HERE) | |||||||||||||
|---|---|---|---|---|---|---|---|---|---|---|---|---|---|
| Year | Market Value | Taxable Mkt Value | Gross Assessed | Exemption | Net Assessed | Millage | Est. Tax | Tax Savings | |||||
|
2025 |
155,000 |
39,455 |
4,339 |
0 |
4,339 |
122.90 |
$533 |
$1,562 |
|||||
|
2024 |
162,500 |
37,577 |
4,132 |
0 |
4,132 |
123.89 |
$512 |
$1,702 |
|||||
|
2023 |
111,500 |
35,788 |
3,936 |
0 |
3,936 |
122.82 |
$484 |
$1,023 |
|||||
|
2022 |
97,500 |
34,084 |
3,748 |
0 |
3,748 |
117.63 |
$441 |
$821 |
|||||
|
2021 |
81,500 |
32,461 |
3,570 |
0 |
3,570 |
117.70 |
$420 |
$635 |
|||||
| Property Account Status/Adjustments/Exemptions | ||
|---|---|---|
| Account # | Exemption Description | Amount |
|
R036776400 |
5% Capped Account |
0 |
| Property Deed Transaction History (Recorded in the County Clerk's Office) | ||||||||||
|---|---|---|---|---|---|---|---|---|---|---|
| Date | Type | Book | Page | Price | Grantor | Grantee | ||||
|
7/1/2018 |
|
Hmstd Off & |
$0 |
WILLIAMS JOHN & RUBY |
WILLIAMS JONES INVESTMENTS LLC |
|||||
|
7/24/2000 |
|
Deeds |
$42,000 |
BORDERS JULIUS J |
WILLIAMS JOHN & RUBY |
|||||
|
5/8/1997 |
|
Historical |
$0 |
BORDERS JULIUS J |
BORDERS JULIUS J |
|||||
|
8/28/1996 |
|
Historical |
$0 |
BORDERS JULIUS J |
BORDERS JULIUS J |
|||||
|
8/4/1993 |
|
Historical |
$0 |
BORDERS JULIUS J |
BORDERS JULIUS J |
|||||
| Last Mailed Notice of Value (N.O.V.) Information/History | ||||||||
|---|---|---|---|---|---|---|---|---|
| Year | Date | Market Value | Taxable Market Value | Gross Assessed | Exemption | Net Assessed | ||
|
2026 |
02/23/2026 |
158,500 |
41,427 |
4,556 |
0 |
4,556 |
||
|
2025 |
02/14/2025 |
155,000 |
39,455 |
4,339 |
0 |
4,339 |
||
|
2024 |
02/13/2024 |
162,500 |
37,577 |
4,132 |
0 |
4,132 |
||
|
2023 |
02/14/2023 |
111,500 |
35,788 |
3,936 |
0 |
3,936 |
||
|
2022 |
03/15/2022 |
97,500 |
34,084 |
3,748 |
0 |
3,748 |
||
| Property Building Permit History | ||||||
|---|---|---|---|---|---|---|
| Issued | Permit # | Provided by | Bldg # | Description | Est Construction Cost | Status |
|
3/26/2009 |
10379933 |
OKLAHOMA CITY |
1 |
Demolish |
0 |
Inactive |
|
8/5/1998 |
10189497 |
OKLAHOMA CITY |
1 |
Burn - Trip |
5,000 |
Inactive |
| Click button on building number to access detailed information: | ||||||
|---|---|---|---|---|---|---|
| Bldg # | Vacant/Improved Land | Bldg Description | Year Built | SqFt | # Stories | |
|
1 |
Improved |
Duplex One Story |
1930 |
1,616 |
1 Stories |
|