|
|
|
| Larry Stein Oklahoma County Assessor (405) 713-1200 - Public Access System |
|
|
|
|
|
|
| Real Property Display - Screen Produced 4/23/2026 6:25:32 PM | ||||
|---|---|---|---|---|
| Account: R070815900 | Type: Residential | Location: |
1730 NE 34TH ST |
|
| Building Name/Occupant: |
|
OKLAHOMA CITY |
||
| Owner Name 1: | HALL GARLAND R & VICTORIA E |
Parcel PIN#: |
2689-07-081-5900 |
|
| Owner Name 2: | 1/4 section #: |
2689 |
||
| Owner Name 3: | Parent Acct: |
|
||
| Billing Address: | PO BOX 57573 | Tax District: |
|
|
| City, State, Zip | OKLAHOMA CITY, OK 73157-7573 | School System: |
Oklahoma City #89 |
|
|
Country: (If noted) |
Land Size: |
0.3214 Acres |
||
|
Land Value: 2,240 |
|
|||
|
Sect 23-T12N-R3W Qtr NE |
PATRICK MOORE THIRD
Block
004
Lot
000
|
|||
| Full Legal Description: PATRICK MOORE THIRD 004 000 LOTS 5 THRU 8 |
| Value History (*The County Treasurer 405-713-1300 posts & collects actual tax amounts. Contact information HERE) | |||||||||||||
|---|---|---|---|---|---|---|---|---|---|---|---|---|---|
| Year | Market Value | Taxable Mkt Value | Gross Assessed | Exemption | Net Assessed | Millage | Est. Tax | Tax Savings | |||||
|
2026 |
83,000 |
44,840 |
4,931 |
0 |
4,931 |
122.90 |
$606 |
$516 |
|||||
|
2025 |
86,000 |
42,705 |
4,696 |
0 |
4,696 |
122.90 |
$577 |
$585 |
|||||
|
2024 |
80,500 |
40,672 |
4,473 |
0 |
4,473 |
123.89 |
$554 |
$543 |
|||||
| Property Account Status/Adjustments/Exemptions | ||
|---|---|---|
| Account # | Exemption Description | Amount |
|
R070815900 |
5% Capped Account |
0 |
| Property Deed Transaction History (Recorded in the County Clerk's Office) | ||||||||||
|---|---|---|---|---|---|---|---|---|---|---|
| Date | Type | Book | Page | Price | Grantor | Grantee | ||||
|
3/31/2014 |
|
Deeds |
$0 |
HALL GARLAND R |
HALL GARLAND R & VICTORIA E |
|||||
|
11/4/2011 |
|
Mult Parcel |
$15,000 |
EDMONDS HARRIET L TRS EDMONDS LIVING TRUST |
HALL GARLAND R |
|||||
|
11/18/2008 |
|
Deeds |
$0 |
EDMONDS HARRIET L |
EDMONDS HARRIET L TRS EDMONDS LIVING TRUST |
|||||
| Last Mailed Notice of Value (N.O.V.) Information/History | ||||||||
|---|---|---|---|---|---|---|---|---|
| Year | Date | Market Value | Taxable Market Value | Gross Assessed | Exemption | Net Assessed | ||
|
2026 |
02/23/2026 |
83,000 |
44,840 |
4,931 |
0 |
4,931 |
||
|
2025 |
02/14/2025 |
86,000 |
42,705 |
4,696 |
0 |
4,696 |
||
|
2024 |
02/13/2024 |
80,500 |
40,672 |
4,473 |
0 |
4,473 |
||
| Property Building Permit History | |||||||||||
|---|---|---|---|---|---|---|---|---|---|---|---|
| Issued | Permit # | Provided by | Bldg # | Description | Est Construction Cost | Status | |||||
| No Building Permit records returned. | |||||||||||
| Click button below to access detailed information and additional property photos: | ||||||
|---|---|---|---|---|---|---|
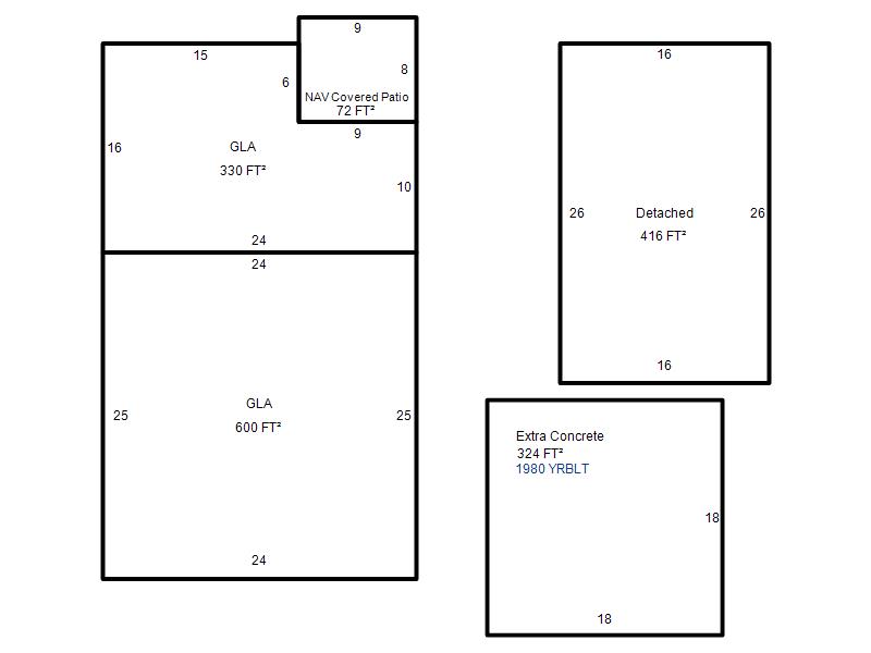
| Bldg # | Vacant/Improved Land | Bldg Description | Year Built | SqFt | # Stories | |
|
1 |
Improved |
Ranch 1 Story |
1953 |
930 |
1 Stories |
|