|
|
|
| Larry Stein Oklahoma County Assessor (405) 713-1200 - Public Access System |
|
|
|
|
|
|
| Real Property Display - Screen Produced 3/3/2026 11:37:38 AM | ||||
|---|---|---|---|---|
| Account: R038033190 | Type: Residential | Location: |
1833 NE 24TH ST |
|
| Building Name/Occupant: |
|
OKLAHOMA CITY |
||
| Owner Name 1: | PRINCE HERMINIA C |
Parcel PIN#: |
2690-03-803-3190 |
|
| Owner Name 2: | 1/4 section #: |
2690 |
||
| Owner Name 3: | Parent Acct: |
|
||
| Billing Address: | 1833 NE 24TH ST | Tax District: |
|
|
| City, State, Zip | OKLAHOMA CITY, OK 73111 | School System: |
Oklahoma City #89 |
|
|
Country: (If noted) |
Land Size: |
0.1550 Acres |
||
|
Land Value: 6,413 |
|
|||
|
Sect 23-T12N-R3W Qtr SE |
HARMONY HILL ADD
Block
002
Lot
000
|
|||
| Full Legal Description: HARMONY HILL ADD 002 000 LOTS 41 & 42 |
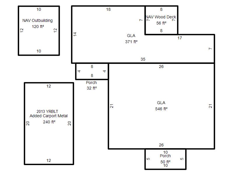
| Photo & Sketch (if available) | Comp Sales (ordered by relevancy) |
|
||||||||||||||||||
|
||||||||||||||||||||
| Value History (*The County Treasurer 405-713-1300 posts & collects actual tax amounts. Contact information HERE) | |||||||||||||
|---|---|---|---|---|---|---|---|---|---|---|---|---|---|
| Year | Market Value | Taxable Mkt Value | Gross Assessed | Exemption | Net Assessed | Millage | Est. Tax | Tax Savings | |||||
|
2025 |
63,000 |
31,657 |
3,481 |
0 |
3,481 |
122.90 |
$428 |
$424 |
|||||
|
2024 |
60,500 |
30,150 |
3,315 |
0 |
3,315 |
123.89 |
$411 |
$414 |
|||||
|
2023 |
51,000 |
28,715 |
3,158 |
0 |
3,158 |
122.82 |
$388 |
$301 |
|||||
|
2022 |
36,500 |
27,348 |
3,007 |
0 |
3,007 |
117.63 |
$354 |
$118 |
|||||
|
2021 |
33,500 |
26,046 |
2,864 |
0 |
2,864 |
117.70 |
$337 |
$97 |
|||||
| Property Account Status/Adjustments/Exemptions | ||||||
|---|---|---|---|---|---|---|
| Account # | Exemption Description | Amount | ||||
| No adjustment/exemption records returned. | ||||||
| Property Deed Transaction History (Recorded in the County Clerk's Office) | |||||||
|---|---|---|---|---|---|---|---|
| Date | Type | Book | Page | Price | Grantor | Grantee | |
|
1/26/2021 |
|
Hmstd Off & |
$0 |
WISBY EMMITT R SR FAMILY LTD PARTNERSHIP |
PRINCE HERMINIA C |
||
|
9/24/2004 |
|
Other |
$0 |
WISBY EMMITT R & HORTENSE I |
WISBY EMMITT R SR FAMILY LTD PARTNERSHIP |
||
|
6/11/1987 |
|
Historical |
$0 |
ADMR OF VETERANS AFFAIRS |
WISBY EMMITT R & HORTENSE I |
||
|
1/1/1986 |
|
Historical |
$0 |
|
ADMR OF VETERANS AFFAIRS |
||
| Last Mailed Notice of Value (N.O.V.) Information/History | ||||||||
|---|---|---|---|---|---|---|---|---|
| Year | Date | Market Value | Taxable Market Value | Gross Assessed | Exemption | Net Assessed | ||
|
2026 |
02/23/2026 |
71,000 |
33,239 |
3,656 |
0 |
3,656 |
||
|
2025 |
02/14/2025 |
63,000 |
31,657 |
3,481 |
0 |
3,481 |
||
|
2024 |
02/13/2024 |
60,500 |
30,150 |
3,315 |
0 |
3,315 |
||
|
2023 |
02/14/2023 |
51,000 |
28,715 |
3,158 |
0 |
3,158 |
||
|
2022 |
03/15/2022 |
36,500 |
27,348 |
3,007 |
0 |
3,007 |
||
| Property Building Permit History | |||||||||||
|---|---|---|---|---|---|---|---|---|---|---|---|
| Issued | Permit # | Provided by | Bldg # | Description | Est Construction Cost | Status | |||||
| No Building Permit records returned. | |||||||||||
| Click button on building number to access detailed information: | ||||||
|---|---|---|---|---|---|---|
| Bldg # | Vacant/Improved Land | Bldg Description | Year Built | SqFt | # Stories | |
|
1 |
Improved |
Ranch 1 Story |
1930 |
917 |
1 Stories |
|