|
|
|
| Larry Stein Oklahoma County Assessor (405) 713-1200 - Public Access System |
|
|
|
|
|
|
| Real Property Display - Screen Produced 3/3/2026 11:37:38 AM | ||||
|---|---|---|---|---|
| Account: R038036490 | Type: Residential | Location: |
1824 E MADISON ST |
|
| Building Name/Occupant: |
|
OKLAHOMA CITY |
||
| Owner Name 1: | NEW BETHAL BAPTIST CHURCH |
Parcel PIN#: |
2690-03-803-6490 |
|
| Owner Name 2: | 1/4 section #: |
2690 |
||
| Owner Name 3: | Parent Acct: |
|
||
| Billing Address: | 1844 E MADISON ST | Tax District: |
|
|
| City, State, Zip | OKLAHOMA CITY, OK 73111-3336 | School System: |
Oklahoma City #89 |
|
|
Country: (If noted) |
Land Size: |
0.1492 Acres |
||
|
Land Value: 6,175 |
|
|||
|
Sect 23-T12N-R3W Qtr SE |
HARMONY HILL ADD
Block
004
Lot
000
|
|||
| Full Legal Description: HARMONY HILL ADD 004 000 LOTS 11 & 12 |
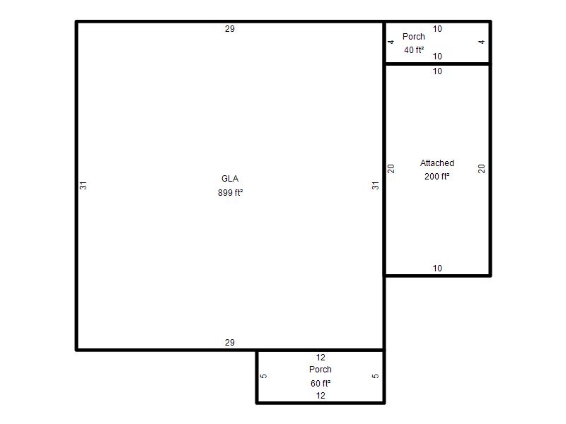
| Photo & Sketch (if available) | Comp Sales (ordered by relevancy) |
|
||||||||||||||||||
|
||||||||||||||||||||
| Value History (*The County Treasurer 405-713-1300 posts & collects actual tax amounts. Contact information HERE) | |||||||||||||
|---|---|---|---|---|---|---|---|---|---|---|---|---|---|
| Year | Market Value | Taxable Mkt Value | Gross Assessed | Exemption | Net Assessed | Millage | Est. Tax | Tax Savings | |||||
|
2025 |
73,500 |
32,359 |
3,559 |
0 |
3,559 |
122.90 |
$437 |
$556 |
|||||
|
2024 |
61,000 |
30,819 |
3,389 |
0 |
3,389 |
123.89 |
$420 |
$411 |
|||||
|
2023 |
52,000 |
29,352 |
3,228 |
0 |
3,228 |
122.82 |
$397 |
$306 |
|||||
|
2022 |
37,000 |
27,955 |
3,074 |
0 |
3,074 |
117.63 |
$362 |
$117 |
|||||
|
2021 |
33,500 |
26,624 |
2,928 |
0 |
2,928 |
117.70 |
$345 |
$89 |
|||||
| Property Account Status/Adjustments/Exemptions | ||
|---|---|---|
| Account # | Exemption Description | Amount |
|
R038036490 |
5% Capped Account |
0 |
| Property Deed Transaction History (Recorded in the County Clerk's Office) | ||||||||||
|---|---|---|---|---|---|---|---|---|---|---|
| Date | Type | Book | Page | Price | Grantor | Grantee | ||||
|
9/2/2015 |
|
Deeds |
$0 |
PITTS NORA LEE |
BERRYHILL TRINA |
|||||
|
9/2/2015 |
|
Deeds |
$22,000 |
SYKES RANDALL |
NEW BETHAL BAPTIST CHURCH |
|||||
|
8/20/2015 |
|
Deeds |
$0 |
BERRYHILL TRINA |
PITTS NORA LEE |
|||||
|
8/9/2004 |
|
Deeds |
$0 |
PITTS NORA LEE |
PITTS NORA LEE BERRYHILL TRINA |
|||||
|
9/16/1988 |
|
Historical |
$0 |
PITTS JAMES C & NORA L |
PITTS NORA LEE |
|||||
| Last Mailed Notice of Value (N.O.V.) Information/History | ||||||||
|---|---|---|---|---|---|---|---|---|
| Year | Date | Market Value | Taxable Market Value | Gross Assessed | Exemption | Net Assessed | ||
|
2026 |
02/23/2026 |
79,000 |
33,976 |
3,736 |
0 |
3,736 |
||
|
2025 |
02/14/2025 |
73,500 |
32,359 |
3,559 |
0 |
3,559 |
||
|
2024 |
02/13/2024 |
61,000 |
30,819 |
3,389 |
0 |
3,389 |
||
|
2023 |
02/14/2023 |
52,000 |
29,352 |
3,228 |
0 |
3,228 |
||
|
2022 |
03/15/2022 |
37,000 |
27,955 |
3,074 |
0 |
3,074 |
||
| Property Building Permit History | |||||||||||
|---|---|---|---|---|---|---|---|---|---|---|---|
| Issued | Permit # | Provided by | Bldg # | Description | Est Construction Cost | Status | |||||
| No Building Permit records returned. | |||||||||||
| Click button on building number to access detailed information: | ||||||
|---|---|---|---|---|---|---|
| Bldg # | Vacant/Improved Land | Bldg Description | Year Built | SqFt | # Stories | |
|
1 |
Improved |
Ranch 1 Story |
1948 |
899 |
1 Stories |
|