|
|
|
| Larry Stein Oklahoma County Assessor (405) 713-1200 - Public Access System |
|
|
|
|
|
|
| Real Property Display - Screen Produced 3/3/2026 11:37:38 AM | ||||
|---|---|---|---|---|
| Account: R038039250 | Type: Residential | Location: |
1912 NE 24TH ST |
|
| Building Name/Occupant: |
|
OKLAHOMA CITY |
||
| Owner Name 1: | CLAYTON ESTATE LLC |
Parcel PIN#: |
2690-03-803-9250 |
|
| Owner Name 2: | 1/4 section #: |
2690 |
||
| Owner Name 3: | Parent Acct: |
|
||
| Billing Address: | 11109 N MCKINLEY AVE | Tax District: |
|
|
| City, State, Zip | OKLAHOMA CITY, OK 73114-7113 | School System: |
Oklahoma City #89 |
|
|
Country: (If noted) |
Land Size: |
0.1492 Acres |
||
|
Land Value: 6,175 |
|
|||
|
Sect 23-T12N-R3W Qtr SE |
HARMONY HILL ADD
Block
006
Lot
000
|
|||
| Full Legal Description: HARMONY HILL ADD 006 000 LOTS 17 & 18 |
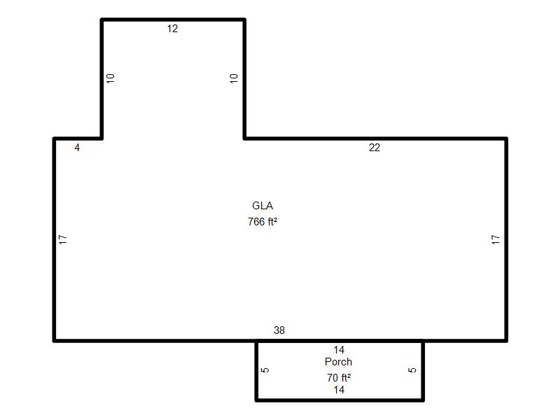
| Photo & Sketch (if available) | Comp Sales (ordered by relevancy) |
|
||||||||||||||||||
|
||||||||||||||||||||
| Value History (*The County Treasurer 405-713-1300 posts & collects actual tax amounts. Contact information HERE) | |||||||||||||
|---|---|---|---|---|---|---|---|---|---|---|---|---|---|
| Year | Market Value | Taxable Mkt Value | Gross Assessed | Exemption | Net Assessed | Millage | Est. Tax | Tax Savings | |||||
|
2025 |
57,000 |
57,000 |
6,270 |
0 |
6,270 |
122.90 |
$771 |
$0 |
|||||
|
2024 |
54,500 |
23,609 |
2,596 |
0 |
2,596 |
123.89 |
$322 |
$421 |
|||||
|
2023 |
46,500 |
22,485 |
2,472 |
0 |
2,472 |
122.82 |
$304 |
$324 |
|||||
|
2022 |
33,000 |
21,415 |
2,354 |
0 |
2,354 |
117.63 |
$277 |
$150 |
|||||
|
2021 |
30,500 |
20,396 |
2,242 |
0 |
2,242 |
117.70 |
$264 |
$131 |
|||||
| Property Account Status/Adjustments/Exemptions | ||
|---|---|---|
| Account # | Exemption Description | Amount |
|
R038039250 |
5% Capped Account |
0 |
| Property Deed Transaction History (Recorded in the County Clerk's Office) | ||||||||||
|---|---|---|---|---|---|---|---|---|---|---|
| Date | Type | Book | Page | Price | Grantor | Grantee | ||||
|
10/24/2024 |
|
Deeds |
$24,000 |
KNIGHT LAND COMPANY LLC |
CLAYTON ESTATE LLC |
|||||
|
2/18/2021 |
|
Hmstd Off & |
$0 |
SOKEWI LLC |
KNIGHT LAND COMPANY LLC |
|||||
|
9/23/2020 |
|
Hmstd Off & |
$0 |
KNIGHT LAND CO LLC |
SOKEWI LLC |
|||||
|
8/20/2018 |
|
Deeds |
$0 |
FREEMAN DONNIE |
FREEMAN GEORGE |
|||||
|
8/15/2018 |
|
Deeds |
$18,000 |
FREEMAN GEORGE & DONNIE |
KNIGHT LAND CO LLC |
|||||
| Last Mailed Notice of Value (N.O.V.) Information/History | ||||||||
|---|---|---|---|---|---|---|---|---|
| Year | Date | Market Value | Taxable Market Value | Gross Assessed | Exemption | Net Assessed | ||
|
2026 |
02/23/2026 |
63,000 |
59,850 |
6,583 |
0 |
6,583 |
||
|
2025 |
02/14/2025 |
57,000 |
57,000 |
6,270 |
0 |
6,270 |
||
|
2024 |
02/13/2024 |
54,500 |
23,609 |
2,596 |
0 |
2,596 |
||
|
2023 |
02/14/2023 |
46,500 |
22,485 |
2,472 |
0 |
2,472 |
||
|
2022 |
03/15/2022 |
33,000 |
21,415 |
2,354 |
0 |
2,354 |
||
| Property Building Permit History | |||||||||||
|---|---|---|---|---|---|---|---|---|---|---|---|
| Issued | Permit # | Provided by | Bldg # | Description | Est Construction Cost | Status | |||||
| No Building Permit records returned. | |||||||||||
| Click button on building number to access detailed information: | ||||||
|---|---|---|---|---|---|---|
| Bldg # | Vacant/Improved Land | Bldg Description | Year Built | SqFt | # Stories | |
|
1 |
Improved |
Ranch 1 Story |
1946 |
766 |
1 Stories |
|