|
|
|
| Larry Stein Oklahoma County Assessor (405) 713-1200 - Public Access System |
|
|
|
|
|
|
| Real Property Display - Screen Produced 4/7/2026 7:47:52 PM | ||||
|---|---|---|---|---|
| Account: R133366010 | Type: Residential | Location: |
1843 NE 26TH ST |
|
| Building Name/Occupant: |
|
OKLAHOMA CITY |
||
| Owner Name 1: | ADOMGRACE REAL ESTATE SOLUTIONS LLC |
Parcel PIN#: |
2690-13-336-6010 |
|
| Owner Name 2: | 1/4 section #: |
2690 |
||
| Owner Name 3: | Parent Acct: |
|
||
| Billing Address: | 2409 ANNALANE DR | Tax District: |
|
|
| City, State, Zip | NORMAN, OK 73072 | School System: |
Oklahoma City #89 |
|
|
Country: (If noted) |
Land Size: |
0.3020 Acres |
||
|
Land Value: 37,477 |
|
|||
|
Sect 23-T12N-R3W Qtr SE |
UNPLTD PT SEC 23 12N 3W
Block
000
Lot
000
|
|||
| Full Legal Description: UNPLTD PT SE4 SEC 23 12N 3W BEG 30FT N & 490FT E OF SW/C SW4 NE4 SE4 TH N100FT E170FT S100FT W170FT TO BEG EX S12.5FT & N10.1FT |
| Photo & Sketch (if available) | Comp Sales (ordered by relevancy) |
|
||||||||||||||||||
|
||||||||||||||||||||
| Value History (*The County Treasurer 405-713-1300 posts & collects actual tax amounts. Contact information HERE) | |||||||||||||
|---|---|---|---|---|---|---|---|---|---|---|---|---|---|
| Year | Market Value | Taxable Mkt Value | Gross Assessed | Exemption | Net Assessed | Millage | Est. Tax | Tax Savings | |||||
|
2026 |
128,000 |
11,187 |
1,230 |
0 |
1,230 |
122.90 |
$151 |
$1,579 |
|||||
|
2025 |
43,336 |
10,655 |
1,171 |
0 |
1,171 |
122.90 |
$144 |
$442 |
|||||
|
2024 |
10,148 |
10,148 |
1,116 |
0 |
1,116 |
123.89 |
$138 |
$0 |
|||||
|
2023 |
10,148 |
10,148 |
1,116 |
0 |
1,116 |
122.82 |
$137 |
$0 |
|||||
|
2022 |
10,148 |
10,148 |
1,116 |
0 |
1,116 |
117.63 |
$131 |
$0 |
|||||
| Property Account Status/Adjustments/Exemptions | ||
|---|---|---|
| Account # | Exemption Description | Amount |
|
R133366010 |
5% Capped Account |
0 |
| Property Deed Transaction History (Recorded in the County Clerk's Office) | ||||||||||
|---|---|---|---|---|---|---|---|---|---|---|
| Date | Type | Book | Page | Price | Grantor | Grantee | ||||
|
5/4/2022 |
|
Deeds |
$40,000 |
ENDLESS PROPERTY MANAGEMENT LLC |
ADOMGRACE REAL ESTATE SOLUTIONS LLC |
|||||
|
10/7/2021 |
|
Deeds |
$15,000 |
BUCHHOLZ JAMES E |
ENDLESS PROPERTY MANAGEMENT LLC |
|||||
|
11/25/2002 |
|
Deeds |
$13,500 |
FIRST UNION NATIONAL BANK C/O FAIRBANKS CAPITAL CORPORATION |
BUCHHOLZ JAMES E |
|||||
|
8/26/2002 |
|
Other |
$0 |
SHERIFFS DEED |
FIRST UNION NATIONAL BANK C/O FAIRBANKS CAPITAL CORPORATION |
|||||
|
2/20/1998 |
|
Historical |
$10,000 |
MCCOY SUSAN M |
ADKINS ANGELA A |
|||||
| Last Mailed Notice of Value (N.O.V.) Information/History | ||||||
|---|---|---|---|---|---|---|
| Year | Date | Market Value | Taxable Market Value | Gross Assessed | Exemption | Net Assessed |
|
2026 |
02/23/2026 |
128,000 |
11,187 |
1,230 |
0 |
1,230 |
|
2025 |
03/28/2025 |
43,336 |
10,655 |
1,171 |
0 |
1,171 |
|
2011 |
04/01/2011 |
10,675 |
10,655 |
1,171 |
0 |
1,171 |
| Property Building Permit History | ||||||
|---|---|---|---|---|---|---|
| Issued | Permit # | Provided by | Bldg # | Description | Est Construction Cost | Status |
|
6/20/2024 |
BLDR-2022-04790 |
|
1 |
Remodeled |
50,000 |
Inactive |
| Click button on building number to access detailed information: | ||||||
|---|---|---|---|---|---|---|
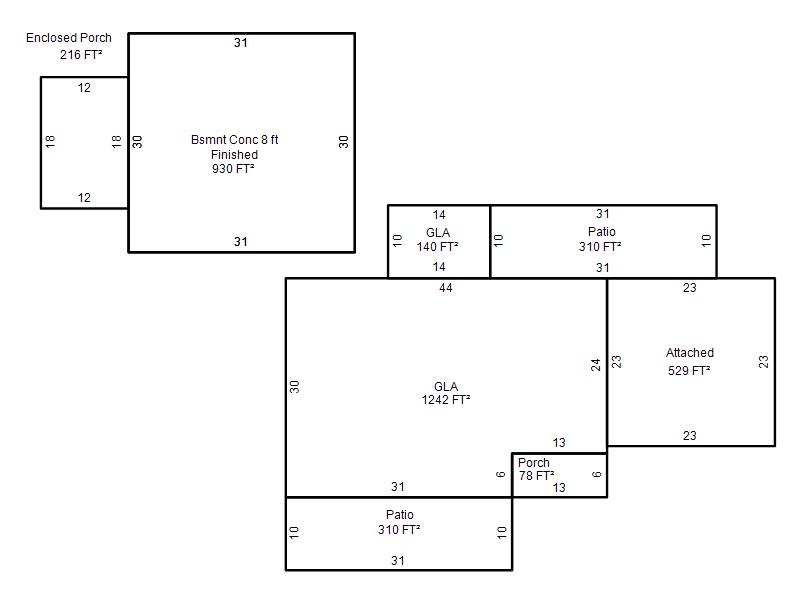
| Bldg # | Vacant/Improved Land | Bldg Description | Year Built | SqFt | # Stories | |
|
1 |
Improved |
Ranch 1 Story |
1948 |
1,382 |
1 Stories |
|