|
|
|
| Larry Stein Oklahoma County Assessor (405) 713-1200 - Public Access System |
|
|
|
|
|
|
| Real Property Display - Screen Produced 4/7/2026 7:47:51 PM | ||||
|---|---|---|---|---|
| Account: R133367020 | Type: Residential | Location: |
1805 NE 26TH ST |
|
| Building Name/Occupant: |
|
OKLAHOMA CITY |
||
| Owner Name 1: | KIRKENDOLL LAWRENCE JR & KAREN |
Parcel PIN#: |
2690-13-336-7020 |
|
| Owner Name 2: | 1/4 section #: |
2690 |
||
| Owner Name 3: | Parent Acct: |
|
||
| Billing Address: | 11000 N BLACKWELDER AVE | Tax District: |
|
|
| City, State, Zip | OKLAHOMA CITY, OK 73120-7918 | School System: |
Oklahoma City #89 |
|
|
Country: (If noted) |
Land Size: |
0.4650 Acres |
||
|
Land Value: 44,693 |
|
|||
|
Sect 23-T12N-R3W Qtr SE |
UNPLTD PT SEC 23 12N 3W
Block
000
Lot
000
|
|||
| Full Legal Description: UNPLTD PT SEC 23 12N 3W 000 000 PT OF SE4 SEC 23 12N 3W BEG 30FT N & 30FT E OF SW/C OF SW4 OF NE4 OF SE4 TH N135FT E159FT S135FT W159FT TO BEG EX N7.5FT |
| Photo & Sketch (if available) | Comp Sales (ordered by relevancy) |
|
||||||||||||||||||
|
||||||||||||||||||||
| Value History (*The County Treasurer 405-713-1300 posts & collects actual tax amounts. Contact information HERE) | |||||||||||||
|---|---|---|---|---|---|---|---|---|---|---|---|---|---|
| Year | Market Value | Taxable Mkt Value | Gross Assessed | Exemption | Net Assessed | Millage | Est. Tax | Tax Savings | |||||
|
2026 |
60,500 |
33,169 |
3,647 |
0 |
3,647 |
122.90 |
$448 |
$369 |
|||||
|
2025 |
54,500 |
31,590 |
3,474 |
0 |
3,474 |
122.90 |
$427 |
$310 |
|||||
|
2024 |
73,500 |
30,086 |
3,308 |
0 |
3,308 |
123.89 |
$410 |
$592 |
|||||
|
2023 |
62,500 |
28,654 |
3,151 |
0 |
3,151 |
122.82 |
$387 |
$457 |
|||||
|
2022 |
44,500 |
27,290 |
3,000 |
0 |
3,000 |
117.63 |
$353 |
$223 |
|||||
| Property Account Status/Adjustments/Exemptions | ||
|---|---|---|
| Account # | Exemption Description | Amount |
|
R133367020 |
5% Capped Account |
0 |
| Property Deed Transaction History (Recorded in the County Clerk's Office) | ||||||||||
|---|---|---|---|---|---|---|---|---|---|---|
| Date | Type | Book | Page | Price | Grantor | Grantee | ||||
|
8/6/2013 |
|
Deeds |
$0 |
KIRKENDOLL LAWRENCE SR & BETTY J |
KIRKENDOLL LAWRENCE J JR & KAREN Y |
|||||
|
8/6/2013 |
|
Deeds |
$0 |
KIRKENDOLL LAWRENCE SR & BETTY J |
KIRKENDOLL LAWRENCE JR & KAREN |
|||||
|
7/23/2013 |
|
Deeds |
$0 |
KIRKENDOLL BETTY KIRKENDOLL LAWRENCE J JR KIRKENDOLL KAREN Y |
KIRKENDOLL LAWRENCE J JR KIRKENDOLL KAREN Y |
|||||
|
7/23/2013 |
|
Deeds |
$0 |
KIRKENDOLL BETTY KIRKENDOLL LAWRENCE J JR KIRKENDOLL KAREN Y |
KIRKENDOLL LAWRENCE J JR & KAREN Y |
|||||
|
6/18/2013 |
|
Deeds |
$0 |
KIRKENDOLL LAWRENCE J |
KIRKENDOLL LAWRENCE KIRKENDOLL KAREN |
|||||
| Last Mailed Notice of Value (N.O.V.) Information/History | ||||||||
|---|---|---|---|---|---|---|---|---|
| Year | Date | Market Value | Taxable Market Value | Gross Assessed | Exemption | Net Assessed | ||
|
2026 |
03/30/2026 |
60,500 |
33,169 |
3,647 |
0 |
3,647 |
||
|
2025 |
03/28/2025 |
54,500 |
31,590 |
3,474 |
0 |
3,474 |
||
|
2024 |
02/13/2024 |
73,500 |
30,086 |
3,308 |
0 |
3,308 |
||
|
2023 |
02/14/2023 |
62,500 |
28,654 |
3,151 |
0 |
3,151 |
||
|
2022 |
03/15/2022 |
44,500 |
27,290 |
3,000 |
0 |
3,000 |
||
| Property Building Permit History | ||||||
|---|---|---|---|---|---|---|
| Issued | Permit # | Provided by | Bldg # | Description | Est Construction Cost | Status |
|
7/10/2024 |
|
|
1 |
Remodeled |
|
Active |
|
5/15/1997 |
10231022 |
OKLAHOMA CITY |
1 |
Remodeled |
2,000 |
Inactive |
| Click button on building number to access detailed information: | ||||||
|---|---|---|---|---|---|---|
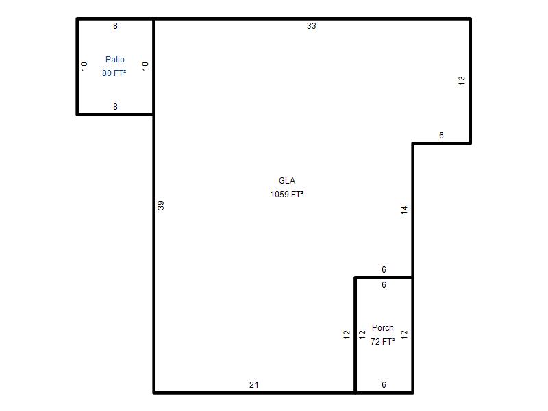
| Bldg # | Vacant/Improved Land | Bldg Description | Year Built | SqFt | # Stories | |
|
1 |
Improved |
Ranch 1 Story |
1921 |
1,059 |
1 Stories |
|