|
|
|
| Larry Stein Oklahoma County Assessor (405) 713-1200 - Public Access System |
|
|
|
|
|
|
| Real Property Display - Screen Produced 5/1/2026 5:05:26 AM | ||||
|---|---|---|---|---|
| Account: R034915535 | Type: Residential | Location: |
1430 MONTICELLO CT |
|
| Building Name/Occupant: |
|
OKLAHOMA CITY |
||
| Owner Name 1: | STUBBS BRYAN A |
Parcel PIN#: |
2691-03-491-5535 |
|
| Owner Name 2: | 1/4 section #: |
2691 |
||
| Owner Name 3: | Parent Acct: |
|
||
| Billing Address: | 1430 MONTICELLO CT | Tax District: |
|
|
| City, State, Zip | OKLAHOMA CITY, OK 73111-3072 | School System: |
Oklahoma City #89 |
|
|
Country: (If noted) |
Land Size: |
0.1260 Acres |
||
|
Land Value: 2,250 |
|
|||
|
Sect 23-T12N-R3W Qtr SW |
CAPITOL COURTS ADD
Block
013
Lot
000
|
|||
| Full Legal Description: CAPITOL COURTS ADD 013 000 LOTS 6 & 7 |
| No comparable sales report available. | ||||||||||||||||||||||
|
||||||||||||||||||||||
| Value History (*The County Treasurer 405-713-1300 posts & collects actual tax amounts. Contact information HERE) | |||||||||||||
|---|---|---|---|---|---|---|---|---|---|---|---|---|---|
| Year | Market Value | Taxable Mkt Value | Gross Assessed | Exemption | Net Assessed | Millage | Est. Tax | Tax Savings | |||||
|
2026 |
6,435 |
6,435 |
707 |
0 |
707 |
122.90 |
$87 |
$0 |
|||||
|
2025 |
6,435 |
6,435 |
707 |
0 |
707 |
122.90 |
$87 |
$0 |
|||||
|
2024 |
7,604 |
7,604 |
836 |
0 |
836 |
123.89 |
$104 |
$0 |
|||||
| Property Account Status/Adjustments/Exemptions | ||
|---|---|---|
| Account # | Exemption Description | Amount |
|
R034915535 |
5% Capped Account |
0 |
| Property Deed Transaction History (Recorded in the County Clerk's Office) | ||||||||||
|---|---|---|---|---|---|---|---|---|---|---|
| Date | Type | Book | Page | Price | Grantor | Grantee | ||||
|
2/10/2014 |
|
Hmstd Off & |
$0 |
FIELDS LEDFORD C |
STUBBS BRYAN A |
|||||
|
9/18/2003 |
|
Deeds |
$0 |
DILLARD MATTIE D & HERMAN |
DILLARD MATTIE B |
|||||
|
9/18/2003 |
|
Deeds |
$5,000 |
DILLARD MATTIE B |
FIELDS LEDFORD C |
|||||
| Last Mailed Notice of Value (N.O.V.) Information/History | ||||||||
|---|---|---|---|---|---|---|---|---|
| Year | Date | Market Value | Taxable Market Value | Gross Assessed | Exemption | Net Assessed | ||
|
2024 |
02/13/2024 |
7,604 |
7,604 |
836 |
0 |
836 |
||
|
2023 |
02/14/2023 |
7,609 |
7,447 |
819 |
0 |
819 |
||
|
2022 |
03/15/2022 |
7,614 |
7,093 |
779 |
0 |
779 |
||
| Property Building Permit History | |||||||||||
|---|---|---|---|---|---|---|---|---|---|---|---|
| Issued | Permit # | Provided by | Bldg # | Description | Est Construction Cost | Status | |||||
| No Building Permit records returned. | |||||||||||
| Click button below to access detailed information and additional property photos: | ||||||
|---|---|---|---|---|---|---|
| Bldg # | Vacant/Improved Land | Bldg Description | Year Built | SqFt | # Stories | |
|
1 |
Improved |
Salvage |
1929 |
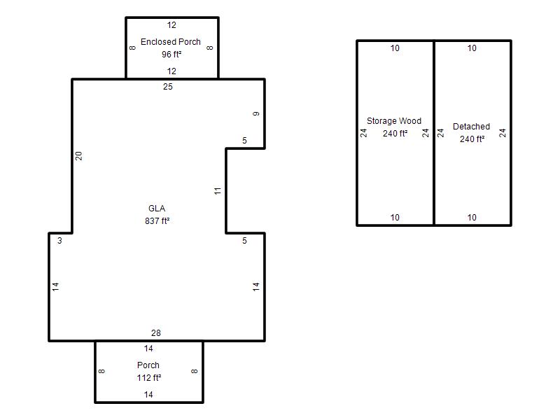
837 |
1 Stories |
|