|
|
|
| Larry Stein Oklahoma County Assessor (405) 713-1200 - Public Access System |
|
|
|
|
|
|
| Real Property Display - Screen Produced 3/3/2026 1:23:21 PM | ||||
|---|---|---|---|---|
| Account: R034992660 | Type: Residential | Location: |
1217 NE 24TH ST |
|
| Building Name/Occupant: |
|
OKLAHOMA CITY |
||
| Owner Name 1: | GALBERTH SYLVIA |
Parcel PIN#: |
2691-03-499-2660 |
|
| Owner Name 2: | 1/4 section #: |
2691 |
||
| Owner Name 3: | Parent Acct: |
|
||
| Billing Address: | 1217 NE 24TH ST | Tax District: |
|
|
| City, State, Zip | OKLAHOMA CITY, OK 73111-2801 | School System: |
Oklahoma City #89 |
|
|
Country: (If noted) |
Land Size: |
0.1787 Acres |
||
|
Land Value: 2,335 |
|
|||
|
Sect 23-T12N-R3W Qtr SW |
FAIRFAX ADDITION
Block
013
Lot
000
|
|||
| Full Legal Description: FAIRFAX ADDITION 013 000 E18FT LOT 10 & W38FT LOT 11 |
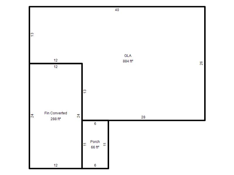
| Photo & Sketch (if available) | Comp Sales (ordered by relevancy) |
|
||||||||||||||||||
|
||||||||||||||||||||
| Value History (*The County Treasurer 405-713-1300 posts & collects actual tax amounts. Contact information HERE) | |||||||||||||
|---|---|---|---|---|---|---|---|---|---|---|---|---|---|
| Year | Market Value | Taxable Mkt Value | Gross Assessed | Exemption | Net Assessed | Millage | Est. Tax | Tax Savings | |||||
|
2025 |
85,000 |
15,367 |
1,690 |
1,690 |
0 |
122.90 |
$0 |
$1,149 |
|||||
|
2024 |
82,500 |
14,920 |
1,640 |
1,000 |
640 |
123.89 |
$79 |
$1,045 |
|||||
|
2023 |
70,000 |
14,486 |
1,593 |
1,593 |
0 |
122.82 |
$0 |
$946 |
|||||
|
2022 |
51,500 |
14,065 |
1,546 |
1,546 |
0 |
117.63 |
$0 |
$666 |
|||||
|
2021 |
48,000 |
13,656 |
1,501 |
1,501 |
0 |
117.70 |
$0 |
$621 |
|||||
| Property Account Status/Adjustments/Exemptions | ||
|---|---|---|
| Account # | Exemption Description | Amount |
|
R034992660 |
Freeze Senior Valuation |
0 |
|
R034992660 |
Senior Additional Homestead |
1,000 |
|
R034992660 |
Homestead |
1,000 |
|
R034992660 |
3% Cap Homestead |
0 |
| Property Deed Transaction History (Recorded in the County Clerk's Office) | ||||||||||
|---|---|---|---|---|---|---|---|---|---|---|
| Date | Type | Book | Page | Price | Grantor | Grantee | ||||
|
3/23/2015 |
|
Deeds |
$0 |
WEAVER JANET GALBERTH SYLVIA |
GALBERTH SYLVIA |
|||||
|
4/28/2007 |
|
Deeds |
$0 |
GALBERTH HELEN WEAVER JANET |
WEAVER JANET GALBERTH SYLVIA |
|||||
|
9/19/2005 |
|
Deeds |
$0 |
GALBERTH HELEN |
GALBERTH HELEN WEAVER JANET |
|||||
|
2/9/2001 |
|
Deeds |
$0 |
GALBERTH HELEN DAWSON WESLEY |
GALBERTH HELEN |
|||||
|
12/30/1993 |
|
Historical |
$0 |
GALBERTH HELEN |
GALBERTH HELEN |
|||||
| Last Mailed Notice of Value (N.O.V.) Information/History | ||||||||
|---|---|---|---|---|---|---|---|---|
| Year | Date | Market Value | Taxable Market Value | Gross Assessed | Exemption | Net Assessed | ||
|
2026 |
02/23/2026 |
90,000 |
15,828 |
1,740 |
1,740 |
0 |
||
|
2025 |
02/14/2025 |
85,000 |
15,367 |
1,690 |
1,690 |
0 |
||
|
2024 |
02/13/2024 |
82,500 |
14,920 |
1,640 |
1,000 |
640 |
||
|
2023 |
02/14/2023 |
70,000 |
14,486 |
1,593 |
1,593 |
0 |
||
|
2022 |
03/15/2022 |
51,500 |
14,065 |
1,546 |
1,546 |
0 |
||
| Property Building Permit History | |||||||||||
|---|---|---|---|---|---|---|---|---|---|---|---|
| Issued | Permit # | Provided by | Bldg # | Description | Est Construction Cost | Status | |||||
| No Building Permit records returned. | |||||||||||
| Click button on building number to access detailed information: | ||||||
|---|---|---|---|---|---|---|
| Bldg # | Vacant/Improved Land | Bldg Description | Year Built | SqFt | # Stories | |
|
1 |
Improved |
Ranch 1 Story |
1967 |
884 |
1 Stories |
|