|
|
|
| Larry Stein Oklahoma County Assessor (405) 713-1200 - Public Access System |
|
|
|
|
|
|
| Real Property Display - Screen Produced 3/3/2026 1:23:22 PM | ||||
|---|---|---|---|---|
| Account: R034993990 | Type: Residential | Location: |
2526 N KATE AVE |
|
| Building Name/Occupant: |
|
OKLAHOMA CITY |
||
| Owner Name 1: | ROBERTS QUINN |
Parcel PIN#: |
2691-03-499-3990 |
|
| Owner Name 2: | 1/4 section #: |
2691 |
||
| Owner Name 3: | Parent Acct: |
|
||
| Billing Address: | 717 NW 27TH ST | Tax District: |
|
|
| City, State, Zip | OKLAHOMA CITY, OK 73103 | School System: |
Oklahoma City #89 |
|
|
Country: (If noted) |
Land Size: |
0.1171 Acres |
||
|
Land Value: 1,530 |
|
|||
|
Sect 23-T12N-R3W Qtr SW |
FAIRFAX ADDITION
Block
015
Lot
000
|
|||
| Full Legal Description: FAIRFAX ADDITION 015 000 S6FT OF LOT 1 & N45FT OF LOT 2 |
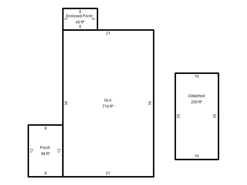
| Photo & Sketch (if available) | Comp Sales (ordered by relevancy) |
|
||||||||||||||||||
|
||||||||||||||||||||
| Value History (*The County Treasurer 405-713-1300 posts & collects actual tax amounts. Contact information HERE) | |||||||||||||
|---|---|---|---|---|---|---|---|---|---|---|---|---|---|
| Year | Market Value | Taxable Mkt Value | Gross Assessed | Exemption | Net Assessed | Millage | Est. Tax | Tax Savings | |||||
|
2025 |
57,000 |
28,843 |
3,172 |
0 |
3,172 |
122.90 |
$390 |
$381 |
|||||
|
2024 |
55,000 |
27,470 |
3,020 |
0 |
3,020 |
123.89 |
$374 |
$375 |
|||||
|
2023 |
47,000 |
26,162 |
2,877 |
0 |
2,877 |
122.82 |
$353 |
$282 |
|||||
|
2022 |
33,000 |
24,917 |
2,740 |
0 |
2,740 |
117.63 |
$322 |
$105 |
|||||
|
2021 |
30,500 |
23,731 |
2,610 |
0 |
2,610 |
117.70 |
$307 |
$88 |
|||||
| Property Account Status/Adjustments/Exemptions | ||
|---|---|---|
| Account # | Exemption Description | Amount |
|
R034993990 |
5% Capped Account |
0 |
| Property Deed Transaction History (Recorded in the County Clerk's Office) | |||||||
|---|---|---|---|---|---|---|---|
| Date | Type | Book | Page | Price | Grantor | Grantee | |
|
11/24/1999 |
|
Hmstd Off & |
$0 |
TUCKER GEORGIA R |
ROBERTS QUINN |
||
|
11/13/1999 |
|
Deeds |
$20,500 |
EDWARDS JANET PR ESTATE OF GEORGIA R TUCKER |
ROBERTS QUINN |
||
|
11/11/1911 |
|
Historical |
$0 |
|
TUCKER GEORGIA R |
||
| Last Mailed Notice of Value (N.O.V.) Information/History | ||||||||
|---|---|---|---|---|---|---|---|---|
| Year | Date | Market Value | Taxable Market Value | Gross Assessed | Exemption | Net Assessed | ||
|
2026 |
02/23/2026 |
63,000 |
30,285 |
3,330 |
0 |
3,330 |
||
|
2025 |
02/14/2025 |
57,000 |
28,843 |
3,172 |
0 |
3,172 |
||
|
2024 |
02/13/2024 |
55,000 |
27,470 |
3,020 |
0 |
3,020 |
||
|
2023 |
02/14/2023 |
47,000 |
26,162 |
2,877 |
0 |
2,877 |
||
|
2022 |
03/15/2022 |
33,000 |
24,917 |
2,740 |
0 |
2,740 |
||
| Property Building Permit History | |||||||||||
|---|---|---|---|---|---|---|---|---|---|---|---|
| Issued | Permit # | Provided by | Bldg # | Description | Est Construction Cost | Status | |||||
| No Building Permit records returned. | |||||||||||
| Click button on building number to access detailed information: | ||||||
|---|---|---|---|---|---|---|
| Bldg # | Vacant/Improved Land | Bldg Description | Year Built | SqFt | # Stories | |
|
1 |
Improved |
Ranch 1 Story |
1930 |
714 |
1 Stories |
|