|
|
|
| Larry Stein Oklahoma County Assessor (405) 713-1200 - Public Access System |
|
|
|
|
|
|
| Real Property Display - Screen Produced 3/3/2026 1:23:22 PM | ||||
|---|---|---|---|---|
| Account: R034994750 | Type: Residential | Location: |
2512 N KATE AVE |
|
| Building Name/Occupant: |
|
OKLAHOMA CITY |
||
| Owner Name 1: | WAYNES WORLD ENTERPRIES LLC |
Parcel PIN#: |
2691-03-499-4750 |
|
| Owner Name 2: | 1/4 section #: |
2691 |
||
| Owner Name 3: | Parent Acct: |
|
||
| Billing Address: | 2512 N KATE AVE | Tax District: |
|
|
| City, State, Zip | OKLAHOMA CITY, OK 73111 | School System: |
Oklahoma City #89 |
|
|
Country: (If noted) |
Land Size: |
0.1171 Acres |
||
|
Land Value: 1,530 |
|
|||
|
Sect 23-T12N-R3W Qtr SW |
FAIRFAX ADDITION
Block
015
Lot
000
|
|||
| Full Legal Description: FAIRFAX ADDITION 015 000 S42FT OF LOT 5 & N9FT OF LOT 6 |
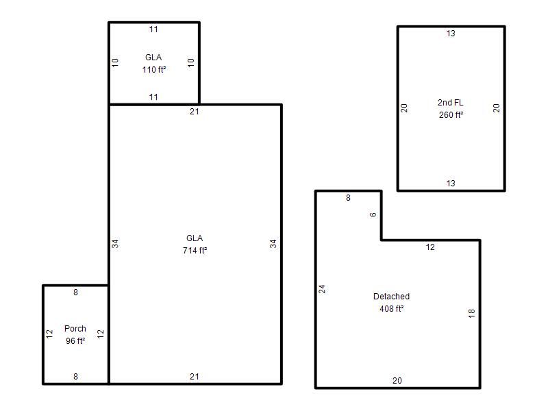
| Photo & Sketch (if available) | Comp Sales (ordered by relevancy) |
|
||||||||||||||||||
|
||||||||||||||||||||
| Value History (*The County Treasurer 405-713-1300 posts & collects actual tax amounts. Contact information HERE) | |||||||||||||
|---|---|---|---|---|---|---|---|---|---|---|---|---|---|
| Year | Market Value | Taxable Mkt Value | Gross Assessed | Exemption | Net Assessed | Millage | Est. Tax | Tax Savings | |||||
|
2025 |
74,000 |
49,777 |
5,474 |
0 |
5,474 |
122.90 |
$673 |
$327 |
|||||
|
2024 |
70,500 |
47,407 |
5,214 |
0 |
5,214 |
123.89 |
$646 |
$315 |
|||||
|
2023 |
60,500 |
45,150 |
4,966 |
0 |
4,966 |
122.82 |
$610 |
$207 |
|||||
|
2022 |
43,000 |
43,000 |
4,730 |
0 |
4,730 |
117.63 |
$556 |
$0 |
|||||
|
2021 |
39,500 |
31,255 |
3,437 |
0 |
3,437 |
117.70 |
$405 |
$107 |
|||||
| Property Account Status/Adjustments/Exemptions | ||
|---|---|---|
| Account # | Exemption Description | Amount |
|
R034994750 |
5% Capped Account |
0 |
| Property Deed Transaction History (Recorded in the County Clerk's Office) | ||||||||||
|---|---|---|---|---|---|---|---|---|---|---|
| Date | Type | Book | Page | Price | Grantor | Grantee | ||||
|
3/30/2021 |
|
Deeds |
$14,000 |
PETTIES CEDRIC |
WAYNES WORLD ENTERPRIES LLC |
|||||
|
6/1/2016 |
|
Deeds |
$0 |
SMILEY DONNIE |
PETTIES CEDRC |
|||||
|
6/1/2016 |
|
Deeds |
$0 |
CALDWELL BRANDI |
PETTIES CEDRIC |
|||||
|
6/1/2016 |
|
Deeds |
$0 |
THREATT ANTAJUAN |
PETTIES CEDRIC |
|||||
|
2/17/2016 |
|
Deeds |
$0 |
THREATT MARVIN LAQUAINE |
THREATT SHARMETRA SMILEY DONNIE THREATT ANTAJUN |
|||||
| Last Mailed Notice of Value (N.O.V.) Information/History | ||||||||
|---|---|---|---|---|---|---|---|---|
| Year | Date | Market Value | Taxable Market Value | Gross Assessed | Exemption | Net Assessed | ||
|
2026 |
02/23/2026 |
81,500 |
52,265 |
5,748 |
0 |
5,748 |
||
|
2025 |
02/14/2025 |
74,000 |
49,777 |
5,474 |
0 |
5,474 |
||
|
2024 |
02/13/2024 |
70,500 |
47,407 |
5,214 |
0 |
5,214 |
||
|
2023 |
02/14/2023 |
60,500 |
45,150 |
4,966 |
0 |
4,966 |
||
|
2022 |
03/15/2022 |
43,000 |
43,000 |
4,730 |
0 |
4,730 |
||
| Property Building Permit History | ||||||
|---|---|---|---|---|---|---|
| Issued | Permit # | Provided by | Bldg # | Description | Est Construction Cost | Status |
|
2/5/2026 |
OCFD26002887 |
|
1 |
Burn - Trip |
|
Active |
|
11/20/2014 |
10467835 |
OKLAHOMA CITY |
1 |
Fire Remodel |
0 |
Inactive |
| Click button on building number to access detailed information: | ||||||
|---|---|---|---|---|---|---|
| Bldg # | Vacant/Improved Land | Bldg Description | Year Built | SqFt | # Stories | |
|
1 |
Improved |
1½ Story Fin |
1930 |
1,084 |
1.5 Stories |
|