|
|
|
| Larry Stein Oklahoma County Assessor (405) 713-1200 - Public Access System |
|
|
|
|
|
|
| Real Property Display - Screen Produced 4/7/2026 7:46:38 PM | ||||
|---|---|---|---|---|
| Account: R133364800 | Type: Commercial | Location: |
2502 N KELLEY AVE |
|
| Building Name/Occupant: |
UPTOWN @ KELLEY APARTMENTS |
OKLAHOMA CITY |
||
| Owner Name 1: | WD HERITAGE LLC |
Parcel PIN#: |
2691-13-336-4800 |
|
| Owner Name 2: | 1/4 section #: |
2691 |
||
| Owner Name 3: | Parent Acct: |
|
||
| Billing Address: | 2502 N KELLEY AVE | Tax District: |
|
|
| City, State, Zip | OKLAHOMA CITY, OK 73111 | School System: |
Oklahoma City #89 |
|
|
Country: (If noted) |
Land Size: |
14.2800 Acres |
||
|
Land Value: 600,000 |
|
|||
|
Sect 23-T12N-R3W Qtr SW |
UNPLTD PT SEC 23 12N 3W
Block
000
Lot
000
|
|||
| Full Legal Description: UNPLTD PT SEC 23 12N 3W 000 000 PT SW4 SEC 23 12N 3W BEG 528FT N OF SW/C OF SW4 TH E825FT N826.2FT W825FT S826.2FT TO BEG EX W50FT & EX N30FT OF W600FT |
| No comparable sales report available. | ||||||||||||||||||||||
|
||||||||||||||||||||||
| Value History (*The County Treasurer 405-713-1300 posts & collects actual tax amounts. Contact information HERE) | |||||||||||||
|---|---|---|---|---|---|---|---|---|---|---|---|---|---|
| Year | Market Value | Taxable Mkt Value | Gross Assessed | Exemption | Net Assessed | Millage | Est. Tax | Tax Savings | |||||
|
2026 |
11,005,900 |
8,301,328 |
913,145 |
0 |
913,145 |
122.90 |
$112,226 |
$36,563 |
|||||
|
2025 |
12,228,814 |
7,906,027 |
869,662 |
0 |
869,662 |
122.90 |
$106,882 |
$58,440 |
|||||
|
2024 |
7,529,550 |
7,529,550 |
828,250 |
0 |
828,250 |
123.89 |
$102,612 |
$0 |
|||||
|
2023 |
7,529,550 |
7,524,348 |
827,678 |
0 |
827,678 |
122.82 |
$101,655 |
$70 |
|||||
|
2022 |
7,529,550 |
7,166,046 |
788,264 |
0 |
788,264 |
117.63 |
$92,724 |
$4,703 |
|||||
| Property Account Status/Adjustments/Exemptions | ||
|---|---|---|
| Account # | Exemption Description | Amount |
|
R133364800 |
5% Capped Account |
0 |
| Property Deed Transaction History (Recorded in the County Clerk's Office) | |||||||
|---|---|---|---|---|---|---|---|
| Date | Type | Book | Page | Price | Grantor | Grantee | |
|
6/11/2018 |
|
Deeds |
$1,325,000 |
SHAVER AFFORDABLE HOUSING OKC LP |
WD HERITAGE LLC |
||
|
10/28/1999 |
|
Deeds |
$760,000 |
SOMERSET MANAGEMENT LLC |
SHAVER AFFORTABLE HOUSING OKC LP |
||
|
1/15/1998 |
|
Deeds |
$760,000 |
CAPITOL PARK ASSETS CORP |
SOMERSET MANAGEMENT LLC |
||
|
11/27/1990 |
|
Historical |
$0 |
DELUCA SAM |
PRINCE HALL HOUSING |
||
|
3/1/1986 |
|
Historical |
$0 |
|
DELUCA SAM |
||
| Last Mailed Notice of Value (N.O.V.) Information/History | ||||||||
|---|---|---|---|---|---|---|---|---|
| Year | Date | Market Value | Taxable Market Value | Gross Assessed | Exemption | Net Assessed | ||
|
2026 |
03/23/2026 |
11,005,900 |
8,301,328 |
913,145 |
0 |
913,145 |
||
|
2025 |
03/14/2025 |
12,228,814 |
7,906,027 |
869,662 |
0 |
869,662 |
||
|
2024 |
03/12/2024 |
7,529,550 |
7,529,550 |
828,250 |
0 |
828,250 |
||
|
2023 |
03/13/2023 |
7,529,550 |
7,524,348 |
827,678 |
0 |
827,678 |
||
|
2022 |
03/09/2022 |
7,529,550 |
7,166,046 |
788,264 |
0 |
788,264 |
||
| Property Building Permit History | |||||||||||
|---|---|---|---|---|---|---|---|---|---|---|---|
| Issued | Permit # | Provided by | Bldg # | Description | Est Construction Cost | Status | |||||
|
1/6/2020 |
|
|
1 |
Burn - Trip |
10,000 |
Inactive |
|||||
|
11/19/2019 |
|
|
1 |
Commercial |
1,821,975 |
Inactive |
|||||
|
8/9/2019 |
BLDC-2019-00896 |
|
1 |
Commercial |
250,000 |
Inactive |
|||||
|
8/26/2014 |
10464993 |
OKLAHOMA CITY |
1 |
Commercial |
60,000 |
Inactive |
|||||
|
3/14/2008 |
10349679 |
OKLAHOMA CITY |
1 |
Burn - Trip |
40,000 |
Inactive |
|||||
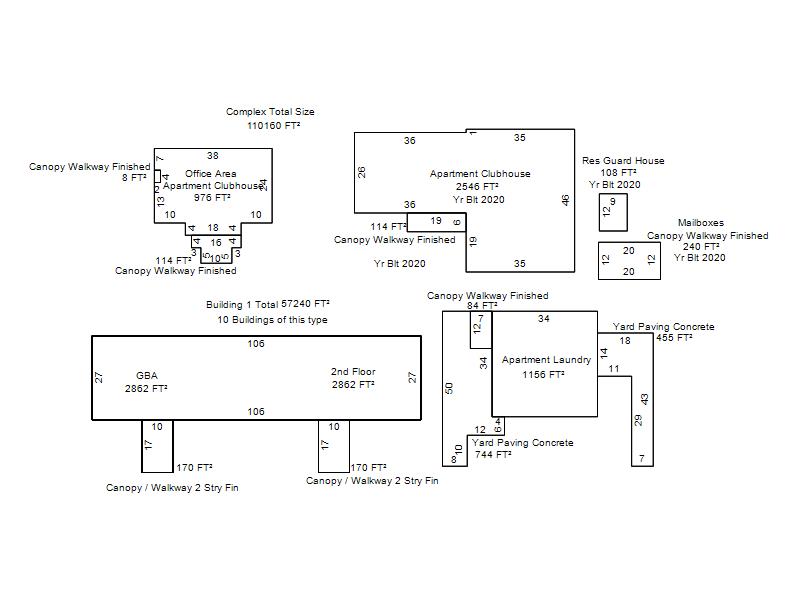
| Click button on building number to access detailed information: | ||||||
|---|---|---|---|---|---|---|
| Bldg # | Vacant/Improved Land | Bldg Description | Year Built | SqFt | # Stories | |
|
1 |
Improved |
Multiple - Residential |
1972 |
57,240 |
2 Stories |
|
|
2 |
Improved |
Multiple - Residential |
1972 |
52,920 |
2 Stories |
|
|
3 |
Improved |
Multiple - Residential |
2020 |
21,504 |
2 Stories |
|
|
4 |
Improved |
Multiple - Residential |
2020 |
14,336 |
2 Stories |
|
|
5 |
Improved |
Multiple - Residential |
2020 |
2,565 |
1 Stories |
|
|
6 |
Improved |
Multiple - Residential |
1972 |
3,120 |
1 Stories |
|