|
|
|
| Larry Stein Oklahoma County Assessor (405) 713-1200 - Public Access System |
|
|
|
|
|
|
| Real Property Display - Screen Produced 4/7/2026 7:47:51 PM | ||||
|---|---|---|---|---|
| Account: R133366800 | Type: Industrial | Location: |
1213 NE 23RD ST |
|
| Building Name/Occupant: |
NO NAME |
OKLAHOMA CITY |
||
| Owner Name 1: | AKHTAR NASIR |
Parcel PIN#: |
2691-13-336-6800 |
|
| Owner Name 2: | 1/4 section #: |
2691 |
||
| Owner Name 3: | Parent Acct: |
|
||
| Billing Address: | 21 NW 147TH ST | Tax District: |
|
|
| City, State, Zip | EDMOND, OK 73013 | School System: |
Oklahoma City #89 |
|
|
Country: (If noted) |
Land Size: |
8,650.0000 Square Feet |
||
|
Land Value: 63,623 |
|
|||
|
Sect 23-T12N-R3W Qtr SW |
UNPLTD PT SEC 23 12N 3W
Block
000
Lot
000
|
|||
| Full Legal Description: UNPLTD PT SW4 SEC 23 12N 3W BEG 1155FT E SW/C SD SW4 TH N173FT E50FT S173FT W50FT TO BEG |
| No comparable sales report available. | ||||||||||||||||||||||
|
||||||||||||||||||||||
| Value History (*The County Treasurer 405-713-1300 posts & collects actual tax amounts. Contact information HERE) | |||||||||||||
|---|---|---|---|---|---|---|---|---|---|---|---|---|---|
| Year | Market Value | Taxable Mkt Value | Gross Assessed | Exemption | Net Assessed | Millage | Est. Tax | Tax Savings | |||||
|
2026 |
298,000 |
298,000 |
32,780 |
0 |
32,780 |
122.90 |
$4,029 |
$0 |
|||||
|
2025 |
221,059 |
184,756 |
20,322 |
0 |
20,322 |
122.90 |
$2,498 |
$491 |
|||||
|
2024 |
198,343 |
175,959 |
19,354 |
0 |
19,354 |
123.89 |
$2,398 |
$305 |
|||||
|
2023 |
198,343 |
167,580 |
18,433 |
0 |
18,433 |
122.82 |
$2,264 |
$416 |
|||||
|
2022 |
198,343 |
159,600 |
17,556 |
0 |
17,556 |
117.63 |
$2,065 |
$501 |
|||||
| Property Account Status/Adjustments/Exemptions | ||||||
|---|---|---|---|---|---|---|
| Account # | Exemption Description | Amount | ||||
| No adjustment/exemption records returned. | ||||||
| Property Deed Transaction History (Recorded in the County Clerk's Office) | ||||||||||
|---|---|---|---|---|---|---|---|---|---|---|
| Date | Type | Book | Page | Price | Grantor | Grantee | ||||
|
5/28/2025 |
|
Mult Parcel |
$300,000 |
GTH QUALIFIED OPPORTUNITY FUND LLC |
AKHTAR NASIR |
|||||
|
1/23/2020 |
|
Deeds |
$0 |
ROBINSON BESSIE L |
GTH QUALIFIED OPPORTUNITY FUND LLC |
|||||
|
12/31/2019 |
|
Deeds |
$0 |
ROBINSON COLLISION CENTER LLC |
ROBINSON BESSIE L |
|||||
|
12/31/2019 |
|
Deeds |
$151,000 |
ROBINSON BESSIE L |
GTH QUALIFIED OPPORTUNITY FUND LLC |
|||||
|
12/26/2019 |
|
Hmstd Off & |
$0 |
ROBINSON COLLISON CENTER LLC |
ROBINSON BESSIE L |
|||||
| Last Mailed Notice of Value (N.O.V.) Information/History | ||||||||
|---|---|---|---|---|---|---|---|---|
| Year | Date | Market Value | Taxable Market Value | Gross Assessed | Exemption | Net Assessed | ||
|
2026 |
03/23/2026 |
298,000 |
298,000 |
32,780 |
0 |
32,780 |
||
|
2025 |
03/14/2025 |
221,059 |
184,756 |
20,322 |
0 |
20,322 |
||
|
2024 |
03/12/2024 |
198,343 |
175,959 |
19,354 |
0 |
19,354 |
||
|
2023 |
03/13/2023 |
198,343 |
167,580 |
18,433 |
0 |
18,433 |
||
|
2022 |
03/09/2022 |
198,343 |
159,600 |
17,556 |
0 |
17,556 |
||
| Property Building Permit History | |||||||||||
|---|---|---|---|---|---|---|---|---|---|---|---|
| Issued | Permit # | Provided by | Bldg # | Description | Est Construction Cost | Status | |||||
| No Building Permit records returned. | |||||||||||
| Click button on building number to access detailed information: | ||||||
|---|---|---|---|---|---|---|
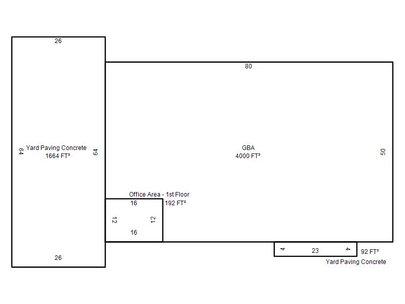
| Bldg # | Vacant/Improved Land | Bldg Description | Year Built | SqFt | # Stories | |
|
1 |
Improved |
Indust Lght Manufacturing |
1985 |
4,000 |
1 Stories |
|