|
|
|
| Larry Stein Oklahoma County Assessor (405) 713-1200 - Public Access System |
|
|
|
|
|
|
| Real Property Display - Screen Produced 4/24/2026 12:57:33 AM | ||||
|---|---|---|---|---|
| Account: R035241695 | Type: Residential | Location: |
1425 NE 33RD ST |
|
| Building Name/Occupant: |
|
OKLAHOMA CITY |
||
| Owner Name 1: | MEDINA ARNULFO REYES |
Parcel PIN#: |
2692-03-524-1695 |
|
| Owner Name 2: | CERRITOS MARICELA REYES | 1/4 section #: |
2692 |
|
| Owner Name 3: | Parent Acct: |
|
||
| Billing Address: | 1425 NE 33RD ST | Tax District: |
|
|
| City, State, Zip | OKLAHOMA CITY, OK 73111 | School System: |
Oklahoma City #89 |
|
|
Country: (If noted) |
Land Size: |
0.1936 Acres |
||
|
Land Value: 20,658 |
|
|||
|
Sect 23-T12N-R3W Qtr NW |
PARK ESTATE RANCHETT
Block
003
Lot
030
|
|||
| Full Legal Description: PARK ESTATE RANCHETT 003 030 |
| Value History (*The County Treasurer 405-713-1300 posts & collects actual tax amounts. Contact information HERE) | |||||||||||||
|---|---|---|---|---|---|---|---|---|---|---|---|---|---|
| Year | Market Value | Taxable Mkt Value | Gross Assessed | Exemption | Net Assessed | Millage | Est. Tax | Tax Savings | |||||
|
2026 |
170,000 |
170,000 |
18,700 |
0 |
18,700 |
122.90 |
$2,298 |
$0 |
|||||
|
2025 |
186,000 |
171,438 |
18,858 |
0 |
18,858 |
122.90 |
$2,318 |
$197 |
|||||
|
2024 |
175,000 |
163,275 |
17,960 |
0 |
17,960 |
123.89 |
$2,225 |
$160 |
|||||
| Property Account Status/Adjustments/Exemptions | ||
|---|---|---|
| Account # | Exemption Description | Amount |
|
R035241695 |
5% Capped Account |
0 |
| Property Deed Transaction History (Recorded in the County Clerk's Office) | ||||||||||
|---|---|---|---|---|---|---|---|---|---|---|
| Date | Type | Book | Page | Price | Grantor | Grantee | ||||
|
3/10/2022 |
|
Deeds |
$144,000 |
1425 NE 33RD ST LLC |
MEDINA ARNULFO REYES |
|||||
|
1/21/2021 |
|
Deeds |
$135,500 |
DEJAVU PROPERTIES INC |
1425 NE 33RD ST LLC |
|||||
|
7/16/2020 |
|
Deeds |
$63,000 |
MURRAY EUNICE MAYO |
DEJAVU PROPERTIES INC |
|||||
| Last Mailed Notice of Value (N.O.V.) Information/History | ||||||||
|---|---|---|---|---|---|---|---|---|
| Year | Date | Market Value | Taxable Market Value | Gross Assessed | Exemption | Net Assessed | ||
|
2025 |
02/14/2025 |
186,000 |
171,438 |
18,858 |
0 |
18,858 |
||
|
2024 |
02/13/2024 |
175,000 |
163,275 |
17,960 |
0 |
17,960 |
||
|
2023 |
02/14/2023 |
155,500 |
155,500 |
17,105 |
0 |
17,105 |
||
| Property Building Permit History | |||||||||||
|---|---|---|---|---|---|---|---|---|---|---|---|
| Issued | Permit # | Provided by | Bldg # | Description | Est Construction Cost | Status | |||||
| No Building Permit records returned. | |||||||||||
| Click button below to access detailed information and additional property photos: | ||||||
|---|---|---|---|---|---|---|
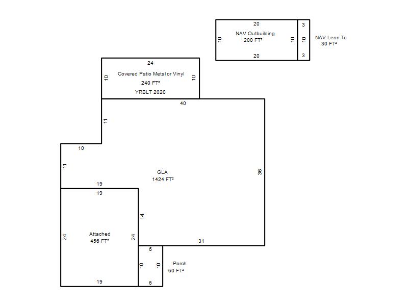
| Bldg # | Vacant/Improved Land | Bldg Description | Year Built | SqFt | # Stories | |
|
1 |
Improved |
Ranch 1 Story |
1956 |
1,424 |
1 Stories |
|