|
|
|
| Larry Stein Oklahoma County Assessor (405) 713-1200 - Public Access System |
|
|
|
|
|
|
| Real Property Display - Screen Produced 4/23/2026 8:19:37 PM | ||||
|---|---|---|---|---|
| Account: R035493000 | Type: Residential | Location: |
1433 NE 34TH ST |
|
| Building Name/Occupant: |
|
OKLAHOMA CITY |
||
| Owner Name 1: | GRAYSON SANDRA |
Parcel PIN#: |
2692-03-549-3000 |
|
| Owner Name 2: | TWALLA BATTLE | 1/4 section #: |
2692 |
|
| Owner Name 3: | Parent Acct: |
|
||
| Billing Address: | 1433 NW 34TH ST | Tax District: |
|
|
| City, State, Zip | OKLAHOMA CITY, OK 73111 | School System: |
Oklahoma City #89 |
|
|
Country: (If noted) |
Land Size: |
0.1504 Acres |
||
|
Land Value: 1,703 |
|
|||
|
Sect 23-T12N-R3W Qtr NW |
SCALES PLACE ADD
Block
001
Lot
000
|
|||
| Full Legal Description: SCALES PLACE ADD 001 000 LOTS 16 & 17 |
| Value History (*The County Treasurer 405-713-1300 posts & collects actual tax amounts. Contact information HERE) | |||||||||||||
|---|---|---|---|---|---|---|---|---|---|---|---|---|---|
| Year | Market Value | Taxable Mkt Value | Gross Assessed | Exemption | Net Assessed | Millage | Est. Tax | Tax Savings | |||||
|
2026 |
94,000 |
10,517 |
1,156 |
0 |
1,156 |
122.90 |
$142 |
$1,129 |
|||||
|
2025 |
99,000 |
10,017 |
1,101 |
0 |
1,101 |
122.90 |
$135 |
$1,203 |
|||||
|
2024 |
94,000 |
9,540 |
1,048 |
0 |
1,048 |
123.89 |
$130 |
$1,151 |
|||||
| Property Account Status/Adjustments/Exemptions | ||
|---|---|---|
| Account # | Exemption Description | Amount |
|
R035493000 |
5% Capped Account |
0 |
| Property Deed Transaction History (Recorded in the County Clerk's Office) | |||||||
|---|---|---|---|---|---|---|---|
| Date | Type | Book | Page | Price | Grantor | Grantee | |
|
10/25/2023 |
|
Hmstd Off & |
$0 |
PRINCE JERLEAN |
GRAYSON SANDRA |
||
|
9/9/2020 |
|
Deeds |
$0 |
PRINCE SAMUEL & JERLEAN |
PRINCE JERLEAN |
||
|
11/11/1911 |
|
Historical |
$0 |
|
PRINCE SAMUEL & JERLEAN |
||
| Last Mailed Notice of Value (N.O.V.) Information/History | ||||||||
|---|---|---|---|---|---|---|---|---|
| Year | Date | Market Value | Taxable Market Value | Gross Assessed | Exemption | Net Assessed | ||
|
2026 |
02/23/2026 |
94,000 |
10,517 |
1,156 |
0 |
1,156 |
||
|
2025 |
02/14/2025 |
99,000 |
10,017 |
1,101 |
0 |
1,101 |
||
|
2024 |
02/13/2024 |
94,000 |
9,540 |
1,048 |
0 |
1,048 |
||
| Property Building Permit History | |||||||||||
|---|---|---|---|---|---|---|---|---|---|---|---|
| Issued | Permit # | Provided by | Bldg # | Description | Est Construction Cost | Status | |||||
| No Building Permit records returned. | |||||||||||
| Click button below to access detailed information and additional property photos: | ||||||
|---|---|---|---|---|---|---|
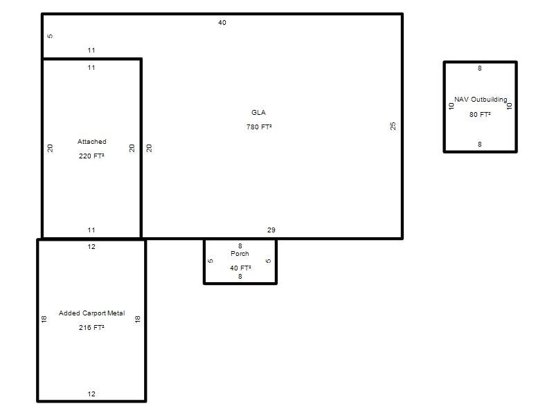
| Bldg # | Vacant/Improved Land | Bldg Description | Year Built | SqFt | # Stories | |
|
1 |
Improved |
Ranch 1 Story |
1981 |
780 |
1 Stories |
|