Larry Stein Oklahoma County Assessor (405) 713-1200 - Public Access System
Home Contact Us Guest Book Map Search New Search
Real Property Display - Screen Produced   4/23/2026 8:19:37 PM 
Account: R035495500  Type: Residential

  

Location:

3421 N PROSPECT AVE

Building Name/Occupant:

 

OKLAHOMA CITY

Owner Name 1:  D&R PROPERTIES LLC

Parcel PIN#:

2692-03-549-5500

Owner Name 2:    1/4 section #:

2692

Owner Name 3:    Parent Acct:

 

Billing Address:  9800 BARTLETT DR Tax District:

City, State, Zip  OKLAHOMA CITY, OK  73131-3517 School System:

Oklahoma City #89

Country: (If noted)

  

Land Size:

0.2045  Acres

Personal Property

Land Value: 2,316 

Treasurer:

Sect 23-T12N-R3W Qtr NW

 SCALES PLACE ADD   Block 002  Lot 000   Subdivision Sales
 Full Legal Description:  SCALES PLACE ADD 002 000 LOTS 1 THRU 3

NOTE:  The following sales may or may not be used to determine Fair Market Value

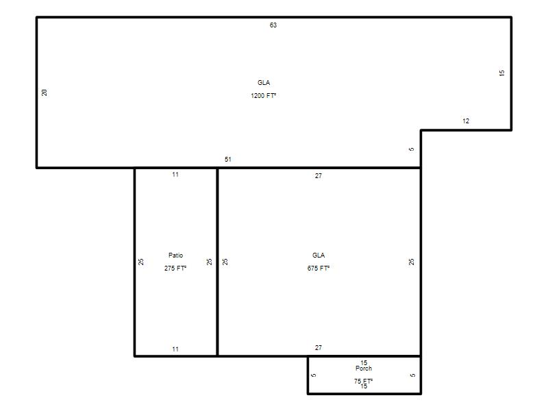
Photo & Sketch (if available) Sales  Sales Report

 940 NE 32ND ST OKLAHOMA CITY, OK

07/24/2025

 $139,500 

 620 NE 35TH ST OKLAHOMA CITY, OK

10/24/2025

 $80,000 

 913 NE 32ND ST OKLAHOMA CITY, OK

12/17/2024

 $119,500 

 814 MARILYN ST OKLAHOMA CITY, OK

07/22/2025

 $130,000 

 1437 NE 34TH ST OKLAHOMA CITY, OK

11/14/2025

 $94,500 

 700 NE 31ST ST OKLAHOMA CITY, OK

09/29/2025

 $95,000 

Value History  (*The County Treasurer 405-713-1300 posts & collects actual tax amounts.  Contact information  HERE)
Year Market Value Taxable Mkt Value Gross Assessed Exemption Net Assessed Millage Est. Tax Tax Savings

2026

135,500 

44,387 

4,882 

4,882 

122.90 

$600 

$1,232 

2025

149,000 

42,274 

4,649 

4,649 

122.90 

$572 

$1,443 

2024

140,000 

40,261 

4,427 

4,427 

123.89 

$549 

$1,359 

[1/10]
Property Account Status/Adjustments/Exemptions
Account # Exemption Description Amount

R035495500

5% Capped Account

Property Deed Transaction History   (Recorded in the County Clerk's Office)
Date Type Book Page Price Grantor Grantee

10/6/2010

Hmstd Off &

11476

357

 $0 

KING DONDI & ROSALIND

D&R PROPERTIES LLC

2/24/1995

Historical

6713

2169

 $0 

OKLAHOMA COUNTY

KING DONDI & ROSALIND

7/9/1990

Historical

6065

984

 $0 

MITCHELL DANIEL R

OKLAHOMA COUNTY

[1/2]
Last Mailed Notice of Value (N.O.V.) Information/History
Year Date Market Value Taxable Market Value Gross Assessed Exemption Net Assessed

2026

02/23/2026

135,500 

44,387 

4,882 

4,882 

2025

02/14/2025

149,000 

42,274 

4,649 

4,649 

2024

02/13/2024

140,000 

40,261 

4,427 

4,427 

[1/6]
Property Building Permit History
Issued Permit # Provided by Bldg # Description Est Construction Cost Status

9/10/1998

10189365

OKLAHOMA CITY

1

Remodeled

11,500 

Inactive

Click button below to access detailed information and additional property photos:
  Bldg # Vacant/Improved Land Bldg Description Year Built SqFt # Stories

Click

1

Improved

Ranch 1 Story

1951

1,875 

1 Stories