|
|
|
| Larry Stein Oklahoma County Assessor (405) 713-1200 - Public Access System |
|
|
|
|
|
|
| Real Property Display - Screen Produced 3/3/2026 11:25:52 AM | ||||
|---|---|---|---|---|
| Account: R030038112 | Type: Residential | Location: |
2405 E MADISON ST |
|
| Building Name/Occupant: |
|
OKLAHOMA CITY |
||
| Owner Name 1: | GARRETT BEVERLY |
Parcel PIN#: |
2695-03-003-8112 |
|
| Owner Name 2: | 1/4 section #: |
2695 |
||
| Owner Name 3: | Parent Acct: |
|
||
| Billing Address: | 2405 E MADISON ST | Tax District: |
|
|
| City, State, Zip | OKLAHOMA CITY, OK 73111-3525 | School System: |
Oklahoma City #89 |
|
|
Country: (If noted) |
Land Size: |
0.1538 Acres |
||
|
Land Value: 2,010 |
|
|||
|
Sect 24-T12N-R3W Qtr SW |
CRESTON HILLS ADD
Block
034
Lot
009
|
|||
| Full Legal Description: CRESTON HILLS ADD 034 009 |
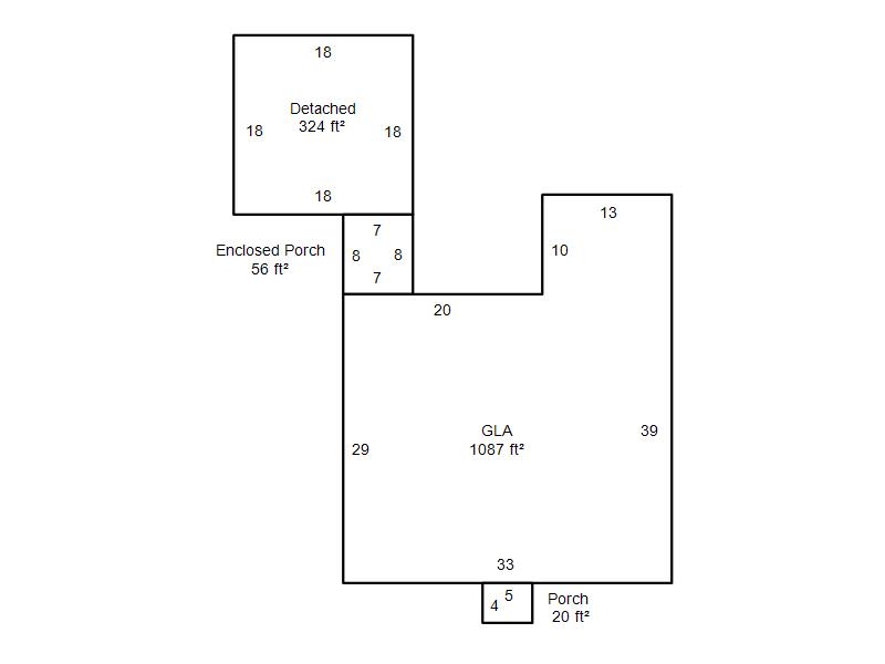
| Photo & Sketch (if available) | Comp Sales (ordered by relevancy) |
|
||||||||||||||||||
|
||||||||||||||||||||
| Value History (*The County Treasurer 405-713-1300 posts & collects actual tax amounts. Contact information HERE) | |||||||||||||
|---|---|---|---|---|---|---|---|---|---|---|---|---|---|
| Year | Market Value | Taxable Mkt Value | Gross Assessed | Exemption | Net Assessed | Millage | Est. Tax | Tax Savings | |||||
|
2025 |
94,500 |
38,486 |
4,233 |
2,000 |
2,233 |
122.90 |
$274 |
$1,003 |
|||||
|
2024 |
91,500 |
37,366 |
4,109 |
2,000 |
2,109 |
123.89 |
$261 |
$986 |
|||||
|
2023 |
83,000 |
36,278 |
3,990 |
2,000 |
1,990 |
122.82 |
$244 |
$877 |
|||||
|
2022 |
64,000 |
35,222 |
3,873 |
2,000 |
1,873 |
117.63 |
$220 |
$608 |
|||||
|
2021 |
62,000 |
34,197 |
3,761 |
2,000 |
1,761 |
117.70 |
$207 |
$595 |
|||||
| Property Account Status/Adjustments/Exemptions | ||
|---|---|---|
| Account # | Exemption Description | Amount |
|
R030038112 |
Freeze Senior Valuation |
0 |
|
R030038112 |
Senior Additional Homestead |
1,000 |
|
R030038112 |
3% Cap Homestead |
0 |
|
R030038112 |
Homestead |
1,000 |
| Property Deed Transaction History (Recorded in the County Clerk's Office) | |||||||
|---|---|---|---|---|---|---|---|
| Date | Type | Book | Page | Price | Grantor | Grantee | |
|
11/8/2005 |
|
Deeds |
$50,000 |
FOSTER KEVIN |
GARRETT BEVERLY |
||
|
7/28/2004 |
|
Deeds |
$42,000 |
PIERCE LOLA JEAN |
FOSTER KEVIN |
||
|
7/1/1977 |
|
Historical |
$0 |
|
PIERCE LOLA JEAN |
||
| Last Mailed Notice of Value (N.O.V.) Information/History | ||||||||
|---|---|---|---|---|---|---|---|---|
| Year | Date | Market Value | Taxable Market Value | Gross Assessed | Exemption | Net Assessed | ||
|
2026 |
02/23/2026 |
102,000 |
38,486 |
4,233 |
2,000 |
2,233 |
||
|
2025 |
02/14/2025 |
94,500 |
38,486 |
4,233 |
2,000 |
2,233 |
||
|
2024 |
02/13/2024 |
91,500 |
37,366 |
4,109 |
2,000 |
2,109 |
||
|
2023 |
02/14/2023 |
83,000 |
36,278 |
3,990 |
2,000 |
1,990 |
||
|
2022 |
03/15/2022 |
64,000 |
35,222 |
3,873 |
2,000 |
1,873 |
||
| Property Building Permit History | ||||||
|---|---|---|---|---|---|---|
| Issued | Permit # | Provided by | Bldg # | Description | Est Construction Cost | Status |
|
5/21/2002 |
10188733 |
OKLAHOMA CITY |
1 |
Burn - Trip |
8,000 |
Inactive |
| Click button on building number to access detailed information: | ||||||
|---|---|---|---|---|---|---|
| Bldg # | Vacant/Improved Land | Bldg Description | Year Built | SqFt | # Stories | |
|
1 |
Improved |
Ranch 1 Story |
1940 |
1,087 |
1 Stories |
|