|
|
|
| Larry Stein Oklahoma County Assessor (405) 713-1200 - Public Access System |
|
|
|
|
|
|
| Real Property Display - Screen Produced 3/3/2026 11:36:17 AM | ||||
|---|---|---|---|---|
| Account: R073720300 | Type: Residential | Location: |
2204 NE 26TH ST |
|
| Building Name/Occupant: |
|
OKLAHOMA CITY |
||
| Owner Name 1: | LEE TROY |
Parcel PIN#: |
2695-07-372-0300 |
|
| Owner Name 2: | 1/4 section #: |
2695 |
||
| Owner Name 3: | Parent Acct: |
|
||
| Billing Address: | 1713 NE 51ST ST | Tax District: |
|
|
| City, State, Zip | OKLAHOMA CITY, OK 73111 | School System: |
Oklahoma City #89 |
|
|
Country: (If noted) |
Land Size: |
0.1538 Acres |
||
|
Land Value: 2,010 |
|
|||
|
Sect 24-T12N-R3W Qtr SW |
LAIN HILLS ADDITION
Block
001
Lot
000
|
|||
| Full Legal Description: LAIN HILLS ADDITION 001 000 W32.28FT OF LOT 5 & E17.72FT OF LOT 6 |
| No comparable sales report available. | ||||||||||||||||||||||
|
||||||||||||||||||||||
| Value History (*The County Treasurer 405-713-1300 posts & collects actual tax amounts. Contact information HERE) | |||||||||||||
|---|---|---|---|---|---|---|---|---|---|---|---|---|---|
| Year | Market Value | Taxable Mkt Value | Gross Assessed | Exemption | Net Assessed | Millage | Est. Tax | Tax Savings | |||||
|
2025 |
7,665 |
7,665 |
843 |
0 |
843 |
122.90 |
$104 |
$0 |
|||||
|
2024 |
7,665 |
7,665 |
843 |
0 |
843 |
123.89 |
$104 |
$0 |
|||||
|
2023 |
7,665 |
7,665 |
843 |
0 |
843 |
122.82 |
$104 |
$0 |
|||||
|
2022 |
7,665 |
7,665 |
843 |
0 |
843 |
117.63 |
$99 |
$0 |
|||||
|
2021 |
7,665 |
7,665 |
843 |
0 |
843 |
117.70 |
$99 |
$0 |
|||||
| Property Account Status/Adjustments/Exemptions | ||
|---|---|---|
| Account # | Exemption Description | Amount |
|
R073720300 |
5% Capped Account |
0 |
| Property Deed Transaction History (Recorded in the County Clerk's Office) | |||||||
|---|---|---|---|---|---|---|---|
| Date | Type | Book | Page | Price | Grantor | Grantee | |
|
9/24/2014 |
|
Deeds |
$0 |
ADKINS TILLUS LEE TROY |
LEE TROY |
||
|
2/7/2011 |
|
Deeds |
$0 |
LEE TROY |
ADKINS TILLUS LEE TROY |
||
|
11/14/2009 |
|
Hmstd Off & |
$0 |
ADKINS TILLUS |
LEE TROY |
||
|
4/14/2006 |
|
Deeds |
$29,000 |
BECKFORD ERNEST |
ADKINS TILLUS |
||
|
5/1/1984 |
|
Historical |
$0 |
|
BECKFORD ERNEST |
||
| Last Mailed Notice of Value (N.O.V.) Information/History | ||||||
|---|---|---|---|---|---|---|
| Year | Date | Market Value | Taxable Market Value | Gross Assessed | Exemption | Net Assessed |
|
2017 |
03/17/2017 |
29,500 |
29,500 |
3,244 |
|
|
|
2013 |
03/27/2013 |
7,665 |
7,665 |
843 |
0 |
843 |
| Property Building Permit History | |||||||||||
|---|---|---|---|---|---|---|---|---|---|---|---|
| Issued | Permit # | Provided by | Bldg # | Description | Est Construction Cost | Status | |||||
|
12/3/2007 |
10312404 |
OKLAHOMA CITY |
1 |
Fire Remodel |
20,000 |
Inactive |
|||||
|
6/15/2005 |
10308708 |
OKLAHOMA CITY |
1 |
Burn - Trip |
8,000 |
Inactive |
|||||
|
12/19/2000 |
10195779 |
OKLAHOMA CITY |
1 |
Fire Remodel |
7,000 |
Inactive |
|||||
|
10/10/2000 |
10195781 |
OKLAHOMA CITY |
1 |
Burn - Trip |
2,000 |
Inactive |
|||||
|
10/25/1999 |
10195780 |
OKLAHOMA CITY |
1 |
Fire Remodel |
7,000 |
Inactive |
|||||
| Click button on building number to access detailed information: | ||||||
|---|---|---|---|---|---|---|
| Bldg # | Vacant/Improved Land | Bldg Description | Year Built | SqFt | # Stories | |
|
1 |
Improved |
Salvage |
1949 |
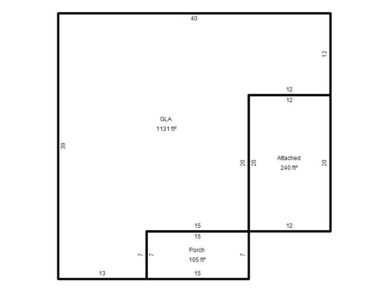
1,131 |
1 Stories |
|