|
|
|
| Larry Stein Oklahoma County Assessor (405) 713-1200 - Public Access System |
|
|
|
|
|
|
| Real Property Display - Screen Produced 3/3/2026 11:36:16 AM | ||||
|---|---|---|---|---|
| Account: R073723300 | Type: Residential | Location: |
2220 E MADISON ST |
|
| Building Name/Occupant: |
|
OKLAHOMA CITY |
||
| Owner Name 1: | RANEY DOROTHY C |
Parcel PIN#: |
2695-07-372-3300 |
|
| Owner Name 2: | 1/4 section #: |
2695 |
||
| Owner Name 3: | Parent Acct: |
|
||
| Billing Address: | 23326 ANGEL GATE CT | Tax District: |
|
|
| City, State, Zip | KATY, TX 77494-7566 | School System: |
Oklahoma City #89 |
|
|
Country: (If noted) |
Land Size: |
0.1538 Acres |
||
|
Land Value: 2,010 |
|
|||
|
Sect 24-T12N-R3W Qtr SW |
LAIN HILLS ADDITION
Block
004
Lot
001
|
|||
| Full Legal Description: LAIN HILLS ADDITION 004 001 |
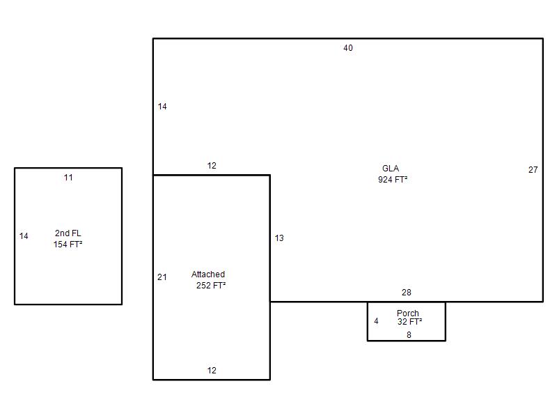
| Photo & Sketch (if available) | Comp Sales (ordered by relevancy) |
|
||||||||||||||||||
|
||||||||||||||||||||
| Value History (*The County Treasurer 405-713-1300 posts & collects actual tax amounts. Contact information HERE) | |||||||||||||
|---|---|---|---|---|---|---|---|---|---|---|---|---|---|
| Year | Market Value | Taxable Mkt Value | Gross Assessed | Exemption | Net Assessed | Millage | Est. Tax | Tax Savings | |||||
|
2025 |
82,500 |
16,851 |
1,853 |
0 |
1,853 |
122.90 |
$228 |
$888 |
|||||
|
2024 |
70,500 |
16,049 |
1,765 |
0 |
1,765 |
123.89 |
$219 |
$742 |
|||||
|
2023 |
85,500 |
15,285 |
1,681 |
0 |
1,681 |
122.82 |
$207 |
$949 |
|||||
|
2022 |
60,500 |
14,558 |
1,600 |
0 |
1,600 |
117.63 |
$188 |
$594 |
|||||
|
2021 |
35,500 |
13,865 |
1,524 |
0 |
1,524 |
117.70 |
$180 |
$280 |
|||||
| Property Account Status/Adjustments/Exemptions | ||
|---|---|---|
| Account # | Exemption Description | Amount |
|
R073723300 |
5% Capped Account |
0 |
| Property Deed Transaction History (Recorded in the County Clerk's Office) | |||||||
|---|---|---|---|---|---|---|---|
| Date | Type | Book | Page | Price | Grantor | Grantee | |
|
11/11/1911 |
|
Historical |
$0 |
|
RANEY DOROTHY C |
||
| Last Mailed Notice of Value (N.O.V.) Information/History | ||||||||
|---|---|---|---|---|---|---|---|---|
| Year | Date | Market Value | Taxable Market Value | Gross Assessed | Exemption | Net Assessed | ||
|
2026 |
02/23/2026 |
88,500 |
17,693 |
1,945 |
0 |
1,945 |
||
|
2025 |
02/14/2025 |
82,500 |
16,851 |
1,853 |
0 |
1,853 |
||
|
2024 |
02/13/2024 |
70,500 |
16,049 |
1,765 |
0 |
1,765 |
||
|
2023 |
02/14/2023 |
85,500 |
15,285 |
1,681 |
0 |
1,681 |
||
|
2022 |
03/15/2022 |
60,500 |
14,558 |
1,600 |
0 |
1,600 |
||
| Property Building Permit History | |||||||||||
|---|---|---|---|---|---|---|---|---|---|---|---|
| Issued | Permit # | Provided by | Bldg # | Description | Est Construction Cost | Status | |||||
| No Building Permit records returned. | |||||||||||
| Click button on building number to access detailed information: | ||||||
|---|---|---|---|---|---|---|
| Bldg # | Vacant/Improved Land | Bldg Description | Year Built | SqFt | # Stories | |
|
1 |
Improved |
1½ Story Fin |
1948 |
1,078 |
1.5 Stories |
|