|
|
|
| Larry Stein Oklahoma County Assessor (405) 713-1200 - Public Access System |
|
|
|
|
|
|
| Real Property Display - Screen Produced 3/5/2026 5:31:11 AM | ||||
|---|---|---|---|---|
| Account: R089750450 | Type: Residential | Location: |
1809 N PAGE AVE |
|
| Building Name/Occupant: |
|
OKLAHOMA CITY |
||
| Owner Name 1: | VASQUEZ JOSE JAVIER & SCHERIL LOPEZ |
Parcel PIN#: |
2697-08-975-0450 |
|
| Owner Name 2: | 1/4 section #: |
2697 |
||
| Owner Name 3: | Parent Acct: |
|
||
| Billing Address: | 1809 N PAGE AVE | Tax District: |
|
|
| City, State, Zip | OKLAHOMA CITY, OK 73111 | School System: |
Oklahoma City #89 |
|
|
Country: (If noted) |
Land Size: |
0.1825 Acres |
||
|
Land Value: 6,758 |
|
|||
|
Sect 25-T12N-R3W Qtr NE |
EDWARDS HEIGHTS RESUBDIVISION
Block
001
Lot
017
|
|||
| Full Legal Description: EDWARDS HEIGHTS RESUBDIVISION 001 017 |
| Photo & Sketch (if available) | Comp Sales (ordered by relevancy) |
|
||||||||||||||||||
|
||||||||||||||||||||
| Value History (*The County Treasurer 405-713-1300 posts & collects actual tax amounts. Contact information HERE) | |||||||||||||
|---|---|---|---|---|---|---|---|---|---|---|---|---|---|
| Year | Market Value | Taxable Mkt Value | Gross Assessed | Exemption | Net Assessed | Millage | Est. Tax | Tax Savings | |||||
|
2025 |
110,500 |
58,951 |
6,483 |
0 |
6,483 |
122.90 |
$797 |
$697 |
|||||
|
2024 |
93,000 |
56,144 |
6,175 |
0 |
6,175 |
123.89 |
$765 |
$502 |
|||||
|
2023 |
77,000 |
53,471 |
5,881 |
0 |
5,881 |
122.82 |
$722 |
$318 |
|||||
|
2022 |
60,500 |
50,925 |
5,601 |
0 |
5,601 |
117.63 |
$659 |
$124 |
|||||
|
2021 |
48,500 |
48,500 |
5,335 |
0 |
5,335 |
117.70 |
$628 |
$0 |
|||||
| Property Account Status/Adjustments/Exemptions | ||
|---|---|---|
| Account # | Exemption Description | Amount |
|
R089750450 |
5% Capped Account |
0 |
| Property Deed Transaction History (Recorded in the County Clerk's Office) | |||||||
|---|---|---|---|---|---|---|---|
| Date | Type | Book | Page | Price | Grantor | Grantee | |
|
6/28/2021 |
|
Hmstd Off & |
$0 |
VASQUEZ JOSE JAVIER |
VASQUEZ JOSE JAVIER & SCHERIL LOPEZ |
||
|
9/14/2020 |
|
Deeds |
$47,000 |
CCJ HOLDINGS LLC |
VASQUEZ JOSE JAVIER |
||
|
7/9/2020 |
|
Deeds |
$36,500 |
DOUGLAS ELNORA C TRS |
CCJ HOLDINGS LLC |
||
|
6/7/2005 |
|
Deeds |
$0 |
COOPER ELNORE |
DOUGLAS ELNORA C TRS |
||
|
11/11/1911 |
|
Historical |
$0 |
|
COOPER ELNORE |
||
| Last Mailed Notice of Value (N.O.V.) Information/History | ||||||||
|---|---|---|---|---|---|---|---|---|
| Year | Date | Market Value | Taxable Market Value | Gross Assessed | Exemption | Net Assessed | ||
|
2026 |
02/23/2026 |
123,000 |
61,898 |
6,808 |
0 |
6,808 |
||
|
2025 |
02/14/2025 |
110,500 |
58,951 |
6,483 |
0 |
6,483 |
||
|
2024 |
02/13/2024 |
93,000 |
56,144 |
6,175 |
0 |
6,175 |
||
|
2023 |
02/14/2023 |
77,000 |
53,471 |
5,881 |
0 |
5,881 |
||
|
2022 |
03/15/2022 |
60,500 |
50,925 |
5,601 |
0 |
5,601 |
||
| Property Building Permit History | |||||||||||
|---|---|---|---|---|---|---|---|---|---|---|---|
| Issued | Permit # | Provided by | Bldg # | Description | Est Construction Cost | Status | |||||
| No Building Permit records returned. | |||||||||||
| Click button on building number to access detailed information: | ||||||
|---|---|---|---|---|---|---|
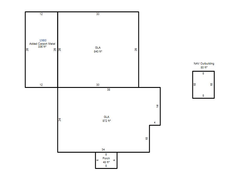
| Bldg # | Vacant/Improved Land | Bldg Description | Year Built | SqFt | # Stories | |
|
1 |
Improved |
Ranch 1 Story |
1946 |
1,712 |
1 Stories |
|