|
|
|
| Larry Stein Oklahoma County Assessor (405) 713-1200 - Public Access System |
|
|
|
|
|
|
| Real Property Display - Screen Produced 3/5/2026 5:32:49 AM | ||||
|---|---|---|---|---|
| Account: R089750475 | Type: Residential | Location: |
1805 N PAGE AVE |
|
| Building Name/Occupant: |
|
OKLAHOMA CITY |
||
| Owner Name 1: | SEALS CYNTHIA |
Parcel PIN#: |
2697-08-975-0475 |
|
| Owner Name 2: | 1/4 section #: |
2697 |
||
| Owner Name 3: | Parent Acct: |
|
||
| Billing Address: | 2312 JEAN RD | Tax District: |
|
|
| City, State, Zip | MIDWEST CITY, OK 73130-7627 | School System: |
Oklahoma City #89 |
|
|
Country: (If noted) |
Land Size: |
0.1837 Acres |
||
|
Land Value: 6,800 |
|
|||
|
Sect 25-T12N-R3W Qtr NE |
EDWARDS HEIGHTS RESUBDIVISION
Block
001
Lot
018
|
|||
| Full Legal Description: EDWARDS HEIGHTS RESUBDIVISION 001 018 |
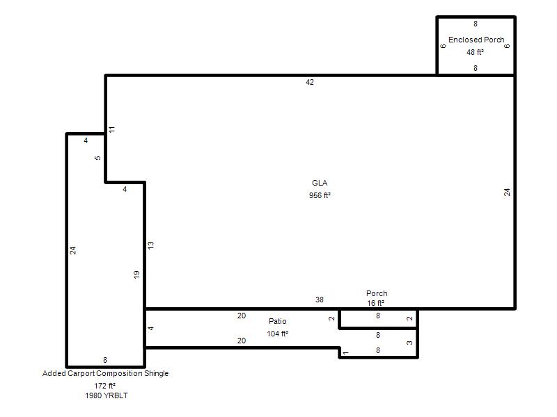
| Photo & Sketch (if available) | Comp Sales (ordered by relevancy) |
|
||||||||||||||||||
|
||||||||||||||||||||
| Value History (*The County Treasurer 405-713-1300 posts & collects actual tax amounts. Contact information HERE) | |||||||||||||
|---|---|---|---|---|---|---|---|---|---|---|---|---|---|
| Year | Market Value | Taxable Mkt Value | Gross Assessed | Exemption | Net Assessed | Millage | Est. Tax | Tax Savings | |||||
|
2025 |
71,000 |
20,120 |
2,212 |
0 |
2,212 |
122.90 |
$272 |
$688 |
|||||
|
2024 |
68,000 |
19,162 |
2,107 |
0 |
2,107 |
123.89 |
$261 |
$666 |
|||||
|
2023 |
56,500 |
18,250 |
2,006 |
0 |
2,006 |
122.82 |
$247 |
$517 |
|||||
|
2022 |
44,000 |
17,381 |
1,911 |
0 |
1,911 |
117.63 |
$225 |
$344 |
|||||
|
2021 |
38,000 |
16,554 |
1,820 |
0 |
1,820 |
117.70 |
$214 |
$278 |
|||||
| Property Account Status/Adjustments/Exemptions | ||
|---|---|---|
| Account # | Exemption Description | Amount |
|
R089750475 |
5% Capped Account |
0 |
| Property Deed Transaction History (Recorded in the County Clerk's Office) | |||||||
|---|---|---|---|---|---|---|---|
| Date | Type | Book | Page | Price | Grantor | Grantee | |
|
1/4/2017 |
|
Hmstd Off & |
$0 |
JOURNAL ENTRY OF JUDGMENT DETERMING HEIRS AND QUIETING TITLE |
SEALS CYNTHIA |
||
|
2/1/1975 |
|
Historical |
$0 |
|
WOODY LILLIE |
||
| Last Mailed Notice of Value (N.O.V.) Information/History | ||||||||
|---|---|---|---|---|---|---|---|---|
| Year | Date | Market Value | Taxable Market Value | Gross Assessed | Exemption | Net Assessed | ||
|
2026 |
02/23/2026 |
80,500 |
21,126 |
2,323 |
0 |
2,323 |
||
|
2025 |
02/14/2025 |
71,000 |
20,120 |
2,212 |
0 |
2,212 |
||
|
2024 |
02/13/2024 |
68,000 |
19,162 |
2,107 |
0 |
2,107 |
||
|
2023 |
02/14/2023 |
56,500 |
18,250 |
2,006 |
0 |
2,006 |
||
|
2022 |
03/15/2022 |
44,000 |
17,381 |
1,911 |
0 |
1,911 |
||
| Property Building Permit History | |||||||||||
|---|---|---|---|---|---|---|---|---|---|---|---|
| Issued | Permit # | Provided by | Bldg # | Description | Est Construction Cost | Status | |||||
| No Building Permit records returned. | |||||||||||
| Click button on building number to access detailed information: | ||||||
|---|---|---|---|---|---|---|
| Bldg # | Vacant/Improved Land | Bldg Description | Year Built | SqFt | # Stories | |
|
1 |
Improved |
Ranch 1 Story |
1946 |
956 |
1 Stories |
|