|
|
|
| Larry Stein Oklahoma County Assessor (405) 713-1200 - Public Access System |
|
|
|
|
|
|
| Real Property Display - Screen Produced 3/5/2026 5:33:19 AM | ||||
|---|---|---|---|---|
| Account: R089754750 | Type: Residential | Location: |
2613 NE 18TH ST |
|
| Building Name/Occupant: |
|
OKLAHOMA CITY |
||
| Owner Name 1: | SMITH CAROLYN M |
Parcel PIN#: |
2697-08-975-4750 |
|
| Owner Name 2: | 1/4 section #: |
2697 |
||
| Owner Name 3: | Parent Acct: |
|
||
| Billing Address: | 9821 NE 10TH ST | Tax District: |
|
|
| City, State, Zip | OKLAHOMA CITY, OK 73130-1506 | School System: |
Oklahoma City #89 |
|
|
Country: (If noted) |
Land Size: |
0.1550 Acres |
||
|
Land Value: 5,738 |
|
|||
|
Sect 25-T12N-R3W Qtr NE |
EDWARDS HEIGHTS RESUBDIVISION
Block
004
Lot
000
|
|||
| Full Legal Description: EDWARDS HEIGHTS RESUBDIVISION 004 000 LOTS 22 & 23 |
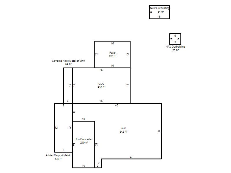
| Photo & Sketch (if available) | Comp Sales (ordered by relevancy) |
|
||||||||||||||||||
|
||||||||||||||||||||
| Value History (*The County Treasurer 405-713-1300 posts & collects actual tax amounts. Contact information HERE) | |||||||||||||
|---|---|---|---|---|---|---|---|---|---|---|---|---|---|
| Year | Market Value | Taxable Mkt Value | Gross Assessed | Exemption | Net Assessed | Millage | Est. Tax | Tax Savings | |||||
|
2025 |
88,000 |
47,839 |
5,261 |
0 |
5,261 |
122.90 |
$647 |
$543 |
|||||
|
2024 |
77,000 |
45,561 |
5,011 |
0 |
5,011 |
123.89 |
$621 |
$428 |
|||||
|
2023 |
60,500 |
43,392 |
4,772 |
0 |
4,772 |
122.82 |
$586 |
$231 |
|||||
|
2022 |
49,500 |
41,326 |
4,545 |
0 |
4,545 |
117.63 |
$535 |
$106 |
|||||
|
2021 |
44,000 |
39,359 |
4,329 |
0 |
4,329 |
117.70 |
$510 |
$60 |
|||||
| Property Account Status/Adjustments/Exemptions | ||
|---|---|---|
| Account # | Exemption Description | Amount |
|
R089754750 |
5% Capped Account |
0 |
| Property Deed Transaction History (Recorded in the County Clerk's Office) | |||||||
|---|---|---|---|---|---|---|---|
| Date | Type | Book | Page | Price | Grantor | Grantee | |
|
9/20/1999 |
|
Deeds |
$44,000 |
CHRISTOPHER PARZOLA |
SMITH CAROLYN M |
||
|
2/1/1985 |
|
Historical |
$0 |
|
CHRISTOPHER PARZOLA |
||
| Last Mailed Notice of Value (N.O.V.) Information/History | ||||||||
|---|---|---|---|---|---|---|---|---|
| Year | Date | Market Value | Taxable Market Value | Gross Assessed | Exemption | Net Assessed | ||
|
2026 |
02/23/2026 |
89,500 |
50,230 |
5,525 |
0 |
5,525 |
||
|
2025 |
02/14/2025 |
88,000 |
47,839 |
5,261 |
0 |
5,261 |
||
|
2024 |
02/13/2024 |
77,000 |
45,561 |
5,011 |
0 |
5,011 |
||
|
2023 |
02/14/2023 |
60,500 |
43,392 |
4,772 |
0 |
4,772 |
||
|
2022 |
03/15/2022 |
49,500 |
41,326 |
4,545 |
0 |
4,545 |
||
| Property Building Permit History | |||||||||||
|---|---|---|---|---|---|---|---|---|---|---|---|
| Issued | Permit # | Provided by | Bldg # | Description | Est Construction Cost | Status | |||||
| No Building Permit records returned. | |||||||||||
| Click button on building number to access detailed information: | ||||||
|---|---|---|---|---|---|---|
| Bldg # | Vacant/Improved Land | Bldg Description | Year Built | SqFt | # Stories | |
|
1 |
Improved |
Ranch 1 Story |
1949 |
1,258 |
1 Stories |
|