|
|
|
| Larry Stein Oklahoma County Assessor (405) 713-1200 - Public Access System |
|
|
|
|
|
|
| Real Property Display - Screen Produced 3/12/2026 4:15:49 AM | ||||
|---|---|---|---|---|
| Account: R267091480 | Type: Residential | Location: |
1853 NIXON ST |
|
| Building Name/Occupant: |
|
UNINCORPORATED |
||
| Owner Name 1: | BETTERTON CLIFFORD D & LINDA C |
Parcel PIN#: |
1036-26-709-1480 |
|
| Owner Name 2: | 1/4 section #: |
1036 |
||
| Owner Name 3: | Parent Acct: |
|
||
| Billing Address: | 1853 NIXON ST | Tax District: |
|
|
| City, State, Zip | CHOCTAW, OK 73020-6315 | School System: |
Choctaw #4 |
|
|
Country: (If noted) |
Land Size: |
4.1900 Acres |
||
|
Land Value: 78,108 |
|
|||
|
Sect 9-T11N-R1E Qtr NW |
POTTAWATOMIE TOWNSHIP
Block
000
Lot
000
|
|||
| Full Legal Description: POTTAWATOMIE TOWNSHIP PT NW4 SEC 9 11N 1E S 1/2 OF SE4 OF NE4 OF NW4 EX A TR IN NE/C 190FT N&S BY 186FT E&W |
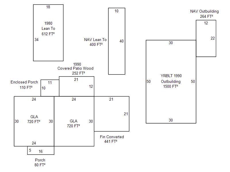
| Photo & Sketch (if available) | Comp Sales (ordered by relevancy) |
|
||||||||||||||||||
|
||||||||||||||||||||
| Value History (*The County Treasurer 405-713-1300 posts & collects actual tax amounts. Contact information HERE) | |||||||||||||
|---|---|---|---|---|---|---|---|---|---|---|---|---|---|
| Year | Market Value | Taxable Mkt Value | Gross Assessed | Exemption | Net Assessed | Millage | Est. Tax | Tax Savings | |||||
|
2025 |
247,500 |
165,000 |
18,150 |
1,000 |
17,150 |
117.21 |
$2,010 |
$1,181 |
|||||
|
2024 |
231,000 |
165,000 |
18,150 |
1,000 |
17,150 |
116.35 |
$1,995 |
$961 |
|||||
|
2023 |
222,000 |
165,000 |
18,149 |
1,000 |
17,149 |
117.10 |
$2,008 |
$851 |
|||||
|
2022 |
201,500 |
160,195 |
17,621 |
1,000 |
16,621 |
115.17 |
$1,914 |
$638 |
|||||
|
2021 |
159,000 |
155,530 |
17,108 |
1,000 |
16,108 |
115.06 |
$1,853 |
$159 |
|||||
| Property Account Status/Adjustments/Exemptions | ||
|---|---|---|
| Account # | Exemption Description | Amount |
|
R267091480 |
Freeze Senior Valuation |
0 |
|
R267091480 |
3% Cap Homestead |
0 |
|
R267091480 |
Homestead |
1,000 |
| Property Deed Transaction History (Recorded in the County Clerk's Office) | |||||||
|---|---|---|---|---|---|---|---|
| Date | Type | Book | Page | Price | Grantor | Grantee | |
|
8/27/2004 |
|
Deeds |
$125,000 |
MARTIN VANCE L & WANDA F |
BETTERTON CLIFFORD D & LINDA C |
||
|
10/3/1997 |
|
Historical |
$72,000 |
BRYAN JIM D & DIANA D CO TRS |
MARTIN VANCE L & WANDA F |
||
|
5/13/1996 |
|
Historical |
$0 |
BRYAN JIMMY D & DIANA |
BRYAN JIM D & DIANA D CO TRS |
||
|
4/2/1996 |
|
Historical |
$0 |
BRYAN JIM D |
BRYAN JIMMY D & DIANA |
||
|
9/1/1983 |
|
Historical |
$0 |
|
BRYAN JIM D |
||
| Last Mailed Notice of Value (N.O.V.) Information/History | ||||||||
|---|---|---|---|---|---|---|---|---|
| Year | Date | Market Value | Taxable Market Value | Gross Assessed | Exemption | Net Assessed | ||
|
2025 |
01/31/2025 |
247,500 |
165,000 |
18,150 |
1,000 |
17,150 |
||
|
2024 |
01/22/2024 |
231,000 |
165,000 |
18,150 |
1,000 |
17,150 |
||
|
2023 |
01/23/2023 |
222,000 |
165,000 |
18,149 |
1,000 |
17,149 |
||
|
2022 |
02/22/2022 |
201,500 |
160,195 |
17,621 |
1,000 |
16,621 |
||
|
2021 |
02/24/2021 |
159,000 |
155,530 |
17,108 |
1,000 |
16,108 |
||
| Property Building Permit History | |||||||||||
|---|---|---|---|---|---|---|---|---|---|---|---|
| Issued | Permit # | Provided by | Bldg # | Description | Est Construction Cost | Status | |||||
| No Building Permit records returned. | |||||||||||
| Click button on building number to access detailed information: | ||||||
|---|---|---|---|---|---|---|
| Bldg # | Vacant/Improved Land | Bldg Description | Year Built | SqFt | # Stories | |
|
1 |
Improved |
Ranch 1 Story |
1960 |
1,440 |
1 Stories |
|