|
|
|
| Larry Stein Oklahoma County Assessor (405) 713-1200 - Public Access System |
|
|
|
|
|
|
| Real Property Display - Screen Produced 3/5/2026 3:42:59 AM | ||||
|---|---|---|---|---|
| Account: R020057920 | Type: Residential | Location: |
1323 N PAGE AVE |
|
| Building Name/Occupant: |
|
OKLAHOMA CITY |
||
| Owner Name 1: | ILLINI INVESTMENTS LLC |
Parcel PIN#: |
2698-02-005-7920 |
|
| Owner Name 2: | 1/4 section #: |
2698 |
||
| Owner Name 3: | Parent Acct: |
|
||
| Billing Address: | 2600 W WILSHIRE BLVD | Tax District: |
|
|
| City, State, Zip | OKLAHOMA CITY, OK 73116 | School System: |
Oklahoma City #89 |
|
|
Country: (If noted) |
Land Size: |
0.1837 Acres |
||
|
Land Value: 8,000 |
|
|||
|
Sect 25-T12N-R3W Qtr SE |
HASSMAN HEIGHTS ADD
Block
008
Lot
000
|
|||
| Full Legal Description: HASSMAN HEIGHTS ADD 008 000 LOTS 43 & 44 |
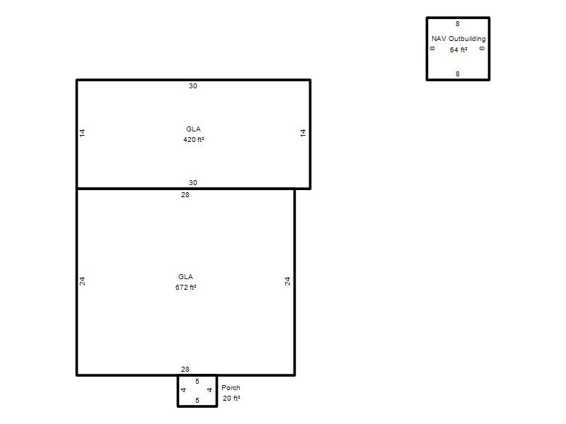
| Photo & Sketch (if available) | Comp Sales (ordered by relevancy) |
|
||||||||||||||||||
|
||||||||||||||||||||
| Value History (*The County Treasurer 405-713-1300 posts & collects actual tax amounts. Contact information HERE) | |||||||||||||
|---|---|---|---|---|---|---|---|---|---|---|---|---|---|
| Year | Market Value | Taxable Mkt Value | Gross Assessed | Exemption | Net Assessed | Millage | Est. Tax | Tax Savings | |||||
|
2025 |
118,500 |
87,979 |
9,676 |
0 |
9,676 |
122.90 |
$1,189 |
$413 |
|||||
|
2024 |
115,000 |
83,790 |
9,216 |
0 |
9,216 |
123.89 |
$1,142 |
$425 |
|||||
|
2023 |
93,500 |
79,800 |
8,778 |
0 |
8,778 |
122.82 |
$1,078 |
$185 |
|||||
|
2022 |
76,000 |
76,000 |
8,360 |
0 |
8,360 |
117.63 |
$983 |
$0 |
|||||
|
2021 |
81,500 |
81,500 |
8,965 |
0 |
8,965 |
117.70 |
$1,055 |
$0 |
|||||
| Property Account Status/Adjustments/Exemptions | ||
|---|---|---|
| Account # | Exemption Description | Amount |
|
R020057920 |
5% Capped Account |
0 |
| Property Deed Transaction History (Recorded in the County Clerk's Office) | ||||||||||
|---|---|---|---|---|---|---|---|---|---|---|
| Date | Type | Book | Page | Price | Grantor | Grantee | ||||
|
9/11/2020 |
|
Deeds |
$82,500 |
ESCROW STRATEGY LLC |
ILLINI INVESTMENTS LLC |
|||||
|
6/4/2020 |
|
Deeds |
$29,000 |
STEWART PAUL S |
ESCROW STRATEGY LLC |
|||||
|
11/24/2015 |
|
Deeds |
$0 |
STEWART PAUL S & JEANIE M |
STEWART PAUL S |
|||||
|
9/30/2003 |
|
Deeds |
$50,000 |
BURLESON FLOYD JR & SAUNDRA P |
STEWART PAUL S & JEANIE M |
|||||
|
9/11/2000 |
|
Deeds |
$16,000 |
ERVIN EDWARD RAY DEAN MARGUETTA |
BURLESON FLOYD JR & SAUNDRA P |
|||||
| Last Mailed Notice of Value (N.O.V.) Information/History | ||||||||
|---|---|---|---|---|---|---|---|---|
| Year | Date | Market Value | Taxable Market Value | Gross Assessed | Exemption | Net Assessed | ||
|
2026 |
02/23/2026 |
128,000 |
92,377 |
10,160 |
0 |
10,160 |
||
|
2025 |
02/14/2025 |
118,500 |
87,979 |
9,676 |
0 |
9,676 |
||
|
2024 |
02/13/2024 |
115,000 |
83,790 |
9,216 |
0 |
9,216 |
||
|
2023 |
02/14/2023 |
93,500 |
79,800 |
8,778 |
0 |
8,778 |
||
|
2021 |
03/19/2021 |
81,500 |
81,500 |
8,965 |
0 |
8,965 |
||
| Property Building Permit History | |||||||||||
|---|---|---|---|---|---|---|---|---|---|---|---|
| Issued | Permit # | Provided by | Bldg # | Description | Est Construction Cost | Status | |||||
| No Building Permit records returned. | |||||||||||
| Click button on building number to access detailed information: | ||||||
|---|---|---|---|---|---|---|
| Bldg # | Vacant/Improved Land | Bldg Description | Year Built | SqFt | # Stories | |
|
1 |
Improved |
Ranch 1 Story |
1943 |
1,092 |
1 Stories |
|