|
|
|
| Larry Stein Oklahoma County Assessor (405) 713-1200 - Public Access System |
|
|
|
|
|
|
| Real Property Display - Screen Produced 3/31/2026 11:37:36 PM | ||||
|---|---|---|---|---|
| Account: R020090700 | Type: Residential | Location: |
1233 BELLEVIDERE DR |
|
| Building Name/Occupant: |
|
OKLAHOMA CITY |
||
| Owner Name 1: | ZEIGLER JONA |
Parcel PIN#: |
2699-02-009-0700 |
|
| Owner Name 2: | 1/4 section #: |
2699 |
||
| Owner Name 3: | Parent Acct: |
|
||
| Billing Address: | 1233 BELLEVIDERE DR | Tax District: |
|
|
| City, State, Zip | OKLAHOMA CITY, OK 73117-5003 | School System: |
Oklahoma City #89 |
|
|
Country: (If noted) |
Land Size: |
0.1400 Acres |
||
|
Land Value: 6,100 |
|
|||
|
Sect 25-T12N-R3W Qtr SW |
CARVERDALE SUB ADD
Block
001
Lot
014
|
|||
| Full Legal Description: CARVERDALE SUB ADD 001 014 |
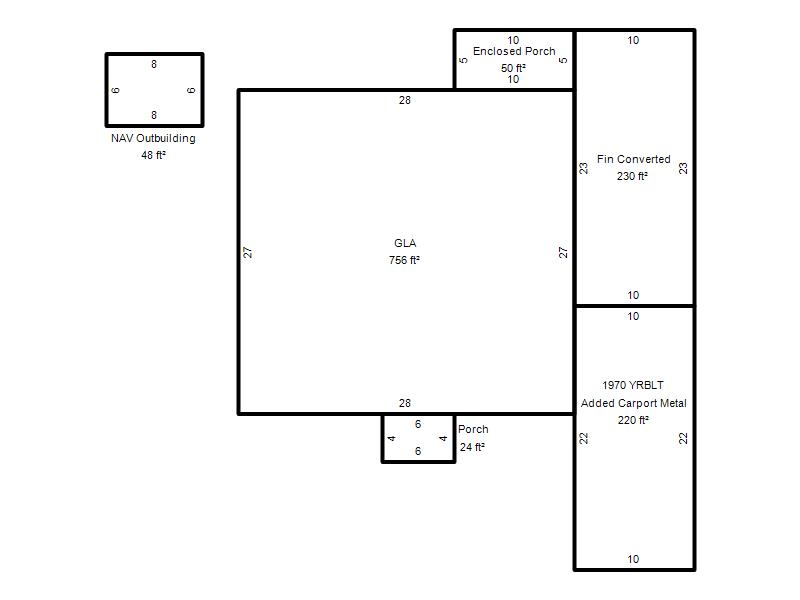
| Photo & Sketch (if available) | Comp Sales (ordered by relevancy) |
|
||||||||||||||||||
|
||||||||||||||||||||
| Value History (*The County Treasurer 405-713-1300 posts & collects actual tax amounts. Contact information HERE) | |||||||||||||
|---|---|---|---|---|---|---|---|---|---|---|---|---|---|
| Year | Market Value | Taxable Mkt Value | Gross Assessed | Exemption | Net Assessed | Millage | Est. Tax | Tax Savings | |||||
|
2026 |
78,000 |
37,999 |
4,179 |
1,000 |
3,179 |
122.90 |
$391 |
$664 |
|||||
|
2025 |
78,000 |
36,893 |
4,058 |
1,000 |
3,058 |
122.90 |
$376 |
$679 |
|||||
|
2024 |
73,500 |
35,819 |
3,939 |
1,000 |
2,939 |
123.89 |
$364 |
$637 |
|||||
|
2023 |
65,500 |
34,776 |
3,825 |
1,000 |
2,825 |
122.82 |
$347 |
$538 |
|||||
|
2022 |
52,000 |
33,764 |
3,713 |
1,000 |
2,713 |
117.63 |
$319 |
$354 |
|||||
| Property Account Status/Adjustments/Exemptions | ||
|---|---|---|
| Account # | Exemption Description | Amount |
|
R020090700 |
3% Cap Homestead |
0 |
|
R020090700 |
Homestead |
1,000 |
| Property Deed Transaction History (Recorded in the County Clerk's Office) | ||||||||||
|---|---|---|---|---|---|---|---|---|---|---|
| Date | Type | Book | Page | Price | Grantor | Grantee | ||||
|
4/7/2016 |
|
Hmstd Off & |
$0 |
ESTATE OF ANITA HOLMAN KNOX PER REP ANNETTE HOLMAN WARE |
ZEIGLER JONA |
|||||
|
4/7/2016 |
|
Deeds |
$33,000 |
HOLMAN HAROLD E ETAL HOLMAN CLARENCE E |
ZEIGLER JONA |
|||||
|
10/22/2013 |
|
Hmstd Off & |
$0 |
HOLMAN HARRY PRESTON |
HOLMAN HAROLD E ETAL HOLMAN CLARENCE E |
|||||
|
3/11/2010 |
|
Deeds |
$0 |
HOLMAN HARRY PRESTON & EDNA E TRS HOLMAN TRUST |
HOLMAN HARRY PRESTON |
|||||
|
7/15/2004 |
|
Deeds |
$0 |
HOLMAN HARRY & EDNA |
HOLMAN HARRY PRESTON & EDNA E TRS HOLMAN TRUST |
|||||
| Last Mailed Notice of Value (N.O.V.) Information/History | ||||||||
|---|---|---|---|---|---|---|---|---|
| Year | Date | Market Value | Taxable Market Value | Gross Assessed | Exemption | Net Assessed | ||
|
2026 |
02/23/2026 |
78,000 |
37,999 |
4,179 |
1,000 |
3,179 |
||
|
2025 |
02/14/2025 |
78,000 |
36,893 |
4,058 |
1,000 |
3,058 |
||
|
2024 |
02/13/2024 |
73,500 |
35,819 |
3,939 |
1,000 |
2,939 |
||
|
2023 |
02/14/2023 |
65,500 |
34,776 |
3,825 |
1,000 |
2,825 |
||
|
2022 |
03/15/2022 |
52,000 |
33,764 |
3,713 |
1,000 |
2,713 |
||
| Property Building Permit History | |||||||||||
|---|---|---|---|---|---|---|---|---|---|---|---|
| Issued | Permit # | Provided by | Bldg # | Description | Est Construction Cost | Status | |||||
| No Building Permit records returned. | |||||||||||
| Click button on building number to access detailed information: | ||||||
|---|---|---|---|---|---|---|
| Bldg # | Vacant/Improved Land | Bldg Description | Year Built | SqFt | # Stories | |
|
1 |
Improved |
Ranch 1 Story |
1946 |
756 |
1 Stories |
|