|
|
|
| Larry Stein Oklahoma County Assessor (405) 713-1200 - Public Access System |
|
|
|
|
|
|
| Real Property Display - Screen Produced 3/5/2026 7:55:22 AM | ||||
|---|---|---|---|---|
| Account: R030034355 | Type: Residential | Location: |
2213 NE 20TH ST |
|
| Building Name/Occupant: |
|
OKLAHOMA CITY |
||
| Owner Name 1: | TEAGUE CORRIE L |
Parcel PIN#: |
2700-03-003-4355 |
|
| Owner Name 2: | 1/4 section #: |
2700 |
||
| Owner Name 3: | Parent Acct: |
|
||
| Billing Address: | 3333 DEL RANCHO DR | Tax District: |
|
|
| City, State, Zip | DEL CITY, OK 73115-4924 | School System: |
Oklahoma City #89 |
|
|
Country: (If noted) |
Land Size: |
0.1515 Acres |
||
|
Land Value: 6,930 |
|
|||
|
Sect 25-T12N-R3W Qtr NW |
CRESTON HILLS ADD
Block
016
Lot
016
|
|||
| Full Legal Description: CRESTON HILLS ADD 016 016 |
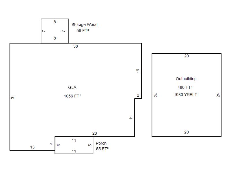
| Photo & Sketch (if available) | Comp Sales (ordered by relevancy) |
|
||||||||||||||||||
|
||||||||||||||||||||
| Value History (*The County Treasurer 405-713-1300 posts & collects actual tax amounts. Contact information HERE) | |||||||||||||
|---|---|---|---|---|---|---|---|---|---|---|---|---|---|
| Year | Market Value | Taxable Mkt Value | Gross Assessed | Exemption | Net Assessed | Millage | Est. Tax | Tax Savings | |||||
|
2025 |
67,000 |
31,798 |
3,497 |
0 |
3,497 |
122.90 |
$430 |
$476 |
|||||
|
2024 |
65,500 |
30,284 |
3,330 |
0 |
3,330 |
123.89 |
$413 |
$480 |
|||||
|
2023 |
56,500 |
28,842 |
3,172 |
0 |
3,172 |
122.82 |
$390 |
$374 |
|||||
|
2022 |
40,000 |
27,469 |
3,020 |
0 |
3,020 |
117.63 |
$355 |
$162 |
|||||
|
2021 |
34,500 |
26,161 |
2,877 |
0 |
2,877 |
117.70 |
$339 |
$108 |
|||||
| Property Account Status/Adjustments/Exemptions | ||
|---|---|---|
| Account # | Exemption Description | Amount |
|
R030034355 |
5% Capped Account |
0 |
| Property Deed Transaction History (Recorded in the County Clerk's Office) | |||||||
|---|---|---|---|---|---|---|---|
| Date | Type | Book | Page | Price | Grantor | Grantee | |
|
8/9/2013 |
|
Hmstd Off & |
$0 |
HICKS SHEDRA A |
TEAGUE CORRIE L |
||
|
11/5/2001 |
|
Other |
$0 |
HOOKS CAREY D |
HICKS SHEDRA A |
||
|
10/1/1993 |
|
Historical |
$13,000 |
SINGLETON THELMA |
HOOKS CAREY D |
||
|
11/11/1911 |
|
Historical |
$0 |
|
SINGLETON THELMA |
||
| Last Mailed Notice of Value (N.O.V.) Information/History | ||||||||
|---|---|---|---|---|---|---|---|---|
| Year | Date | Market Value | Taxable Market Value | Gross Assessed | Exemption | Net Assessed | ||
|
2026 |
02/23/2026 |
85,500 |
33,387 |
3,671 |
0 |
3,671 |
||
|
2025 |
02/14/2025 |
67,000 |
31,798 |
3,497 |
0 |
3,497 |
||
|
2024 |
02/13/2024 |
65,500 |
30,284 |
3,330 |
0 |
3,330 |
||
|
2023 |
02/14/2023 |
56,500 |
28,842 |
3,172 |
0 |
3,172 |
||
|
2022 |
03/15/2022 |
40,000 |
27,469 |
3,020 |
0 |
3,020 |
||
| Property Building Permit History | |||||||||||
|---|---|---|---|---|---|---|---|---|---|---|---|
| Issued | Permit # | Provided by | Bldg # | Description | Est Construction Cost | Status | |||||
| No Building Permit records returned. | |||||||||||
| Click button on building number to access detailed information: | ||||||
|---|---|---|---|---|---|---|
| Bldg # | Vacant/Improved Land | Bldg Description | Year Built | SqFt | # Stories | |
|
1 |
Improved |
Ranch 1 Story |
1944 |
1,056 |
1 Stories |
|