|
|
|
| Larry Stein Oklahoma County Assessor (405) 713-1200 - Public Access System |
|
|
|
|
|
|
| Real Property Display - Screen Produced 3/3/2026 11:24:41 AM | ||||
|---|---|---|---|---|
| Account: R030034537 | Type: Residential | Location: |
2304 HARDIN DR |
|
| Building Name/Occupant: |
|
OKLAHOMA CITY |
||
| Owner Name 1: | VILLALPANDO EDWIN |
Parcel PIN#: |
2700-03-003-4537 |
|
| Owner Name 2: | 1/4 section #: |
2700 |
||
| Owner Name 3: | Parent Acct: |
|
||
| Billing Address: | 2304 HARDIN DR | Tax District: |
|
|
| City, State, Zip | OKLAHOMA CITY, OK 73111 | School System: |
Oklahoma City #89 |
|
|
Country: (If noted) |
Land Size: |
0.1515 Acres |
||
|
Land Value: 6,930 |
|
|||
|
Sect 25-T12N-R3W Qtr NW |
CRESTON HILLS ADD
Block
017
Lot
006
|
|||
| Full Legal Description: CRESTON HILLS ADD 017 006 |
| Photo & Sketch (if available) | Comp Sales (ordered by relevancy) |
|
||||||||||||||||||
|
||||||||||||||||||||
| Value History (*The County Treasurer 405-713-1300 posts & collects actual tax amounts. Contact information HERE) | |||||||||||||
|---|---|---|---|---|---|---|---|---|---|---|---|---|---|
| Year | Market Value | Taxable Mkt Value | Gross Assessed | Exemption | Net Assessed | Millage | Est. Tax | Tax Savings | |||||
|
2025 |
121,500 |
121,500 |
13,365 |
0 |
13,365 |
122.90 |
$1,643 |
$0 |
|||||
|
2024 |
121,500 |
121,500 |
13,365 |
0 |
13,365 |
123.89 |
$1,656 |
$0 |
|||||
|
2023 |
141,000 |
141,000 |
15,510 |
0 |
15,510 |
122.82 |
$1,905 |
$0 |
|||||
|
2022 |
40,500 |
40,500 |
4,455 |
0 |
4,455 |
117.63 |
$524 |
$0 |
|||||
|
2021 |
35,500 |
26,799 |
2,947 |
0 |
2,947 |
117.70 |
$347 |
$113 |
|||||
| Property Account Status/Adjustments/Exemptions | ||
|---|---|---|
| Account # | Exemption Description | Amount |
|
R030034537 |
5% Capped Account |
0 |
| Property Deed Transaction History (Recorded in the County Clerk's Office) | ||||||||||
|---|---|---|---|---|---|---|---|---|---|---|
| Date | Type | Book | Page | Price | Grantor | Grantee | ||||
|
3/10/2022 |
|
Deeds |
$140,000 |
CHASADI PROPERTY LLC |
VILLALPANDO EDWIN |
|||||
|
9/8/2021 |
|
Deeds |
$40,000 |
COLEMAN GRETA Y TRS |
CHASADI PROPERTY LLC |
|||||
|
1/6/2012 |
|
Deeds |
$0 |
COLEMAN GRETA YVONNE |
COLEMAN GRETA Y TRS |
|||||
|
2/7/2000 |
|
Deeds |
$13,000 |
MAYFIELD JULIA M |
COLEMAN GRETA YVONNE |
|||||
|
12/9/1999 |
|
Deeds |
$0 |
MAYO LOUELLA FREEMAN MAYFIELD JULIA MURRELL |
MAYFIELD JULIA M |
|||||
| Last Mailed Notice of Value (N.O.V.) Information/History | ||||||||
|---|---|---|---|---|---|---|---|---|
| Year | Date | Market Value | Taxable Market Value | Gross Assessed | Exemption | Net Assessed | ||
|
2026 |
02/23/2026 |
147,500 |
127,575 |
14,033 |
0 |
14,033 |
||
|
2023 |
02/14/2023 |
141,000 |
141,000 |
15,510 |
0 |
15,510 |
||
|
2022 |
03/15/2022 |
40,500 |
40,500 |
4,455 |
0 |
4,455 |
||
|
2022 |
04/05/2022 |
40,500 |
40,500 |
4,455 |
0 |
4,455 |
||
|
2021 |
03/19/2021 |
35,500 |
26,799 |
2,947 |
0 |
2,947 |
||
| Property Building Permit History | |||||||||||
|---|---|---|---|---|---|---|---|---|---|---|---|
| Issued | Permit # | Provided by | Bldg # | Description | Est Construction Cost | Status | |||||
| No Building Permit records returned. | |||||||||||
| Click button on building number to access detailed information: | ||||||
|---|---|---|---|---|---|---|
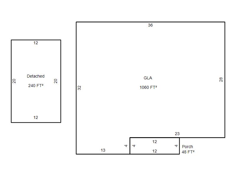
| Bldg # | Vacant/Improved Land | Bldg Description | Year Built | SqFt | # Stories | |
|
1 |
Improved |
Ranch 1 Story |
1941 |
1,060 |
1 Stories |
|