|
|
|
| Larry Stein Oklahoma County Assessor (405) 713-1200 - Public Access System |
|
|
|
|
|
|
| Real Property Display - Screen Produced 3/5/2026 3:51:14 AM | ||||
|---|---|---|---|---|
| Account: R030034654 | Type: Residential | Location: |
2320 NE 20TH ST |
|
| Building Name/Occupant: |
|
OKLAHOMA CITY |
||
| Owner Name 1: | TB HOLDINGS LLC |
Parcel PIN#: |
2700-03-003-4654 |
|
| Owner Name 2: | 1/4 section #: |
2700 |
||
| Owner Name 3: | Parent Acct: |
|
||
| Billing Address: | PO BOX 20527 | Tax District: |
|
|
| City, State, Zip | OKLAHOMA CITY, OK 73156 | School System: |
Oklahoma City #89 |
|
|
Country: (If noted) |
UNITED STATES |
Land Size: |
0.1515 Acres |
|
|
Land Value: 6,930 |
|
|||
|
Sect 25-T12N-R3W Qtr NW |
CRESTON HILLS ADD
Block
018
Lot
002
|
|||
| Full Legal Description: CRESTON HILLS ADD 018 002 50FT BY 132FT |
| Photo & Sketch (if available) | Comp Sales (ordered by relevancy) |
|
||||||||||||||||||
|
||||||||||||||||||||
| Value History (*The County Treasurer 405-713-1300 posts & collects actual tax amounts. Contact information HERE) | |||||||||||||
|---|---|---|---|---|---|---|---|---|---|---|---|---|---|
| Year | Market Value | Taxable Mkt Value | Gross Assessed | Exemption | Net Assessed | Millage | Est. Tax | Tax Savings | |||||
| No PropertyValuation records returned. | |||||||||||||
| Property Account Status/Adjustments/Exemptions | ||
|---|---|---|
| Account # | Exemption Description | Amount |
|
R030034654 |
5% Capped Account |
0 |
| Property Deed Transaction History (Recorded in the County Clerk's Office) | ||||||||||
|---|---|---|---|---|---|---|---|---|---|---|
| Date | Type | Book | Page | Price | Grantor | Grantee | ||||
|
9/1/2022 |
|
Deeds |
$58,000 |
2320 NE 20TH LLC |
TB HOLDINGS LLC |
|||||
|
5/4/2007 |
|
Hmstd Off & |
$0 |
2320 NE 20TH LLC |
PROPERTY MANAGEMENT SERVICES LLC |
|||||
|
8/12/2004 |
|
Hmstd Off & |
$0 |
ROSE THELMA L |
2320 NE 20TH LLC |
|||||
|
7/1/2001 |
|
Deeds |
$32,000 |
PROPERTY MANAGEMENT SERVICES INC |
ROSE THELMA L |
|||||
|
12/21/1992 |
|
Historical |
$0 |
JAMES RICHARD E |
PROPERTY MANAGEMENT |
|||||
| Last Mailed Notice of Value (N.O.V.) Information/History | ||||||||
|---|---|---|---|---|---|---|---|---|
| Year | Date | Market Value | Taxable Market Value | Gross Assessed | Exemption | Net Assessed | ||
| No Notice of Value N.O.V. records returned. | ||||||||
| Property Building Permit History | ||||||
|---|---|---|---|---|---|---|
| Issued | Permit # | Provided by | Bldg # | Description | Est Construction Cost | Status |
|
11/2/2022 |
2023 |
|
1 |
Remodeled |
|
Inactive |
| Click button on building number to access detailed information: | ||||||
|---|---|---|---|---|---|---|
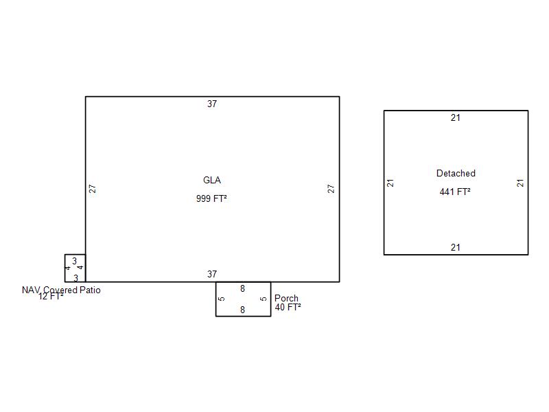
| Bldg # | Vacant/Improved Land | Bldg Description | Year Built | SqFt | # Stories | |
|
1 |
Improved |
Ranch 1 Story |
1945 |
999 |
1 Stories |
|