|
|
|
| Larry Stein Oklahoma County Assessor (405) 713-1200 - Public Access System |
|
|
|
|
|
|
| Real Property Display - Screen Produced 3/5/2026 5:57:36 PM | ||||
|---|---|---|---|---|
| Account: R031790950 | Type: Residential | Location: |
2138 N BATH AVE |
|
| Building Name/Occupant: |
|
OKLAHOMA CITY |
||
| Owner Name 1: | UNIBUX PROPERTIES LLC |
Parcel PIN#: |
2701-03-179-0950 |
|
| Owner Name 2: | 1/4 section #: |
2701 |
||
| Owner Name 3: | Parent Acct: |
|
||
| Billing Address: | 1001 N VIRGINIA DR | Tax District: |
|
|
| City, State, Zip | OKLAHOMA CITY, OK 73107 | School System: |
Oklahoma City #89 |
|
|
Country: (If noted) |
Land Size: |
0.1550 Acres |
||
|
Land Value: 8,775 |
|
|||
|
Sect 26-T12N-R3W Qtr NE |
ROSS HT ADD SB BLK 7
Block
007
Lot
000
|
|||
| Full Legal Description: ROSS HT ADD SB BLK 7 007 000 LOTS 4 & 5 |
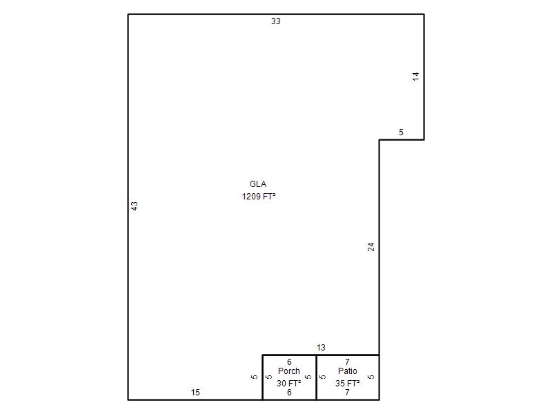
| Photo & Sketch (if available) | Comp Sales (ordered by relevancy) |
|
||||||||||||||||||
|
||||||||||||||||||||
| Value History (*The County Treasurer 405-713-1300 posts & collects actual tax amounts. Contact information HERE) | |||||||||||||
|---|---|---|---|---|---|---|---|---|---|---|---|---|---|
| Year | Market Value | Taxable Mkt Value | Gross Assessed | Exemption | Net Assessed | Millage | Est. Tax | Tax Savings | |||||
|
2025 |
125,000 |
75,968 |
8,355 |
0 |
8,355 |
122.90 |
$1,027 |
$663 |
|||||
|
2024 |
121,000 |
72,351 |
7,957 |
0 |
7,957 |
123.89 |
$986 |
$663 |
|||||
|
2023 |
98,000 |
68,906 |
7,578 |
0 |
7,578 |
122.82 |
$931 |
$393 |
|||||
|
2022 |
77,000 |
65,625 |
7,218 |
0 |
7,218 |
117.63 |
$849 |
$147 |
|||||
|
2021 |
62,500 |
62,500 |
6,875 |
0 |
6,875 |
117.70 |
$809 |
$0 |
|||||
| Property Account Status/Adjustments/Exemptions | ||
|---|---|---|
| Account # | Exemption Description | Amount |
|
R031790950 |
5% Capped Account |
0 |
| Property Deed Transaction History (Recorded in the County Clerk's Office) | ||||||||||
|---|---|---|---|---|---|---|---|---|---|---|
| Date | Type | Book | Page | Price | Grantor | Grantee | ||||
|
2/20/2020 |
|
Deeds |
$60,500 |
NEW FUND LLC |
UNIBUX PROPERTIES LLC |
|||||
|
1/22/2019 |
|
Deeds |
$33,500 |
KODI DEVELOPMENT CORPORATION |
NEW FUND LLC |
|||||
|
10/1/2012 |
|
Hmstd Off & |
$0 |
HATFIELD VAN SR & KRISTI |
KODI DEVELOPMENT CORPORATION |
|||||
|
3/2/2011 |
|
Hmstd Off & |
$0 |
KODI PROPERTY DEVELOPMENT |
HATFIELD VAN SR & KRISTI |
|||||
|
5/19/2009 |
|
Deeds |
$10,000 |
MANCHESTER SUSAN TRS D E BROOKS ENTERPRISES INC |
KODI PROPERTY DEVELOPMENT |
|||||
| Last Mailed Notice of Value (N.O.V.) Information/History | ||||||||
|---|---|---|---|---|---|---|---|---|
| Year | Date | Market Value | Taxable Market Value | Gross Assessed | Exemption | Net Assessed | ||
|
2026 |
02/23/2026 |
123,000 |
79,766 |
8,773 |
0 |
8,773 |
||
|
2025 |
02/14/2025 |
125,000 |
75,968 |
8,355 |
0 |
8,355 |
||
|
2024 |
02/13/2024 |
121,000 |
72,351 |
7,957 |
0 |
7,957 |
||
|
2023 |
02/14/2023 |
98,000 |
68,906 |
7,578 |
0 |
7,578 |
||
|
2022 |
03/15/2022 |
77,000 |
65,625 |
7,218 |
0 |
7,218 |
||
| Property Building Permit History | |||||||||||
|---|---|---|---|---|---|---|---|---|---|---|---|
| Issued | Permit # | Provided by | Bldg # | Description | Est Construction Cost | Status | |||||
| No Building Permit records returned. | |||||||||||
| Click button on building number to access detailed information: | ||||||
|---|---|---|---|---|---|---|
| Bldg # | Vacant/Improved Land | Bldg Description | Year Built | SqFt | # Stories | |
|
1 |
Improved |
Ranch 1 Story |
1928 |
1,209 |
1 Stories |
|