|
|
|
| Larry Stein Oklahoma County Assessor (405) 713-1200 - Public Access System |
|
|
|
|
|
|
| Real Property Display - Screen Produced 3/5/2026 5:57:01 PM | ||||
|---|---|---|---|---|
| Account: R031791425 | Type: Residential | Location: |
2134 N BATH AVE |
|
| Building Name/Occupant: |
|
OKLAHOMA CITY |
||
| Owner Name 1: | KINGS COURT REAL ESTATE LLC |
Parcel PIN#: |
2701-03-179-1425 |
|
| Owner Name 2: | 1/4 section #: |
2701 |
||
| Owner Name 3: | Parent Acct: |
|
||
| Billing Address: | 17238 SE 149TH ST | Tax District: |
|
|
| City, State, Zip | NEWALLA, OK 74857-9444 | School System: |
Oklahoma City #89 |
|
|
Country: (If noted) |
Land Size: |
0.1550 Acres |
||
|
Land Value: 8,775 |
|
|||
|
Sect 26-T12N-R3W Qtr NE |
ROSS HT ADD SB BLK 7
Block
007
Lot
000
|
|||
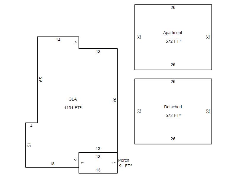
| Full Legal Description: ROSS HT ADD SB BLK 7 007 000 LOTS 6 & 7 |
| Photo & Sketch (if available) | Comp Sales (ordered by relevancy) |
|
||||||||||||||||||
|
||||||||||||||||||||
| Value History (*The County Treasurer 405-713-1300 posts & collects actual tax amounts. Contact information HERE) | |||||||||||||
|---|---|---|---|---|---|---|---|---|---|---|---|---|---|
| Year | Market Value | Taxable Mkt Value | Gross Assessed | Exemption | Net Assessed | Millage | Est. Tax | Tax Savings | |||||
|
2025 |
119,500 |
71,772 |
7,894 |
0 |
7,894 |
122.90 |
$970 |
$645 |
|||||
|
2024 |
102,000 |
68,355 |
7,519 |
0 |
7,519 |
123.89 |
$932 |
$459 |
|||||
|
2023 |
82,000 |
65,100 |
7,161 |
0 |
7,161 |
122.82 |
$880 |
$228 |
|||||
|
2022 |
62,000 |
62,000 |
6,820 |
0 |
6,820 |
117.63 |
$802 |
$0 |
|||||
|
2021 |
30,500 |
24,806 |
2,727 |
0 |
2,727 |
117.70 |
$321 |
$74 |
|||||
| Property Account Status/Adjustments/Exemptions | ||
|---|---|---|
| Account # | Exemption Description | Amount |
|
R031791425 |
5% Capped Account |
0 |
| Property Deed Transaction History (Recorded in the County Clerk's Office) | ||||||||||
|---|---|---|---|---|---|---|---|---|---|---|
| Date | Type | Book | Page | Price | Grantor | Grantee | ||||
|
7/7/2025 |
|
Hmstd Off & |
$0 |
LONGORIA ANTHONY |
KINGS COURT REAL ESTATE LLC |
|||||
|
6/17/2025 |
|
Hmstd Off & |
$0 |
KINGS COURT REAL ESTATE LLC |
LONGORIA ANTHONY |
|||||
|
3/18/2021 |
|
Deeds |
$65,000 |
FARAMARZALIAN ABDOLRAHMAN |
KINGS COURT REAL ESTATE LLC |
|||||
|
1/21/2021 |
|
Hmstd Off & |
$0 |
MCCLOUD ALBERT ETAL |
FARAMARZALIAN ABDOLRAHMAN |
|||||
|
2/8/2007 |
|
Other |
$0 |
MCCLOUD ALBERT & SCHELLISA R |
FARAMARZALIAN ABDOLRAHMAN |
|||||
| Last Mailed Notice of Value (N.O.V.) Information/History | ||||||||
|---|---|---|---|---|---|---|---|---|
| Year | Date | Market Value | Taxable Market Value | Gross Assessed | Exemption | Net Assessed | ||
|
2026 |
02/23/2026 |
120,500 |
75,360 |
8,288 |
0 |
8,288 |
||
|
2025 |
02/14/2025 |
119,500 |
71,772 |
7,894 |
0 |
7,894 |
||
|
2024 |
02/13/2024 |
102,000 |
68,355 |
7,519 |
0 |
7,519 |
||
|
2023 |
02/14/2023 |
82,000 |
65,100 |
7,161 |
0 |
7,161 |
||
|
2022 |
03/15/2022 |
62,000 |
62,000 |
6,820 |
0 |
6,820 |
||
| Property Building Permit History | ||||||
|---|---|---|---|---|---|---|
| Issued | Permit # | Provided by | Bldg # | Description | Est Construction Cost | Status |
|
3/16/2011 |
10425076 |
OKLAHOMA CITY |
1 |
Burn - Trip |
1,000 |
Inactive |
|
4/29/2008 |
10351514 |
COUNTY |
1 |
Remodeled |
0 |
Inactive |
| Click button on building number to access detailed information: | ||||||
|---|---|---|---|---|---|---|
| Bldg # | Vacant/Improved Land | Bldg Description | Year Built | SqFt | # Stories | |
|
1 |
Improved |
Ranch 1 Story |
1929 |
1,131 |
1 Stories |
|