|
|
|
| Larry Stein Oklahoma County Assessor (405) 713-1200 - Public Access System |
|
|
|
|
|
|
| Real Property Display - Screen Produced 3/5/2026 1:06:04 PM | ||||
|---|---|---|---|---|
| Account: R032353735 | Type: Residential | Location: |
1711 NE 19TH ST |
|
| Building Name/Occupant: |
|
OKLAHOMA CITY |
||
| Owner Name 1: | MORRIS SMITH ANGELICA |
Parcel PIN#: |
2701-03-235-3735 |
|
| Owner Name 2: | 1/4 section #: |
2701 |
||
| Owner Name 3: | Parent Acct: |
|
||
| Billing Address: | 1711 NE 19TH ST | Tax District: |
|
|
| City, State, Zip | OKLAHOMA CITY, OK 73111 | School System: |
Oklahoma City #89 |
|
|
Country: (If noted) |
UNITED STATES |
Land Size: |
0.1607 Acres |
|
|
Land Value: 9,100 |
|
|||
|
Sect 26-T12N-R3W Qtr NE |
ROSS HTS SUB BLK 14
Block
001
Lot
000
|
|||
| Full Legal Description: ROSS HTS SUB BLK 14 BLK 001 LOT 000 LOTS 19 & 20 |
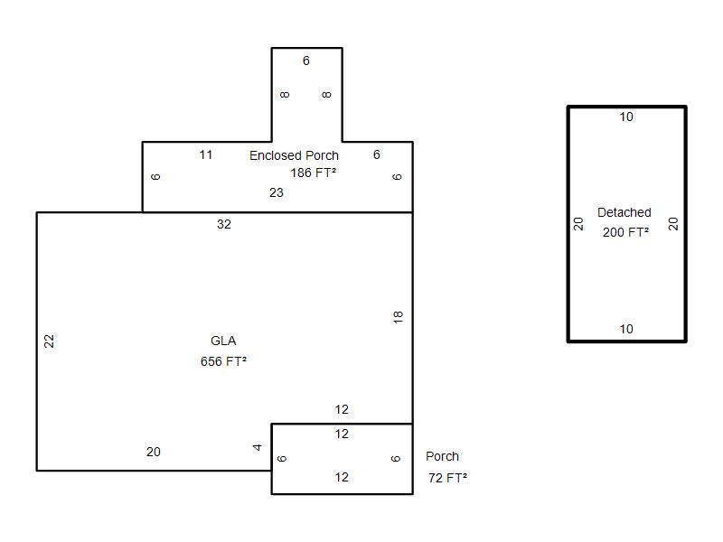
| Photo & Sketch (if available) | Comp Sales (ordered by relevancy) |
|
||||||||||||||||||
|
||||||||||||||||||||
| Value History (*The County Treasurer 405-713-1300 posts & collects actual tax amounts. Contact information HERE) | |||||||||||||
|---|---|---|---|---|---|---|---|---|---|---|---|---|---|
| Year | Market Value | Taxable Mkt Value | Gross Assessed | Exemption | Net Assessed | Millage | Est. Tax | Tax Savings | |||||
|
2025 |
63,000 |
63,000 |
6,930 |
0 |
6,930 |
122.90 |
$852 |
$0 |
|||||
|
2024 |
60,000 |
21,946 |
2,413 |
1,000 |
1,413 |
123.89 |
$175 |
$642 |
|||||
|
2023 |
57,500 |
21,307 |
2,343 |
1,000 |
1,343 |
122.82 |
$165 |
$612 |
|||||
|
2022 |
43,000 |
20,687 |
2,275 |
1,000 |
1,275 |
117.63 |
$150 |
$406 |
|||||
|
2021 |
49,500 |
20,085 |
2,209 |
1,000 |
1,209 |
117.70 |
$142 |
$499 |
|||||
| Property Account Status/Adjustments/Exemptions | ||
|---|---|---|
| Account # | Exemption Description | Amount |
|
R032353735 |
3% Cap Homestead |
0 |
|
R032353735 |
Homestead |
1,000 |
| Property Deed Transaction History (Recorded in the County Clerk's Office) | ||||||||||
|---|---|---|---|---|---|---|---|---|---|---|
| Date | Type | Book | Page | Price | Grantor | Grantee | ||||
|
1/10/2024 |
|
Deeds |
$500 |
SMITH VINITA RENA |
MORRIS SMITH ANGELICA |
|||||
|
4/2/2019 |
|
Other |
$0 |
CITY OF OKLAHOMA CITY |
SMITH VINITA RENA |
|||||
|
5/21/2010 |
|
Other |
$0 |
JUDGMENT & DECREE OF FORECLOSURE |
CITY OF OKLAHOMA CITY |
|||||
|
2/5/2002 |
|
Deeds |
$0 |
GREEN SUSIE E |
MYERS SUSIE |
|||||
|
11/17/2000 |
|
Hmstd Off & |
$0 |
MYERS SUSIE |
INGRAM LEROY |
|||||
| Last Mailed Notice of Value (N.O.V.) Information/History | ||||||||
|---|---|---|---|---|---|---|---|---|
| Year | Date | Market Value | Taxable Market Value | Gross Assessed | Exemption | Net Assessed | ||
|
2026 |
02/23/2026 |
65,500 |
64,890 |
7,137 |
1,000 |
6,137 |
||
|
2025 |
02/14/2025 |
63,000 |
63,000 |
6,930 |
0 |
6,930 |
||
|
2024 |
02/13/2024 |
60,000 |
21,946 |
2,413 |
1,000 |
1,413 |
||
|
2024 |
03/01/2024 |
60,000 |
21,946 |
2,413 |
1,000 |
1,413 |
||
|
2023 |
02/14/2023 |
57,500 |
21,307 |
2,343 |
1,000 |
1,343 |
||
| Property Building Permit History | |||||||||||
|---|---|---|---|---|---|---|---|---|---|---|---|
| Issued | Permit # | Provided by | Bldg # | Description | Est Construction Cost | Status | |||||
| No Building Permit records returned. | |||||||||||
| Click button on building number to access detailed information: | ||||||
|---|---|---|---|---|---|---|
| Bldg # | Vacant/Improved Land | Bldg Description | Year Built | SqFt | # Stories | |
|
1 |
Improved |
Ranch 1 Story |
1939 |
656 |
1 Stories |
|