|
|
|
| Larry Stein Oklahoma County Assessor (405) 713-1200 - Public Access System |
|
|
|
|
|
|
| Real Property Display - Screen Produced 3/12/2026 4:20:43 AM | ||||
|---|---|---|---|---|
| Account: R267092003 | Type: Residential | Location: |
18410 SE 21ST ST |
|
| Building Name/Occupant: |
|
UNINCORPORATED |
||
| Owner Name 1: | MCCRAW NIKKI ANN & CODY W |
Parcel PIN#: |
1036-26-709-2003 |
|
| Owner Name 2: | 1/4 section #: |
1036 |
||
| Owner Name 3: | Parent Acct: |
|
||
| Billing Address: | 18410 SE 21ST ST | Tax District: |
|
|
| City, State, Zip | CHOCTAW, OK 73020-6300 | School System: |
Choctaw #4 |
|
|
Country: (If noted) |
Land Size: |
4.8100 Acres |
||
|
Land Value: 84,804 |
|
|||
|
Sect 9-T11N-R1E Qtr NW |
POTTAWATOMIE TOWNSHIP
Block
000
Lot
000
|
|||
| Full Legal Description: POTTAWATOMIE TOWNSHIP PT NW4 SEC 9 11N 1E BEG 330.55FT E OF SW/C SE4 NW4 TH E330.55FT N658.69FT W330.32FT S658.69FT TO BEG EX N25FT FOR RD |
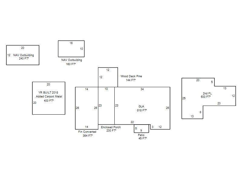
| Photo & Sketch (if available) | Comp Sales (ordered by relevancy) |
|
||||||||||||||||||
|
||||||||||||||||||||
| Value History (*The County Treasurer 405-713-1300 posts & collects actual tax amounts. Contact information HERE) | |||||||||||||
|---|---|---|---|---|---|---|---|---|---|---|---|---|---|
| Year | Market Value | Taxable Mkt Value | Gross Assessed | Exemption | Net Assessed | Millage | Est. Tax | Tax Savings | |||||
|
2025 |
326,000 |
192,865 |
21,214 |
1,000 |
20,214 |
117.21 |
$2,369 |
$1,834 |
|||||
|
2024 |
317,500 |
187,248 |
20,596 |
1,000 |
19,596 |
116.35 |
$2,280 |
$1,783 |
|||||
|
2023 |
296,500 |
181,795 |
19,997 |
1,000 |
18,997 |
117.10 |
$2,225 |
$1,595 |
|||||
|
2022 |
176,500 |
176,500 |
19,415 |
1,000 |
18,415 |
115.17 |
$2,121 |
$115 |
|||||
|
2021 |
176,500 |
176,500 |
19,415 |
1,000 |
18,415 |
115.06 |
$2,119 |
$115 |
|||||
| Property Account Status/Adjustments/Exemptions | ||
|---|---|---|
| Account # | Exemption Description | Amount |
|
R267092003 |
3% Cap Homestead |
0 |
|
R267092003 |
Homestead |
1,000 |
| Property Deed Transaction History (Recorded in the County Clerk's Office) | ||||||||||
|---|---|---|---|---|---|---|---|---|---|---|
| Date | Type | Book | Page | Price | Grantor | Grantee | ||||
|
3/23/2023 |
|
Deeds |
$0 |
IRBY NIKKI ANN |
MCCRAW NIKKI ANN & CODY W |
|||||
|
2/21/2019 |
|
Deeds |
$175,000 |
HUDLOW JACOB R |
IRBY NIKKI ANN |
|||||
|
6/30/2014 |
|
Deeds |
$167,500 |
PRATT BARBARA |
HUDLOW JACOB R |
|||||
|
4/29/2003 |
|
Deeds |
$110,000 |
RENICK SAMUEL R |
PRATT BARBARA |
|||||
|
8/4/1999 |
|
Deeds |
$0 |
RENICK DOROTHY CECLIA |
RENICK SAMUEL R |
|||||
| Last Mailed Notice of Value (N.O.V.) Information/History | ||||||||
|---|---|---|---|---|---|---|---|---|
| Year | Date | Market Value | Taxable Market Value | Gross Assessed | Exemption | Net Assessed | ||
|
2026 |
02/06/2026 |
305,500 |
198,650 |
21,851 |
1,000 |
20,851 |
||
|
2025 |
01/31/2025 |
326,000 |
192,865 |
21,214 |
1,000 |
20,214 |
||
|
2024 |
01/22/2024 |
317,500 |
187,248 |
20,596 |
1,000 |
19,596 |
||
|
2023 |
01/23/2023 |
296,500 |
181,795 |
19,997 |
1,000 |
18,997 |
||
|
2019 |
02/26/2019 |
191,000 |
191,000 |
21,010 |
0 |
21,010 |
||
| Property Building Permit History | |||||||||||
|---|---|---|---|---|---|---|---|---|---|---|---|
| Issued | Permit # | Provided by | Bldg # | Description | Est Construction Cost | Status | |||||
| No Building Permit records returned. | |||||||||||
| Click button on building number to access detailed information: | ||||||
|---|---|---|---|---|---|---|
| Bldg # | Vacant/Improved Land | Bldg Description | Year Built | SqFt | # Stories | |
|
1 |
Improved |
1½ Story Fin |
1985 |
1,418 |
1.5 Stories |
|