|
|
|
| Larry Stein Oklahoma County Assessor (405) 713-1200 - Public Access System |
|
|
|
|
|
|
| Real Property Display - Screen Produced 3/5/2026 1:52:05 PM | ||||
|---|---|---|---|---|
| Account: R026580650 | Type: Exempt | Location: |
1516 NE 16TH ST |
|
| Building Name/Occupant: |
1516 & 1518 |
OKLAHOMA CITY |
||
| Owner Name 1: | COMMUNITY ENHANCEMENT CORP |
Parcel PIN#: |
2702-02-658-0650 |
|
| Owner Name 2: | 1/4 section #: |
2702 |
||
| Owner Name 3: | Parent Acct: |
2702-02-658-0700 |
||
| Billing Address: | 420 W MAIN ST FL 10 | Tax District: |
|
|
| City, State, Zip | OKLAHOMA CITY, OK 73102-4437 | School System: |
Oklahoma City #89 |
|
|
Country: (If noted) |
Land Size: |
0.1722 Acres |
||
|
Land Value: 0 |
|
|||
|
Sect 26-T12N-R3W Qtr SE |
BATH HIGHLAND ADD
Block
002
Lot
000
|
|||
| Full Legal Description: BATH HIGHLAND ADD 002 000 LOTS 8 THRU 11 EX N25FT |
| No comparable sales report available. | ||||||||||||||||||||||
|
||||||||||||||||||||||
| Value History (*The County Treasurer 405-713-1300 posts & collects actual tax amounts. Contact information HERE) | |||||||||||||
|---|---|---|---|---|---|---|---|---|---|---|---|---|---|
| Year | Market Value | Taxable Mkt Value | Gross Assessed | Exemption | Net Assessed | Millage | Est. Tax | Tax Savings | |||||
|
2025 |
0 |
0 |
0 |
0 |
0 |
122.90 |
$0 |
$0 |
|||||
|
2024 |
0 |
0 |
0 |
0 |
0 |
123.89 |
$0 |
$0 |
|||||
|
2023 |
0 |
0 |
0 |
0 |
0 |
122.82 |
$0 |
$0 |
|||||
|
2022 |
0 |
0 |
0 |
0 |
0 |
117.63 |
$0 |
$0 |
|||||
|
2021 |
0 |
0 |
0 |
0 |
0 |
117.70 |
$0 |
$0 |
|||||
| Property Account Status/Adjustments/Exemptions | ||
|---|---|---|
| Account # | Exemption Description | Amount |
|
R026580650 |
988A |
0 |
|
R026580650 |
Exempt |
100 |
|
R026580650 |
5% Capped Account |
0 |
| Property Deed Transaction History (Recorded in the County Clerk's Office) | |||||||
|---|---|---|---|---|---|---|---|
| Date | Type | Book | Page | Price | Grantor | Grantee | |
|
8/21/2008 |
|
Other |
$0 |
OKLAHOMA CITY URBAN RENEWAL AUTHORITY |
COMMUNITY ENHANCEMENT CORP |
||
|
11/11/1911 |
|
Historical |
$0 |
|
OKLAHOMA CITY URBAN RENEWAL AUTHORITY |
||
| Last Mailed Notice of Value (N.O.V.) Information/History | ||||||||
|---|---|---|---|---|---|---|---|---|
| Year | Date | Market Value | Taxable Market Value | Gross Assessed | Exemption | Net Assessed | ||
| No Notice of Value N.O.V. records returned. | ||||||||
| Property Building Permit History | ||||||
|---|---|---|---|---|---|---|
| Issued | Permit # | Provided by | Bldg # | Description | Est Construction Cost | Status |
|
8/4/2013 |
10454275 |
OKLAHOMA CITY |
1 |
Burn - Trip |
5,000 |
Inactive |
|
9/8/2008 |
10360311 |
OKLAHOMA CITY |
1 |
Main Dwellin |
145,000 |
Inactive |
| Click button on building number to access detailed information: | ||||||
|---|---|---|---|---|---|---|
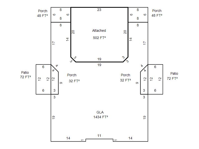
| Bldg # | Vacant/Improved Land | Bldg Description | Year Built | SqFt | # Stories | |
|
1 |
Improved |
Duplex One Story |
2008 |
1,434 |
1 Stories |
|