|
|
|
| Larry Stein Oklahoma County Assessor (405) 713-1200 - Public Access System |
|
|
|
|
|
|
| Real Property Display - Screen Produced 3/5/2026 1:52:01 PM | ||||
|---|---|---|---|---|
| Account: R026581550 | Type: Residential | Location: |
1514 NE 16TH TER |
|
| Building Name/Occupant: |
|
OKLAHOMA CITY |
||
| Owner Name 1: | FISHER ROGGIE LEE |
Parcel PIN#: |
2702-02-658-1550 |
|
| Owner Name 2: | FISHER EVA | 1/4 section #: |
2702 |
|
| Owner Name 3: | FISHER ALVIN | Parent Acct: |
|
|
| Billing Address: | 1514 NE 16TH TER | Tax District: |
|
|
| City, State, Zip | OKLAHOMA CITY, OK 73117-2626 | School System: |
Oklahoma City #89 |
|
|
Country: (If noted) |
Land Size: |
0.1435 Acres |
||
|
Land Value: 7,313 |
|
|||
|
Sect 26-T12N-R3W Qtr SE |
BATH HIGHLAND ADD
Block
005
Lot
000
|
|||
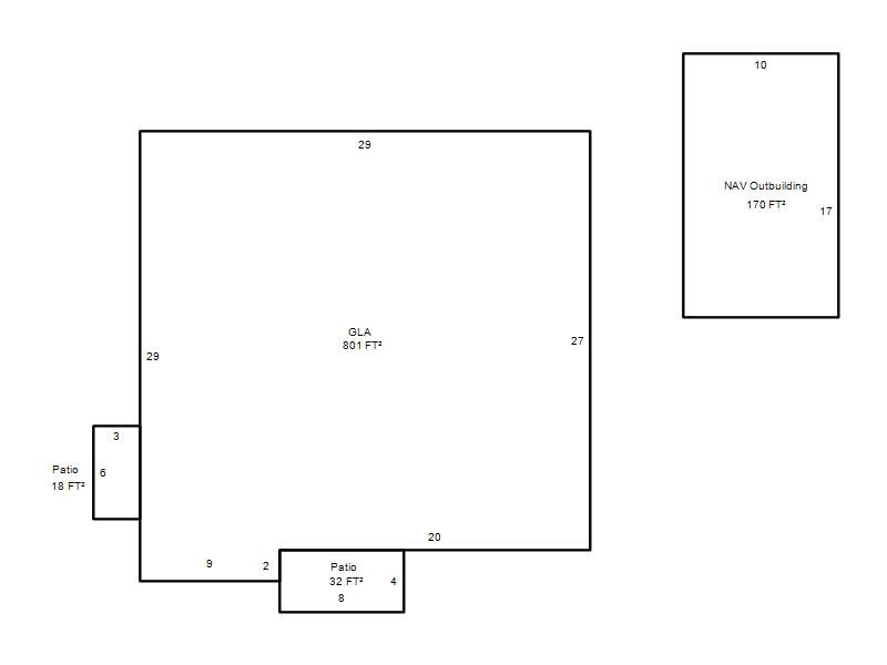
| Full Legal Description: BATH HIGHLAND ADD 005 000 LOTS 10 & 11 |
| Photo & Sketch (if available) | Comp Sales (ordered by relevancy) |
|
||||||||||||||||||
|
||||||||||||||||||||
| Value History (*The County Treasurer 405-713-1300 posts & collects actual tax amounts. Contact information HERE) | |||||||||||||
|---|---|---|---|---|---|---|---|---|---|---|---|---|---|
| Year | Market Value | Taxable Mkt Value | Gross Assessed | Exemption | Net Assessed | Millage | Est. Tax | Tax Savings | |||||
|
2025 |
66,000 |
11,602 |
1,276 |
1,000 |
276 |
122.90 |
$34 |
$858 |
|||||
|
2024 |
63,000 |
11,265 |
1,239 |
1,000 |
239 |
123.89 |
$30 |
$829 |
|||||
|
2023 |
51,500 |
10,937 |
1,203 |
1,000 |
203 |
122.82 |
$25 |
$671 |
|||||
|
2022 |
39,000 |
10,619 |
1,168 |
1,000 |
168 |
117.63 |
$20 |
$485 |
|||||
|
2021 |
31,500 |
10,310 |
1,134 |
1,000 |
134 |
117.70 |
$16 |
$392 |
|||||
| Property Account Status/Adjustments/Exemptions | ||
|---|---|---|
| Account # | Exemption Description | Amount |
|
R026581550 |
3% Cap Homestead |
0 |
|
R026581550 |
Homestead |
1,000 |
| Property Deed Transaction History (Recorded in the County Clerk's Office) | |||||||
|---|---|---|---|---|---|---|---|
| Date | Type | Book | Page | Price | Grantor | Grantee | |
|
9/18/2013 |
|
Deeds |
$0 |
FISHER ROGGIE LEE |
FISHER ROGGIE LEE |
||
|
8/27/2013 |
|
Deeds |
$0 |
FISHER MELVIN & ROGGIE L |
FISHER ROGGIE LEE |
||
|
11/11/1911 |
|
Historical |
$0 |
|
FISHER MELVIN & ROGGIE L |
||
| Last Mailed Notice of Value (N.O.V.) Information/History | ||||||||
|---|---|---|---|---|---|---|---|---|
| Year | Date | Market Value | Taxable Market Value | Gross Assessed | Exemption | Net Assessed | ||
|
2026 |
02/23/2026 |
69,000 |
11,950 |
1,314 |
1,000 |
314 |
||
|
2025 |
02/14/2025 |
66,000 |
11,602 |
1,276 |
1,000 |
276 |
||
|
2024 |
02/13/2024 |
63,000 |
11,265 |
1,239 |
1,000 |
239 |
||
|
2023 |
02/14/2023 |
51,500 |
10,937 |
1,203 |
1,000 |
203 |
||
|
2022 |
03/15/2022 |
39,000 |
10,619 |
1,168 |
1,000 |
168 |
||
| Property Building Permit History | |||||||||||
|---|---|---|---|---|---|---|---|---|---|---|---|
| Issued | Permit # | Provided by | Bldg # | Description | Est Construction Cost | Status | |||||
| No Building Permit records returned. | |||||||||||
| Click button on building number to access detailed information: | ||||||
|---|---|---|---|---|---|---|
| Bldg # | Vacant/Improved Land | Bldg Description | Year Built | SqFt | # Stories | |
|
1 |
Improved |
Ranch 1 Story |
1947 |
801 |
1 Stories |
|