|
|
|
| Larry Stein Oklahoma County Assessor (405) 713-1200 - Public Access System |
|
|
|
|
|
|
| Real Property Display - Screen Produced 3/5/2026 1:49:22 PM | ||||
|---|---|---|---|---|
| Account: R026581575 | Type: Residential | Location: |
1508 NE 16TH TER |
|
| Building Name/Occupant: |
|
OKLAHOMA CITY |
||
| Owner Name 1: | MCFADDEN SHAUN & GINA J |
Parcel PIN#: |
2702-02-658-1575 |
|
| Owner Name 2: | 1/4 section #: |
2702 |
||
| Owner Name 3: | Parent Acct: |
|
||
| Billing Address: | 11913 SKYWAY AVE | Tax District: |
|
|
| City, State, Zip | OKLAHOMA CITY, OK 73162-1046 | School System: |
Oklahoma City #89 |
|
|
Country: (If noted) |
Land Size: |
0.1435 Acres |
||
|
Land Value: 7,313 |
|
|||
|
Sect 26-T12N-R3W Qtr SE |
BATH HIGHLAND ADD
Block
005
Lot
000
|
|||
| Full Legal Description: BATH HIGHLAND ADD 005 000 LOTS 12 & 13 |
| Photo & Sketch (if available) | Comp Sales (ordered by relevancy) |
|
||||||||||||||||||
|
||||||||||||||||||||
| Value History (*The County Treasurer 405-713-1300 posts & collects actual tax amounts. Contact information HERE) | |||||||||||||
|---|---|---|---|---|---|---|---|---|---|---|---|---|---|
| Year | Market Value | Taxable Mkt Value | Gross Assessed | Exemption | Net Assessed | Millage | Est. Tax | Tax Savings | |||||
|
2025 |
116,000 |
30,946 |
3,404 |
0 |
3,404 |
122.90 |
$418 |
$1,150 |
|||||
|
2024 |
111,500 |
29,473 |
3,241 |
0 |
3,241 |
123.89 |
$402 |
$1,118 |
|||||
|
2023 |
90,500 |
28,070 |
3,087 |
0 |
3,087 |
122.82 |
$379 |
$843 |
|||||
|
2022 |
71,000 |
26,734 |
2,940 |
0 |
2,940 |
117.63 |
$346 |
$573 |
|||||
|
2021 |
58,500 |
25,461 |
2,800 |
0 |
2,800 |
117.70 |
$330 |
$428 |
|||||
| Property Account Status/Adjustments/Exemptions | ||
|---|---|---|
| Account # | Exemption Description | Amount |
|
R026581575 |
5% Capped Account |
0 |
| Property Deed Transaction History (Recorded in the County Clerk's Office) | |||||||
|---|---|---|---|---|---|---|---|
| Date | Type | Book | Page | Price | Grantor | Grantee | |
|
7/14/2004 |
|
Deeds |
$0 |
MCFADDEN SHAUN |
MCFADDEN SHAUN & GINA J |
||
|
1/12/2003 |
|
Deeds |
$0 |
MCFADDEN EARNESTINE MCFADDEN SHAUN |
MCFADDEN SHAUN |
||
|
6/20/1994 |
|
Deeds |
$0 |
TERRELL REGINGER MCFADDEN EARNESTINE |
MCFADDEN EARNESTINE MCFADDEN SHAUN |
||
|
11/19/1993 |
|
Deeds |
$0 |
TERRELL THEODORE & REGINGER |
TERRELL REGINGER MCFADDEN EARNESTINE |
||
|
11/11/1911 |
|
Historical |
$0 |
|
TERRELL THEODORE & REGINGER |
||
| Last Mailed Notice of Value (N.O.V.) Information/History | ||||||||
|---|---|---|---|---|---|---|---|---|
| Year | Date | Market Value | Taxable Market Value | Gross Assessed | Exemption | Net Assessed | ||
|
2026 |
02/23/2026 |
114,000 |
32,493 |
3,574 |
0 |
3,574 |
||
|
2025 |
02/14/2025 |
116,000 |
30,946 |
3,404 |
0 |
3,404 |
||
|
2024 |
02/13/2024 |
111,500 |
29,473 |
3,241 |
0 |
3,241 |
||
|
2023 |
02/14/2023 |
90,500 |
28,070 |
3,087 |
0 |
3,087 |
||
|
2022 |
03/15/2022 |
71,000 |
26,734 |
2,940 |
0 |
2,940 |
||
| Property Building Permit History | |||||||||||
|---|---|---|---|---|---|---|---|---|---|---|---|
| Issued | Permit # | Provided by | Bldg # | Description | Est Construction Cost | Status | |||||
| No Building Permit records returned. | |||||||||||
| Click button on building number to access detailed information: | ||||||
|---|---|---|---|---|---|---|
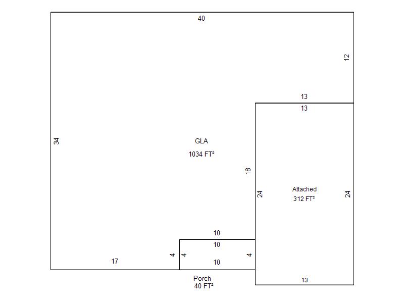
| Bldg # | Vacant/Improved Land | Bldg Description | Year Built | SqFt | # Stories | |
|
1 |
Improved |
Ranch 1 Story |
1970 |
1,034 |
1 Stories |
|