|
|
|
| Larry Stein Oklahoma County Assessor (405) 713-1200 - Public Access System |
|
|
|
|
|
|
| Real Property Display - Screen Produced 3/5/2026 1:51:23 PM | ||||
|---|---|---|---|---|
| Account: R026581900 | Type: Residential | Location: |
1517 NE 15TH ST |
|
| Building Name/Occupant: |
|
OKLAHOMA CITY |
||
| Owner Name 1: | TOLIVER JOWAYNE L |
Parcel PIN#: |
2702-02-658-1900 |
|
| Owner Name 2: | 1/4 section #: |
2702 |
||
| Owner Name 3: | Parent Acct: |
|
||
| Billing Address: | 1517 NE 15TH ST | Tax District: |
|
|
| City, State, Zip | OKLAHOMA CITY, OK 73117-2621 | School System: |
Oklahoma City #89 |
|
|
Country: (If noted) |
Land Size: |
0.1435 Acres |
||
|
Land Value: 7,313 |
|
|||
|
Sect 26-T12N-R3W Qtr SE |
BATH HIGHLAND ADD
Block
005
Lot
000
|
|||
| Full Legal Description: BATH HIGHLAND ADD 005 000 LOTS 26 & 27 |
| Photo & Sketch (if available) | Comp Sales (ordered by relevancy) |
|
||||||||||||||||||
|
||||||||||||||||||||
| Value History (*The County Treasurer 405-713-1300 posts & collects actual tax amounts. Contact information HERE) | |||||||||||||
|---|---|---|---|---|---|---|---|---|---|---|---|---|---|
| Year | Market Value | Taxable Mkt Value | Gross Assessed | Exemption | Net Assessed | Millage | Est. Tax | Tax Savings | |||||
|
2025 |
63,000 |
10,287 |
1,130 |
1,000 |
130 |
122.90 |
$16 |
$836 |
|||||
|
2024 |
60,000 |
9,988 |
1,097 |
1,000 |
97 |
123.89 |
$12 |
$805 |
|||||
|
2023 |
49,000 |
9,698 |
1,066 |
1,000 |
66 |
122.82 |
$8 |
$654 |
|||||
|
2022 |
36,500 |
9,416 |
1,035 |
1,000 |
35 |
117.63 |
$4 |
$468 |
|||||
|
2021 |
30,000 |
9,142 |
1,005 |
1,000 |
5 |
117.70 |
$1 |
$388 |
|||||
| Property Account Status/Adjustments/Exemptions | ||
|---|---|---|
| Account # | Exemption Description | Amount |
|
R026581900 |
3% Cap Homestead |
0 |
|
R026581900 |
Homestead |
1,000 |
| Property Deed Transaction History (Recorded in the County Clerk's Office) | |||||||
|---|---|---|---|---|---|---|---|
| Date | Type | Book | Page | Price | Grantor | Grantee | |
|
2/29/2008 |
|
Deeds |
$0 |
TOLIVER JOWAYNE L TOLIVER SONJA L |
TOLIVER JOWAYNE L |
||
|
12/14/1992 |
|
Historical |
$3,000 |
HAZLEY ORVILLE C SR & BEATRICE |
TOLIVER JOWAYNE L |
||
|
9/1/1979 |
|
Historical |
$0 |
|
HAZLEY ORVILLE C SR & BEATRICE |
||
| Last Mailed Notice of Value (N.O.V.) Information/History | ||||||||
|---|---|---|---|---|---|---|---|---|
| Year | Date | Market Value | Taxable Market Value | Gross Assessed | Exemption | Net Assessed | ||
|
2026 |
02/23/2026 |
66,000 |
10,595 |
1,164 |
1,000 |
164 |
||
|
2025 |
02/14/2025 |
63,000 |
10,287 |
1,130 |
1,000 |
130 |
||
|
2024 |
02/13/2024 |
60,000 |
9,988 |
1,097 |
1,000 |
97 |
||
|
2023 |
02/14/2023 |
49,000 |
9,698 |
1,066 |
1,000 |
66 |
||
|
2022 |
03/15/2022 |
36,500 |
9,416 |
1,035 |
1,000 |
35 |
||
| Property Building Permit History | |||||||||||
|---|---|---|---|---|---|---|---|---|---|---|---|
| Issued | Permit # | Provided by | Bldg # | Description | Est Construction Cost | Status | |||||
| No Building Permit records returned. | |||||||||||
| Click button on building number to access detailed information: | ||||||
|---|---|---|---|---|---|---|
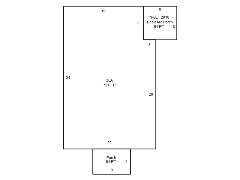
| Bldg # | Vacant/Improved Land | Bldg Description | Year Built | SqFt | # Stories | |
|
1 |
Improved |
Ranch 1 Story |
1930 |
724 |
1 Stories |
|