|
|
|
| Larry Stein Oklahoma County Assessor (405) 713-1200 - Public Access System |
|
|
|
|
|
|
| Real Property Display - Screen Produced 3/5/2026 1:48:46 PM | ||||
|---|---|---|---|---|
| Account: R026582730 | Type: Residential | Location: |
1613 NE 15TH ST |
|
| Building Name/Occupant: |
|
OKLAHOMA CITY |
||
| Owner Name 1: | TYSON EDWARD JENNINGS |
Parcel PIN#: |
2702-02-658-2730 |
|
| Owner Name 2: | 1/4 section #: |
2702 |
||
| Owner Name 3: | Parent Acct: |
|
||
| Billing Address: | 1613 NE 15TH ST | Tax District: |
|
|
| City, State, Zip | OKLAHOMA CITY, OK 73117 | School System: |
Oklahoma City #89 |
|
|
Country: (If noted) |
Land Size: |
0.1435 Acres |
||
|
Land Value: 7,313 |
|
|||
|
Sect 26-T12N-R3W Qtr SE |
BATH HIGHLAND ADD
Block
006
Lot
000
|
|||
| Full Legal Description: BATH HIGHLAND ADD 006 000 LOTS 25 & 26 |
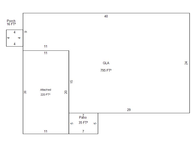
| Photo & Sketch (if available) | Comp Sales (ordered by relevancy) |
|
||||||||||||||||||
|
||||||||||||||||||||
| Value History (*The County Treasurer 405-713-1300 posts & collects actual tax amounts. Contact information HERE) | |||||||||||||
|---|---|---|---|---|---|---|---|---|---|---|---|---|---|
| Year | Market Value | Taxable Mkt Value | Gross Assessed | Exemption | Net Assessed | Millage | Est. Tax | Tax Savings | |||||
|
2025 |
67,500 |
15,033 |
1,653 |
1,000 |
653 |
122.90 |
$80 |
$832 |
|||||
|
2024 |
64,500 |
14,596 |
1,604 |
1,000 |
604 |
123.89 |
$75 |
$804 |
|||||
|
2023 |
53,000 |
14,171 |
1,558 |
1,000 |
558 |
122.82 |
$69 |
$647 |
|||||
|
2022 |
39,500 |
13,759 |
1,512 |
1,000 |
512 |
117.63 |
$60 |
$451 |
|||||
|
2021 |
32,500 |
13,359 |
1,468 |
1,000 |
468 |
117.70 |
$55 |
$366 |
|||||
| Property Account Status/Adjustments/Exemptions | ||
|---|---|---|
| Account # | Exemption Description | Amount |
|
R026582730 |
Homestead |
1,000 |
|
R026582730 |
3% Cap Homestead |
0 |
| Property Deed Transaction History (Recorded in the County Clerk's Office) | |||||||
|---|---|---|---|---|---|---|---|
| Date | Type | Book | Page | Price | Grantor | Grantee | |
|
2/28/2024 |
|
Deeds |
$0 |
TYSON NELLIE V EST |
TYSON EDWARD JENNINGS |
||
|
12/20/2005 |
|
Hmstd Off & |
$0 |
TYSON NELLIE V |
TYSON EDWARD |
||
|
4/28/1970 |
|
Historical |
$0 |
TYSON NELLIE V |
TYSON NELLIE V |
||
|
11/11/1911 |
|
Historical |
$0 |
|
TYSON NELLIE V |
||
| Last Mailed Notice of Value (N.O.V.) Information/History | ||||||||
|---|---|---|---|---|---|---|---|---|
| Year | Date | Market Value | Taxable Market Value | Gross Assessed | Exemption | Net Assessed | ||
|
2026 |
02/23/2026 |
70,500 |
15,483 |
1,702 |
1,000 |
702 |
||
|
2025 |
02/14/2025 |
67,500 |
15,033 |
1,653 |
1,000 |
653 |
||
|
2024 |
02/13/2024 |
64,500 |
14,596 |
1,604 |
1,000 |
604 |
||
|
2023 |
02/14/2023 |
53,000 |
14,171 |
1,558 |
1,000 |
558 |
||
|
2022 |
03/15/2022 |
39,500 |
13,759 |
1,512 |
1,000 |
512 |
||
| Property Building Permit History | |||||||||||
|---|---|---|---|---|---|---|---|---|---|---|---|
| Issued | Permit # | Provided by | Bldg # | Description | Est Construction Cost | Status | |||||
| No Building Permit records returned. | |||||||||||
| Click button on building number to access detailed information: | ||||||
|---|---|---|---|---|---|---|
| Bldg # | Vacant/Improved Land | Bldg Description | Year Built | SqFt | # Stories | |
|
1 |
Improved |
Ranch 1 Story |
1949 |
795 |
1 Stories |
|