|
|
|
| Larry Stein Oklahoma County Assessor (405) 713-1200 - Public Access System |
|
|
|
|
|
|
| Real Property Display - Screen Produced 3/5/2026 1:51:24 PM | ||||
|---|---|---|---|---|
| Account: R026583150 | Type: Residential | Location: |
1620 NE 15TH ST |
|
| Building Name/Occupant: |
|
OKLAHOMA CITY |
||
| Owner Name 1: | THOMAS VIVIAN |
Parcel PIN#: |
2702-02-658-3150 |
|
| Owner Name 2: | 1/4 section #: |
2702 |
||
| Owner Name 3: | Parent Acct: |
|
||
| Billing Address: | 1620 NE 15TH ST | Tax District: |
|
|
| City, State, Zip | OKLAHOMA CITY, OK 73117-2624 | School System: |
Oklahoma City #89 |
|
|
Country: (If noted) |
Land Size: |
0.1435 Acres |
||
|
Land Value: 7,313 |
|
|||
|
Sect 26-T12N-R3W Qtr SE |
BATH HIGHLAND ADD
Block
007
Lot
000
|
|||
| Full Legal Description: BATH HIGHLAND ADD 007 000 LOTS 7 & 8 |
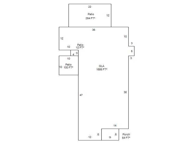
| Photo & Sketch (if available) | Comp Sales (ordered by relevancy) |
|
||||||||||||||||||
|
||||||||||||||||||||
| Value History (*The County Treasurer 405-713-1300 posts & collects actual tax amounts. Contact information HERE) | |||||||||||||
|---|---|---|---|---|---|---|---|---|---|---|---|---|---|
| Year | Market Value | Taxable Mkt Value | Gross Assessed | Exemption | Net Assessed | Millage | Est. Tax | Tax Savings | |||||
|
2025 |
99,500 |
38,955 |
4,285 |
0 |
4,285 |
122.90 |
$527 |
$819 |
|||||
|
2024 |
96,000 |
37,100 |
4,080 |
0 |
4,080 |
123.89 |
$506 |
$803 |
|||||
|
2023 |
78,500 |
35,334 |
3,886 |
0 |
3,886 |
122.82 |
$477 |
$583 |
|||||
|
2022 |
59,000 |
33,652 |
3,700 |
0 |
3,700 |
117.63 |
$435 |
$328 |
|||||
|
2021 |
48,000 |
32,050 |
3,524 |
0 |
3,524 |
117.70 |
$415 |
$207 |
|||||
| Property Account Status/Adjustments/Exemptions | ||
|---|---|---|
| Account # | Exemption Description | Amount |
|
R026583150 |
5% Capped Account |
0 |
| Property Deed Transaction History (Recorded in the County Clerk's Office) | ||||||||||
|---|---|---|---|---|---|---|---|---|---|---|
| Date | Type | Book | Page | Price | Grantor | Grantee | ||||
|
12/17/2013 |
|
Deeds |
$16,000 |
WALTER CAROLINE MARIE |
THOMAS VIVIAN |
|||||
|
2/21/2007 |
|
Deeds |
$0 |
SCOTT JUDITH KELSO SHAMEIKA |
SCOTT JUDITH |
|||||
|
2/21/2007 |
|
Deeds |
$16,000 |
SCOTT JUDITH |
WALTER CAROLINE MARIE |
|||||
|
10/4/2006 |
|
Deeds |
$0 |
SCOTT JUDITH SCOTT ARLENE BROWN |
SCOTT JUDITH KELSO SHAMEIKA |
|||||
|
12/2/1998 |
|
Historical |
$0 |
SCOTT KEISHA |
SCOTT JUDITH |
|||||
| Last Mailed Notice of Value (N.O.V.) Information/History | ||||||||
|---|---|---|---|---|---|---|---|---|
| Year | Date | Market Value | Taxable Market Value | Gross Assessed | Exemption | Net Assessed | ||
|
2026 |
02/23/2026 |
104,000 |
40,902 |
4,499 |
0 |
4,499 |
||
|
2025 |
02/14/2025 |
99,500 |
38,955 |
4,285 |
0 |
4,285 |
||
|
2024 |
02/13/2024 |
96,000 |
37,100 |
4,080 |
0 |
4,080 |
||
|
2023 |
02/14/2023 |
78,500 |
35,334 |
3,886 |
0 |
3,886 |
||
|
2022 |
03/15/2022 |
59,000 |
33,652 |
3,700 |
0 |
3,700 |
||
| Property Building Permit History | |||||||||||
|---|---|---|---|---|---|---|---|---|---|---|---|
| Issued | Permit # | Provided by | Bldg # | Description | Est Construction Cost | Status | |||||
| No Building Permit records returned. | |||||||||||
| Click button on building number to access detailed information: | ||||||
|---|---|---|---|---|---|---|
| Bldg # | Vacant/Improved Land | Bldg Description | Year Built | SqFt | # Stories | |
|
1 |
Improved |
Ranch 1 Story |
1920 |
1,585 |
1 Stories |
|