|
|
|
| Larry Stein Oklahoma County Assessor (405) 713-1200 - Public Access System |
|
|
|
|
|
|
| Real Property Display - Screen Produced 3/5/2026 1:54:19 PM | ||||
|---|---|---|---|---|
| Account: R026584500 | Type: Residential | Location: |
1513 NE 14TH ST |
|
| Building Name/Occupant: |
|
OKLAHOMA CITY |
||
| Owner Name 1: | WEBSTER LATONYA R ETAL |
Parcel PIN#: |
2702-02-658-4500 |
|
| Owner Name 2: | WEBSTER ANTOINE L | 1/4 section #: |
2702 |
|
| Owner Name 3: | WEBSTER MAURICE D | Parent Acct: |
|
|
| Billing Address: | 825 NE 35TH ST | Tax District: |
|
|
| City, State, Zip | OKLAHOMA CITY, OK 73105 | School System: |
Oklahoma City #89 |
|
|
Country: (If noted) |
Land Size: |
0.1492 Acres |
||
|
Land Value: 7,605 |
|
|||
|
Sect 26-T12N-R3W Qtr SE |
BATH HIGHLAND ADD
Block
008
Lot
000
|
|||
| Full Legal Description: BATH HIGHLAND ADD 008 000 LOTS 24 & 25 |
| Photo & Sketch (if available) | Comp Sales (ordered by relevancy) |
|
||||||||||||||||||
|
||||||||||||||||||||
| Value History (*The County Treasurer 405-713-1300 posts & collects actual tax amounts. Contact information HERE) | |||||||||||||
|---|---|---|---|---|---|---|---|---|---|---|---|---|---|
| Year | Market Value | Taxable Mkt Value | Gross Assessed | Exemption | Net Assessed | Millage | Est. Tax | Tax Savings | |||||
|
2025 |
94,500 |
33,513 |
3,685 |
0 |
3,685 |
122.90 |
$453 |
$824 |
|||||
|
2024 |
88,000 |
31,918 |
3,510 |
0 |
3,510 |
123.89 |
$435 |
$764 |
|||||
|
2023 |
71,000 |
30,399 |
3,343 |
0 |
3,343 |
122.82 |
$411 |
$549 |
|||||
|
2022 |
53,500 |
28,952 |
3,183 |
0 |
3,183 |
117.63 |
$375 |
$318 |
|||||
|
2021 |
43,500 |
27,574 |
3,032 |
0 |
3,032 |
117.70 |
$357 |
$206 |
|||||
| Property Account Status/Adjustments/Exemptions | ||
|---|---|---|
| Account # | Exemption Description | Amount |
|
R026584500 |
5% Capped Account |
0 |
| Property Deed Transaction History (Recorded in the County Clerk's Office) | ||||||||||
|---|---|---|---|---|---|---|---|---|---|---|
| Date | Type | Book | Page | Price | Grantor | Grantee | ||||
|
1/14/2011 |
|
Hmstd Off & |
$0 |
WEBSTER YVETTA Y |
WEBSTER LATONYA R ETAL |
|||||
|
2/14/2006 |
|
Hmstd Off & |
$0 |
NEWTON MARCUS D |
WEBSTER YVETTA Y |
|||||
|
8/17/2004 |
|
Deeds |
$15,000 |
ADLER BERNARD M |
NEWTON MARCUS D |
|||||
|
8/8/2004 |
|
Deeds |
$0 |
ADLER BERNARD F ADLER MARTHA E |
ADLER BERNARD M |
|||||
|
12/23/2003 |
|
Deeds |
$13,500 |
IRBY VIVIAN |
ADLER BERNARD F ADLER MARTHA E |
|||||
| Last Mailed Notice of Value (N.O.V.) Information/History | ||||||||
|---|---|---|---|---|---|---|---|---|
| Year | Date | Market Value | Taxable Market Value | Gross Assessed | Exemption | Net Assessed | ||
|
2026 |
02/23/2026 |
97,000 |
35,188 |
3,870 |
0 |
3,870 |
||
|
2025 |
02/14/2025 |
94,500 |
33,513 |
3,685 |
0 |
3,685 |
||
|
2024 |
02/13/2024 |
88,000 |
31,918 |
3,510 |
0 |
3,510 |
||
|
2023 |
02/14/2023 |
71,000 |
30,399 |
3,343 |
0 |
3,343 |
||
|
2022 |
03/15/2022 |
53,500 |
28,952 |
3,183 |
0 |
3,183 |
||
| Property Building Permit History | ||||||
|---|---|---|---|---|---|---|
| Issued | Permit # | Provided by | Bldg # | Description | Est Construction Cost | Status |
|
7/23/2003 |
10281212 |
OKLAHOMA CITY |
1 |
Main Dwellin |
0 |
Inactive |
| Click button on building number to access detailed information: | ||||||
|---|---|---|---|---|---|---|
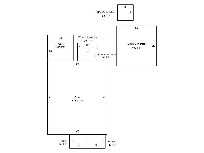
| Bldg # | Vacant/Improved Land | Bldg Description | Year Built | SqFt | # Stories | |
|
1 |
Improved |
Ranch 1 Story |
1927 |
1,279 |
1 Stories |
|