|
|
|
| Larry Stein Oklahoma County Assessor (405) 713-1200 - Public Access System |
|
|
|
|
|
|
| Real Property Display - Screen Produced 3/5/2026 1:48:47 PM | ||||
|---|---|---|---|---|
| Account: R026585800 | Type: Residential | Location: |
1504 NE 14TH ST |
|
| Building Name/Occupant: |
|
OKLAHOMA CITY |
||
| Owner Name 1: | SARABIA JOSE |
Parcel PIN#: |
2702-02-658-5800 |
|
| Owner Name 2: | 1/4 section #: |
2702 |
||
| Owner Name 3: | Parent Acct: |
|
||
| Billing Address: | 1504 NE 14TH ST | Tax District: |
|
|
| City, State, Zip | OKLAHOMA CITY, OK 73117-2618 | School System: |
Oklahoma City #89 |
|
|
Country: (If noted) |
Land Size: |
0.1015 Acres |
||
|
Land Value: 5,171 |
|
|||
|
Sect 26-T12N-R3W Qtr SE |
BATH HIGHLAND ADD
Block
011
Lot
016
|
|||
| Full Legal Description: BATH HIGHLAND ADD 011 016 |
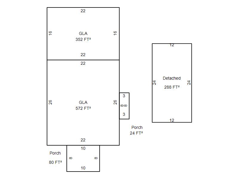
| Photo & Sketch (if available) | Comp Sales (ordered by relevancy) |
|
||||||||||||||||||
|
||||||||||||||||||||
| Value History (*The County Treasurer 405-713-1300 posts & collects actual tax amounts. Contact information HERE) | |||||||||||||
|---|---|---|---|---|---|---|---|---|---|---|---|---|---|
| Year | Market Value | Taxable Mkt Value | Gross Assessed | Exemption | Net Assessed | Millage | Est. Tax | Tax Savings | |||||
|
2025 |
74,000 |
28,207 |
3,102 |
0 |
3,102 |
122.90 |
$381 |
$619 |
|||||
|
2024 |
70,500 |
26,864 |
2,954 |
0 |
2,954 |
123.89 |
$366 |
$595 |
|||||
|
2023 |
57,500 |
25,585 |
2,814 |
0 |
2,814 |
122.82 |
$346 |
$431 |
|||||
|
2022 |
43,000 |
24,367 |
2,679 |
0 |
2,679 |
117.63 |
$315 |
$241 |
|||||
|
2021 |
35,500 |
23,207 |
2,552 |
0 |
2,552 |
117.70 |
$300 |
$159 |
|||||
| Property Account Status/Adjustments/Exemptions | ||
|---|---|---|
| Account # | Exemption Description | Amount |
|
R026585800 |
5% Capped Account |
0 |
| Property Deed Transaction History (Recorded in the County Clerk's Office) | |||||||
|---|---|---|---|---|---|---|---|
| Date | Type | Book | Page | Price | Grantor | Grantee | |
|
9/3/2013 |
|
Deeds |
$7,500 |
CUATRO PROPERTIES LLC |
SARABIA JOSE |
||
|
7/19/2013 |
|
Deeds |
$2,000 |
TATE REECIE & R |
CUATRO PROPERTIES LLC |
||
|
11/11/1911 |
|
Historical |
$0 |
|
TATE REECIE & R |
||
| Last Mailed Notice of Value (N.O.V.) Information/History | ||||||||
|---|---|---|---|---|---|---|---|---|
| Year | Date | Market Value | Taxable Market Value | Gross Assessed | Exemption | Net Assessed | ||
|
2026 |
02/23/2026 |
77,500 |
29,617 |
3,257 |
0 |
3,257 |
||
|
2025 |
02/14/2025 |
74,000 |
28,207 |
3,102 |
0 |
3,102 |
||
|
2024 |
02/13/2024 |
70,500 |
26,864 |
2,954 |
0 |
2,954 |
||
|
2023 |
02/14/2023 |
57,500 |
25,585 |
2,814 |
0 |
2,814 |
||
|
2022 |
03/15/2022 |
43,000 |
24,367 |
2,679 |
0 |
2,679 |
||
| Property Building Permit History | |||||||||||
|---|---|---|---|---|---|---|---|---|---|---|---|
| Issued | Permit # | Provided by | Bldg # | Description | Est Construction Cost | Status | |||||
| No Building Permit records returned. | |||||||||||
| Click button on building number to access detailed information: | ||||||
|---|---|---|---|---|---|---|
| Bldg # | Vacant/Improved Land | Bldg Description | Year Built | SqFt | # Stories | |
|
1 |
Improved |
Ranch 1 Story |
1927 |
924 |
1 Stories |
|