|
|
|
| Larry Stein Oklahoma County Assessor (405) 713-1200 - Public Access System |
|
|
|
|
|
|
| Real Property Display - Screen Produced 3/5/2026 1:52:00 PM | ||||
|---|---|---|---|---|
| Account: R026586150 | Type: Residential | Location: |
1521 NE 13TH ST |
|
| Building Name/Occupant: |
|
OKLAHOMA CITY |
||
| Owner Name 1: | ILLINI INVESTMENTS LLC |
Parcel PIN#: |
2702-02-658-6150 |
|
| Owner Name 2: | 1/4 section #: |
2702 |
||
| Owner Name 3: | Parent Acct: |
|
||
| Billing Address: | 2600 W WILSHIRE BLVD | Tax District: |
|
|
| City, State, Zip | OKLAHOMA CITY, OK 73116 | School System: |
Oklahoma City #89 |
|
|
Country: (If noted) |
Land Size: |
0.1492 Acres |
||
|
Land Value: 7,605 |
|
|||
|
Sect 26-T12N-R3W Qtr SE |
BATH HIGHLAND ADD
Block
011
Lot
000
|
|||
| Full Legal Description: BATH HIGHLAND ADD 011 000 LOTS 28 & 29 |
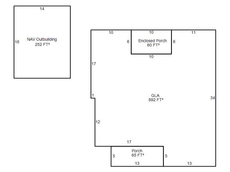
| Photo & Sketch (if available) | Comp Sales (ordered by relevancy) |
|
||||||||||||||||||
|
||||||||||||||||||||
| Value History (*The County Treasurer 405-713-1300 posts & collects actual tax amounts. Contact information HERE) | |||||||||||||
|---|---|---|---|---|---|---|---|---|---|---|---|---|---|
| Year | Market Value | Taxable Mkt Value | Gross Assessed | Exemption | Net Assessed | Millage | Est. Tax | Tax Savings | |||||
|
2025 |
73,500 |
63,393 |
6,973 |
0 |
6,973 |
122.90 |
$857 |
$137 |
|||||
|
2024 |
70,000 |
60,375 |
6,641 |
0 |
6,641 |
123.89 |
$823 |
$131 |
|||||
|
2023 |
57,500 |
57,500 |
6,325 |
0 |
6,325 |
122.82 |
$777 |
$0 |
|||||
|
2022 |
43,500 |
30,630 |
3,368 |
0 |
3,368 |
117.63 |
$396 |
$167 |
|||||
|
2021 |
35,000 |
29,172 |
3,208 |
0 |
3,208 |
117.70 |
$378 |
$75 |
|||||
| Property Account Status/Adjustments/Exemptions | ||
|---|---|---|
| Account # | Exemption Description | Amount |
|
R026586150 |
5% Capped Account |
0 |
| Property Deed Transaction History (Recorded in the County Clerk's Office) | |||||||
|---|---|---|---|---|---|---|---|
| Date | Type | Book | Page | Price | Grantor | Grantee | |
|
8/24/2022 |
|
Deeds |
$38,000 |
AGNEW REX LYNN |
ILLINI INVESTMENTS LLC |
||
|
12/9/2015 |
|
Deeds |
$16,500 |
PULLEN KEITH A & MARDINA M |
AGNEW REX LYNN |
||
|
2/11/1992 |
|
Historical |
$2,500 |
SECRETARY OF HOUSING |
PULLEN KEITH A & MARDINA M |
||
|
10/23/1991 |
|
Historical |
$0 |
ROBINSON ANDREW L & ANNA R |
SECRETARY OF HOUSING |
||
|
7/1/1982 |
|
Historical |
$0 |
|
ROBINSON ANDREW L & ANNA R |
||
| Last Mailed Notice of Value (N.O.V.) Information/History | ||||||||
|---|---|---|---|---|---|---|---|---|
| Year | Date | Market Value | Taxable Market Value | Gross Assessed | Exemption | Net Assessed | ||
|
2026 |
02/23/2026 |
75,500 |
66,562 |
7,321 |
0 |
7,321 |
||
|
2025 |
02/14/2025 |
73,500 |
63,393 |
6,973 |
0 |
6,973 |
||
|
2024 |
02/13/2024 |
70,000 |
60,375 |
6,641 |
0 |
6,641 |
||
|
2023 |
02/14/2023 |
57,500 |
57,500 |
6,325 |
0 |
6,325 |
||
|
2022 |
03/15/2022 |
43,500 |
30,630 |
3,368 |
0 |
3,368 |
||
| Property Building Permit History | ||||||
|---|---|---|---|---|---|---|
| Issued | Permit # | Provided by | Bldg # | Description | Est Construction Cost | Status |
|
6/7/2011 |
10433111 |
OKLAHOMA CITY |
1 |
Fire Remodel |
3,000 |
Inactive |
|
3/13/2000 |
10188420 |
OKLAHOMA CITY |
1 |
Burn - Trip |
15,000 |
Inactive |
|
4/20/1992 |
10188419 |
OKLAHOMA CITY |
1 |
Demolish |
0 |
Inactive |
| Click button on building number to access detailed information: | ||||||
|---|---|---|---|---|---|---|
| Bldg # | Vacant/Improved Land | Bldg Description | Year Built | SqFt | # Stories | |
|
1 |
Improved |
Ranch 1 Story |
1930 |
892 |
1 Stories |
|