|
|
|
| Larry Stein Oklahoma County Assessor (405) 713-1200 - Public Access System |
|
|
|
|
|
|
| Real Property Display - Screen Produced 3/5/2026 12:46:38 PM | ||||
|---|---|---|---|---|
| Account: R027004080 | Type: Residential | Location: |
1622 NE EUCLID ST |
|
| Building Name/Occupant: |
|
OKLAHOMA CITY |
||
| Owner Name 1: | HOLLOWAY BETTYE L WILLIAMS |
Parcel PIN#: |
2702-02-700-4080 |
|
| Owner Name 2: | 1/4 section #: |
2702 |
||
| Owner Name 3: | Parent Acct: |
|
||
| Billing Address: | 1622 NE EUCLID ST | Tax District: |
|
|
| City, State, Zip | OKLAHOMA CITY, OK 73117-2642 | School System: |
Oklahoma City #89 |
|
|
Country: (If noted) |
Land Size: |
0.2410 Acres |
||
|
Land Value: 18,375 |
|
|||
|
Sect 26-T12N-R3W Qtr SE |
BATH ORCHARD ADD
Block
006
Lot
000
|
|||
| Full Legal Description: BATH ORCHARD ADD 006 000 LOTS 7 THRU 9 |
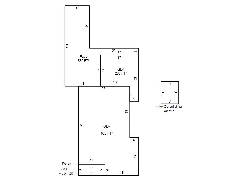
| Photo & Sketch (if available) | Comp Sales (ordered by relevancy) |
|
||||||||||||||||||
|
||||||||||||||||||||
| Value History (*The County Treasurer 405-713-1300 posts & collects actual tax amounts. Contact information HERE) | |||||||||||||
|---|---|---|---|---|---|---|---|---|---|---|---|---|---|
| Year | Market Value | Taxable Mkt Value | Gross Assessed | Exemption | Net Assessed | Millage | Est. Tax | Tax Savings | |||||
|
2025 |
91,000 |
24,881 |
2,736 |
0 |
2,736 |
122.90 |
$336 |
$894 |
|||||
|
2024 |
85,000 |
23,697 |
2,606 |
0 |
2,606 |
123.89 |
$323 |
$835 |
|||||
|
2023 |
70,000 |
22,569 |
2,482 |
0 |
2,482 |
122.82 |
$305 |
$641 |
|||||
|
2022 |
53,000 |
21,495 |
2,363 |
0 |
2,363 |
117.63 |
$278 |
$408 |
|||||
|
2021 |
43,000 |
20,472 |
2,251 |
0 |
2,251 |
117.70 |
$265 |
$292 |
|||||
| Property Account Status/Adjustments/Exemptions | ||
|---|---|---|
| Account # | Exemption Description | Amount |
|
R027004080 |
5% Capped Account |
0 |
| Property Deed Transaction History (Recorded in the County Clerk's Office) | |||||||
|---|---|---|---|---|---|---|---|
| Date | Type | Book | Page | Price | Grantor | Grantee | |
|
10/1/1980 |
|
Historical |
$0 |
|
HOLLOWAY BETTYE L WILLIAMS |
||
| Last Mailed Notice of Value (N.O.V.) Information/History | ||||||||
|---|---|---|---|---|---|---|---|---|
| Year | Date | Market Value | Taxable Market Value | Gross Assessed | Exemption | Net Assessed | ||
|
2026 |
02/23/2026 |
94,000 |
26,125 |
2,872 |
0 |
2,872 |
||
|
2025 |
02/14/2025 |
91,000 |
24,881 |
2,736 |
0 |
2,736 |
||
|
2024 |
02/13/2024 |
85,000 |
23,697 |
2,606 |
0 |
2,606 |
||
|
2023 |
02/14/2023 |
70,000 |
22,569 |
2,482 |
0 |
2,482 |
||
|
2022 |
03/15/2022 |
53,000 |
21,495 |
2,363 |
0 |
2,363 |
||
| Property Building Permit History | ||||||
|---|---|---|---|---|---|---|
| Issued | Permit # | Provided by | Bldg # | Description | Est Construction Cost | Status |
|
3/11/2015 |
10473081 |
OKLAHOMA CITY |
1 |
Remodeled |
1,800 |
Inactive |
| Click button on building number to access detailed information: | ||||||
|---|---|---|---|---|---|---|
| Bldg # | Vacant/Improved Land | Bldg Description | Year Built | SqFt | # Stories | |
|
1 |
Improved |
Ranch 1 Story |
1936 |
1,194 |
1 Stories |
|