|
|
|
| Larry Stein Oklahoma County Assessor (405) 713-1200 - Public Access System |
|
|
|
|
|
|
| Real Property Display - Screen Produced 3/5/2026 7:18:25 PM | ||||
|---|---|---|---|---|
| Account: R027280600 | Type: Residential | Location: |
1316 N WISCONSIN AVE |
|
| Building Name/Occupant: |
|
OKLAHOMA CITY |
||
| Owner Name 1: | HUNTER BARBARA |
Parcel PIN#: |
2702-02-728-0600 |
|
| Owner Name 2: | 1/4 section #: |
2702 |
||
| Owner Name 3: | Parent Acct: |
|
||
| Billing Address: | 2421 NE 26TH ST | Tax District: |
|
|
| City, State, Zip | OKLAHOMA CITY, OK 73111-3505 | School System: |
Oklahoma City #89 |
|
|
Country: (If noted) |
Land Size: |
0.1492 Acres |
||
|
Land Value: 5,980 |
|
|||
|
Sect 26-T12N-R3W Qtr SE |
WEAVERS 2ND ADDITION
Block
001
Lot
000
|
|||
| Full Legal Description: WEAVERS 2ND ADDITION 001 000 LOTS 5 & 6 |
| Photo & Sketch (if available) | Comp Sales (ordered by relevancy) |
|
||||||||||||||||||
|
||||||||||||||||||||
| Value History (*The County Treasurer 405-713-1300 posts & collects actual tax amounts. Contact information HERE) | |||||||||||||
|---|---|---|---|---|---|---|---|---|---|---|---|---|---|
| Year | Market Value | Taxable Mkt Value | Gross Assessed | Exemption | Net Assessed | Millage | Est. Tax | Tax Savings | |||||
|
2025 |
67,000 |
13,575 |
1,493 |
0 |
1,493 |
122.90 |
$184 |
$722 |
|||||
|
2024 |
64,000 |
12,929 |
1,421 |
0 |
1,421 |
123.89 |
$176 |
$696 |
|||||
|
2023 |
52,000 |
12,314 |
1,354 |
0 |
1,354 |
122.82 |
$166 |
$536 |
|||||
|
2022 |
39,000 |
11,728 |
1,289 |
0 |
1,289 |
117.63 |
$152 |
$353 |
|||||
|
2021 |
32,000 |
11,170 |
1,228 |
0 |
1,228 |
117.70 |
$145 |
$270 |
|||||
| Property Account Status/Adjustments/Exemptions | ||
|---|---|---|
| Account # | Exemption Description | Amount |
|
R027280600 |
5% Capped Account |
0 |
| Property Deed Transaction History (Recorded in the County Clerk's Office) | |||||||
|---|---|---|---|---|---|---|---|
| Date | Type | Book | Page | Price | Grantor | Grantee | |
|
9/15/1997 |
|
Deeds |
$0 |
WELLS JOSEPH LABOY JR ETAL WELLS LEROY SNIDER |
HUNTER BARBARA |
||
|
9/4/1991 |
|
Historical |
$0 |
WELLS CORA LEE |
WELLS JOSEPH LABOY JR ETAL |
||
|
8/1/1975 |
|
Historical |
$0 |
|
WELLS CORA L |
||
| Last Mailed Notice of Value (N.O.V.) Information/History | ||||||||
|---|---|---|---|---|---|---|---|---|
| Year | Date | Market Value | Taxable Market Value | Gross Assessed | Exemption | Net Assessed | ||
|
2026 |
02/23/2026 |
70,000 |
14,253 |
1,567 |
0 |
1,567 |
||
|
2025 |
02/14/2025 |
67,000 |
13,575 |
1,493 |
0 |
1,493 |
||
|
2024 |
02/13/2024 |
64,000 |
12,929 |
1,421 |
0 |
1,421 |
||
|
2023 |
02/14/2023 |
52,000 |
12,314 |
1,354 |
0 |
1,354 |
||
|
2022 |
03/15/2022 |
39,000 |
11,728 |
1,289 |
0 |
1,289 |
||
| Property Building Permit History | |||||||||||
|---|---|---|---|---|---|---|---|---|---|---|---|
| Issued | Permit # | Provided by | Bldg # | Description | Est Construction Cost | Status | |||||
| No Building Permit records returned. | |||||||||||
| Click button on building number to access detailed information: | ||||||
|---|---|---|---|---|---|---|
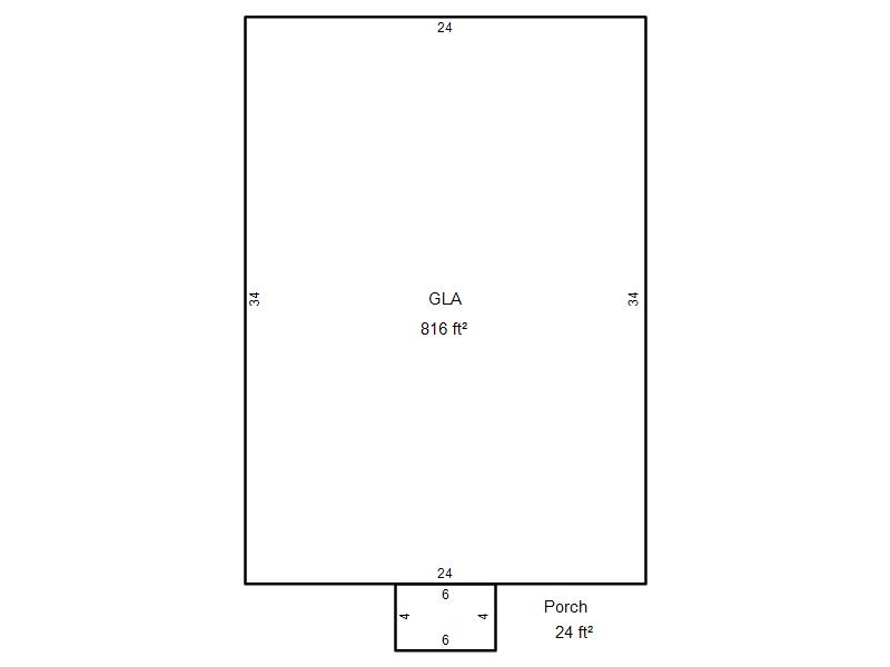
| Bldg # | Vacant/Improved Land | Bldg Description | Year Built | SqFt | # Stories | |
|
1 |
Improved |
Ranch 1 Story |
1950 |
816 |
1 Stories |
|