|
|
|
| Larry Stein Oklahoma County Assessor (405) 713-1200 - Public Access System |
|
|
|
|
|
|
| Real Property Display - Screen Produced 3/5/2026 7:18:20 PM | ||||
|---|---|---|---|---|
| Account: R027281800 | Type: Commercial | Location: |
1301 N MARTIN LUTHER KING AVE |
|
| Building Name/Occupant: |
MARSHALL ENVIRONMENTAL MANAGEMENT |
OKLAHOMA CITY |
||
| Owner Name 1: | MARSHALL PROPERTY MANAGEMENT LLC |
Parcel PIN#: |
2702-02-728-1800 |
|
| Owner Name 2: | 1/4 section #: |
2702 |
||
| Owner Name 3: | Parent Acct: |
|
||
| Billing Address: | 1301 N MARTIN LUTHER KING AVE | Tax District: |
|
|
| City, State, Zip | OKLAHOMA CITY, OK 73117-4235 | School System: |
Oklahoma City #89 |
|
|
Country: (If noted) |
Land Size: |
12,800.0000 Square Feet |
||
|
Land Value: 37,376 |
|
|||
|
Sect 26-T12N-R3W Qtr SE |
WEAVERS 2ND ADDITION
Block
001
Lot
000
|
|||
| Full Legal Description: WEAVERS 2ND ADDITION 001 000 LOTS 15 THRU 18 |
| No comparable sales report available. | ||||||||||||||||||||||
|
||||||||||||||||||||||
| Value History (*The County Treasurer 405-713-1300 posts & collects actual tax amounts. Contact information HERE) | |||||||||||||
|---|---|---|---|---|---|---|---|---|---|---|---|---|---|
| Year | Market Value | Taxable Mkt Value | Gross Assessed | Exemption | Net Assessed | Millage | Est. Tax | Tax Savings | |||||
|
2025 |
165,027 |
165,027 |
18,152 |
0 |
18,152 |
122.90 |
$2,231 |
$0 |
|||||
|
2024 |
165,027 |
165,027 |
18,152 |
0 |
18,152 |
123.89 |
$2,249 |
$0 |
|||||
|
2023 |
165,027 |
165,027 |
18,152 |
0 |
18,152 |
122.82 |
$2,230 |
$0 |
|||||
|
2022 |
165,027 |
165,027 |
18,152 |
0 |
18,152 |
117.63 |
$2,135 |
$0 |
|||||
|
2021 |
165,027 |
165,027 |
18,152 |
0 |
18,152 |
117.70 |
$2,137 |
$0 |
|||||
| Property Account Status/Adjustments/Exemptions | ||
|---|---|---|
| Account # | Exemption Description | Amount |
|
R027281800 |
5% Capped Account |
0 |
| Property Deed Transaction History (Recorded in the County Clerk's Office) | ||||||||||
|---|---|---|---|---|---|---|---|---|---|---|
| Date | Type | Book | Page | Price | Grantor | Grantee | ||||
|
10/13/2015 |
|
Deeds |
$177,500 |
SEIKEL MATT |
MARSHALL PROPERTY MANAGEMENT LLC |
|||||
|
3/26/2015 |
|
Deeds |
$82,500 |
FINLEY GRAVELLEY & SARETTA TRS FINLEY GRAVELLY E & SARETTA |
SEIKEL MATT |
|||||
|
1/27/1997 |
|
Historical |
$0 |
FINLEY GRAVELLY E & SARETTA |
FINLEY GRAVELLEY & SARETTA TRS |
|||||
|
2/2/1995 |
|
Historical |
$0 |
DEW MANAGEMENT |
FINLEY GRAVELLY & SARETTA |
|||||
|
12/21/1988 |
|
Historical |
$0 |
FINLEY GRAVELLY E & SARETTA S |
DEW MANAGEMENT |
|||||
| Last Mailed Notice of Value (N.O.V.) Information/History | ||||||
|---|---|---|---|---|---|---|
| Year | Date | Market Value | Taxable Market Value | Gross Assessed | Exemption | Net Assessed |
|
2016 |
03/14/2016 |
177,693 |
177,693 |
19,545 |
0 |
19,545 |
| Property Building Permit History | |||||||||||
|---|---|---|---|---|---|---|---|---|---|---|---|
| Issued | Permit # | Provided by | Bldg # | Description | Est Construction Cost | Status | |||||
| No Building Permit records returned. | |||||||||||
| Click button on building number to access detailed information: | ||||||
|---|---|---|---|---|---|---|
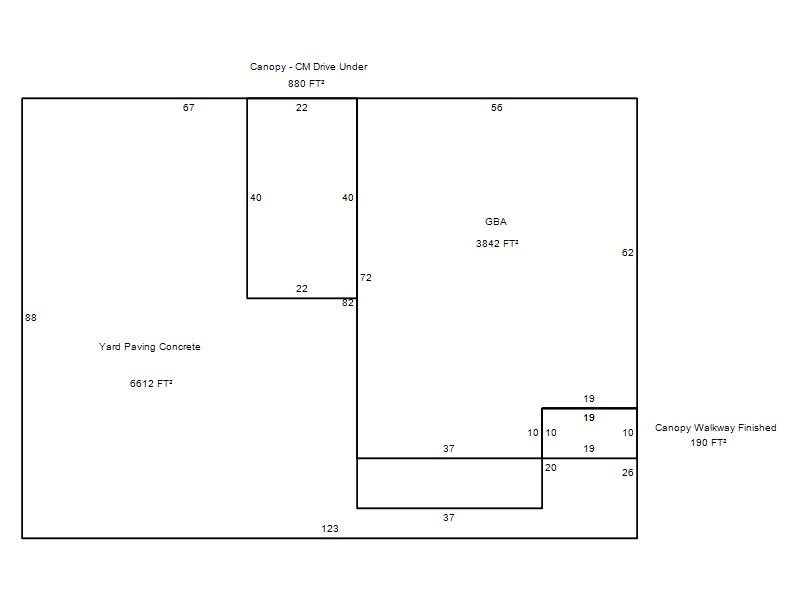
| Bldg # | Vacant/Improved Land | Bldg Description | Year Built | SqFt | # Stories | |
|
1 |
Improved |
Office Style Box C or D |
1966 |
3,842 |
1 Stories |
|