|
|
|
| Larry Stein Oklahoma County Assessor (405) 713-1200 - Public Access System |
|
|
|
|
|
|
| Real Property Display - Screen Produced 3/5/2026 7:16:27 PM | ||||
|---|---|---|---|---|
| Account: R027284800 | Type: Residential | Location: |
1308 N NEBRASKA AVE |
|
| Building Name/Occupant: |
|
OKLAHOMA CITY |
||
| Owner Name 1: | WALLS SUSIE J |
Parcel PIN#: |
2702-02-728-4800 |
|
| Owner Name 2: | 1/4 section #: |
2702 |
||
| Owner Name 3: | Parent Acct: |
|
||
| Billing Address: | 1308 N NEBRASKA AVE | Tax District: |
|
|
| City, State, Zip | OKLAHOMA CITY, OK 73117-3654 | School System: |
Oklahoma City #89 |
|
|
Country: (If noted) |
Land Size: |
0.1469 Acres |
||
|
Land Value: 5,888 |
|
|||
|
Sect 26-T12N-R3W Qtr SE |
WEAVERS 2ND ADDITION
Block
002
Lot
000
|
|||
| Full Legal Description: WEAVERS 2ND ADDITION 002 000 LOTS 9 & 10 |
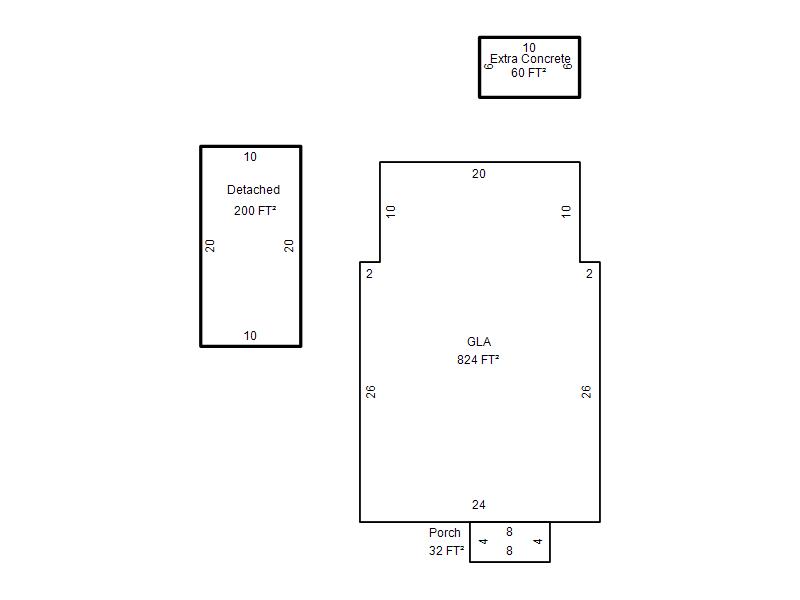
| Photo & Sketch (if available) | Comp Sales (ordered by relevancy) |
|
||||||||||||||||||
|
||||||||||||||||||||
| Value History (*The County Treasurer 405-713-1300 posts & collects actual tax amounts. Contact information HERE) | |||||||||||||
|---|---|---|---|---|---|---|---|---|---|---|---|---|---|
| Year | Market Value | Taxable Mkt Value | Gross Assessed | Exemption | Net Assessed | Millage | Est. Tax | Tax Savings | |||||
|
2025 |
70,000 |
14,807 |
1,628 |
0 |
1,628 |
122.90 |
$200 |
$746 |
|||||
|
2024 |
64,000 |
14,102 |
1,550 |
0 |
1,550 |
123.89 |
$192 |
$680 |
|||||
|
2023 |
52,500 |
13,431 |
1,477 |
0 |
1,477 |
122.82 |
$181 |
$528 |
|||||
|
2022 |
39,500 |
12,792 |
1,407 |
0 |
1,407 |
117.63 |
$166 |
$346 |
|||||
|
2021 |
32,000 |
12,183 |
1,339 |
0 |
1,339 |
117.70 |
$158 |
$257 |
|||||
| Property Account Status/Adjustments/Exemptions | ||
|---|---|---|
| Account # | Exemption Description | Amount |
|
R027284800 |
5% Capped Account |
0 |
| Property Deed Transaction History (Recorded in the County Clerk's Office) | |||||||
|---|---|---|---|---|---|---|---|
| Date | Type | Book | Page | Price | Grantor | Grantee | |
|
11/11/1911 |
|
Historical |
$0 |
|
WALLS SUSIE J |
||
| Last Mailed Notice of Value (N.O.V.) Information/History | ||||||||
|---|---|---|---|---|---|---|---|---|
| Year | Date | Market Value | Taxable Market Value | Gross Assessed | Exemption | Net Assessed | ||
|
2026 |
02/23/2026 |
73,000 |
15,547 |
1,709 |
0 |
1,709 |
||
|
2025 |
02/14/2025 |
70,000 |
14,807 |
1,628 |
0 |
1,628 |
||
|
2024 |
02/13/2024 |
64,000 |
14,102 |
1,550 |
0 |
1,550 |
||
|
2023 |
02/14/2023 |
52,500 |
13,431 |
1,477 |
0 |
1,477 |
||
|
2022 |
03/15/2022 |
39,500 |
12,792 |
1,407 |
0 |
1,407 |
||
| Property Building Permit History | |||||||||||
|---|---|---|---|---|---|---|---|---|---|---|---|
| Issued | Permit # | Provided by | Bldg # | Description | Est Construction Cost | Status | |||||
| No Building Permit records returned. | |||||||||||
| Click button on building number to access detailed information: | ||||||
|---|---|---|---|---|---|---|
| Bldg # | Vacant/Improved Land | Bldg Description | Year Built | SqFt | # Stories | |
|
1 |
Improved |
Ranch 1 Story |
1948 |
824 |
1 Stories |
|