|
|
|
| Larry Stein Oklahoma County Assessor (405) 713-1200 - Public Access System |
|
|
|
|
|
|
| Real Property Display - Screen Produced 3/5/2026 6:02:38 PM | ||||
|---|---|---|---|---|
| Account: R033552368 | Type: Residential | Location: |
1407 N LOTTIE AVE |
|
| Building Name/Occupant: |
|
OKLAHOMA CITY |
||
| Owner Name 1: | JOHNSON LUELLAR |
Parcel PIN#: |
2703-03-355-2368 |
|
| Owner Name 2: | 1/4 section #: |
2703 |
||
| Owner Name 3: | Parent Acct: |
|
||
| Billing Address: | 1407 N LOTTIE AVE | Tax District: |
|
|
| City, State, Zip | OKLAHOMA CITY, OK 73117-2058 | School System: |
Oklahoma City #89 |
|
|
Country: (If noted) |
Land Size: |
0.1475 Acres |
||
|
Land Value: 18,314 |
|
|||
|
Sect 26-T12N-R3W Qtr SW |
CULBERTSON HEIGHTS ADDITION
Block
006
Lot
003
|
|||
| Full Legal Description: CULBERTSON HEIGHTS ADDITION 006 003 |
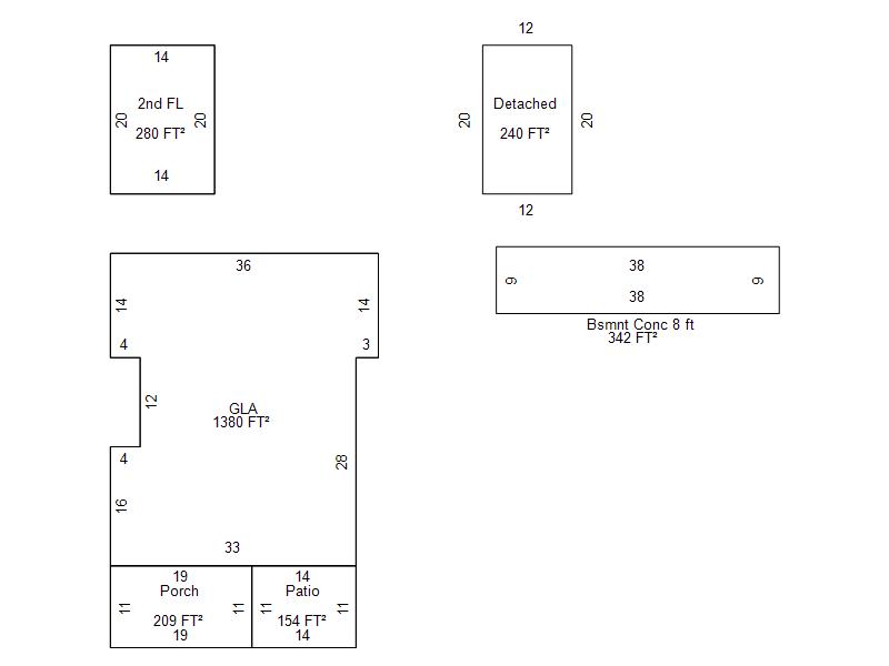
| Photo & Sketch (if available) | Comp Sales (ordered by relevancy) |
|
||||||||||||||||||
|
||||||||||||||||||||
| Value History (*The County Treasurer 405-713-1300 posts & collects actual tax amounts. Contact information HERE) | |||||||||||||
|---|---|---|---|---|---|---|---|---|---|---|---|---|---|
| Year | Market Value | Taxable Mkt Value | Gross Assessed | Exemption | Net Assessed | Millage | Est. Tax | Tax Savings | |||||
|
2025 |
139,000 |
11,748 |
1,291 |
0 |
1,291 |
122.90 |
$159 |
$1,720 |
|||||
|
2024 |
131,000 |
11,189 |
1,230 |
0 |
1,230 |
123.89 |
$152 |
$1,633 |
|||||
|
2023 |
122,500 |
10,657 |
1,171 |
0 |
1,171 |
122.82 |
$144 |
$1,511 |
|||||
|
2022 |
90,000 |
10,150 |
1,116 |
1,116 |
0 |
117.63 |
$0 |
$1,164 |
|||||
|
2021 |
82,500 |
10,150 |
1,116 |
1,116 |
0 |
117.70 |
$0 |
$1,068 |
|||||
| Property Account Status/Adjustments/Exemptions | ||
|---|---|---|
| Account # | Exemption Description | Amount |
|
R033552368 |
5% Capped Account |
0 |
| Property Deed Transaction History (Recorded in the County Clerk's Office) | |||||||
|---|---|---|---|---|---|---|---|
| Date | Type | Book | Page | Price | Grantor | Grantee | |
|
11/11/1911 |
|
Historical |
$0 |
|
JOHNSON LUELLAR |
||
| Last Mailed Notice of Value (N.O.V.) Information/History | ||||||||
|---|---|---|---|---|---|---|---|---|
| Year | Date | Market Value | Taxable Market Value | Gross Assessed | Exemption | Net Assessed | ||
|
2026 |
02/23/2026 |
154,000 |
12,335 |
1,356 |
0 |
1,356 |
||
|
2025 |
02/14/2025 |
139,000 |
11,748 |
1,291 |
0 |
1,291 |
||
|
2024 |
02/13/2024 |
131,000 |
11,189 |
1,230 |
0 |
1,230 |
||
|
2023 |
02/14/2023 |
122,500 |
10,657 |
1,171 |
0 |
1,171 |
||
|
2022 |
03/15/2022 |
90,000 |
10,150 |
1,116 |
1,116 |
0 |
||
| Property Building Permit History | ||||||
|---|---|---|---|---|---|---|
| Issued | Permit # | Provided by | Bldg # | Description | Est Construction Cost | Status |
|
10/13/1999 |
10189009 |
OKLAHOMA CITY |
1 |
Main Dwellin |
135,000 |
Inactive |
| Click button on building number to access detailed information: | ||||||
|---|---|---|---|---|---|---|
| Bldg # | Vacant/Improved Land | Bldg Description | Year Built | SqFt | # Stories | |
|
1 |
Improved |
1½ Story Fin |
1923 |
1,660 |
1.5 Stories |
|