|
|
|
| Larry Stein Oklahoma County Assessor (405) 713-1200 - Public Access System |
|
|
|
|
|
|
| Real Property Display - Screen Produced 3/5/2026 6:01:29 PM | ||||
|---|---|---|---|---|
| Account: R033552496 | Type: Exempt | Location: |
1408 ASHTON PL |
|
| Building Name/Occupant: |
CARE CENTER |
OKLAHOMA CITY |
||
| Owner Name 1: | CARE CENTER CHILD ABUSE |
Parcel PIN#: |
2703-03-355-2496 |
|
| Owner Name 2: | RESPONSE & EVALUATION CTR INC | 1/4 section #: |
2703 |
|
| Owner Name 3: | Parent Acct: |
|
||
| Billing Address: | PO BOX 20056 | Tax District: |
|
|
| City, State, Zip | OKLAHOMA CITY, OK 73156-0056 | School System: |
Oklahoma City #89 |
|
|
Country: (If noted) |
Land Size: |
0.2897 Acres |
||
|
Land Value: 0 |
|
|||
|
Sect 26-T12N-R3W Qtr SW |
CULBERTSON HEIGHTS ADDITION
Block
006
Lot
000
|
|||
| Full Legal Description: CULBERTSON HEIGHTS ADDITION 006 000 LOTS 7 & 8 |
| No comparable sales report available. | ||||||||||||||||||||||
|
||||||||||||||||||||||
| Value History (*The County Treasurer 405-713-1300 posts & collects actual tax amounts. Contact information HERE) | |||||||||||||
|---|---|---|---|---|---|---|---|---|---|---|---|---|---|
| Year | Market Value | Taxable Mkt Value | Gross Assessed | Exemption | Net Assessed | Millage | Est. Tax | Tax Savings | |||||
|
2025 |
0 |
0 |
0 |
0 |
0 |
122.90 |
$0 |
$0 |
|||||
|
2024 |
0 |
0 |
0 |
0 |
0 |
123.89 |
$0 |
$0 |
|||||
|
2023 |
0 |
0 |
0 |
0 |
0 |
122.82 |
$0 |
$0 |
|||||
|
2022 |
0 |
0 |
0 |
0 |
0 |
117.63 |
$0 |
$0 |
|||||
|
2021 |
0 |
0 |
0 |
0 |
0 |
117.70 |
$0 |
$0 |
|||||
| Property Account Status/Adjustments/Exemptions | ||
|---|---|---|
| Account # | Exemption Description | Amount |
|
R033552496 |
Exempt |
100 |
|
R033552496 |
5% Capped Account |
0 |
| Property Deed Transaction History (Recorded in the County Clerk's Office) | |||||||
|---|---|---|---|---|---|---|---|
| Date | Type | Book | Page | Price | Grantor | Grantee | |
|
1/5/1994 |
|
Historical |
$0 |
CHILD ABUSE RESPONSE CENTER |
CARE CENTER-CHILD ABUSE |
||
|
10/20/1992 |
|
Historical |
$0 |
EDNA T VOELKERS REVOCABLE TRS |
CHILD ABUSE RESPONSE CENTER |
||
|
7/1/1986 |
|
Historical |
$0 |
|
EDNA T VOELKERS REVOCABLE TRS |
||
| Last Mailed Notice of Value (N.O.V.) Information/History | ||||||||
|---|---|---|---|---|---|---|---|---|
| Year | Date | Market Value | Taxable Market Value | Gross Assessed | Exemption | Net Assessed | ||
| No Notice of Value N.O.V. records returned. | ||||||||
| Property Building Permit History | |||||||||||
|---|---|---|---|---|---|---|---|---|---|---|---|
| Issued | Permit # | Provided by | Bldg # | Description | Est Construction Cost | Status | |||||
| No Building Permit records returned. | |||||||||||
| Click button on building number to access detailed information: | ||||||
|---|---|---|---|---|---|---|
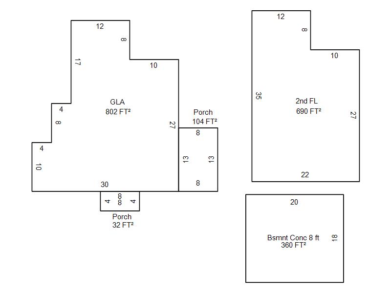
| Bldg # | Vacant/Improved Land | Bldg Description | Year Built | SqFt | # Stories | |
|
1 |
Improved |
2 Story |
1918 |
1,492 |
2 Stories |
|
|
2 |
Improved |
2 Story |
1925 |
1,620 |
2 Stories |
|